Nujiang Hidden Gem Bay Hotel, Yunnan
作品详情
  • Details of the work 标题横线
    头像或者logo
    图片 郝建伟
    城市:泸水市
    公司: 回隐山秋美学设计事务所
    参赛作品: 云南怒江秘境湾酒店
    空间类型:酒店
    个人/公司简介:
    云南三川建筑设计院院长 回隐山秋美学设计事务所创始人 云南省室内装饰行业协会常务理事 亚太酒店设计高研班 建筑设计高级职称 高级室内建筑师
    设计说明 | Design Instruction
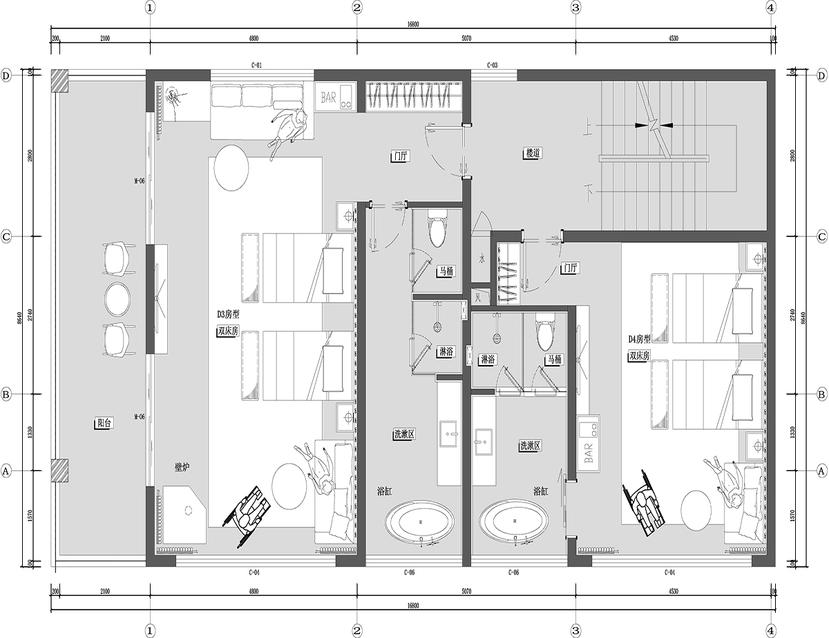
  • 旅行,不止于逗留和经过,更是内心与世界的连接,而酒店,正成为人们在旅行过程中的“家”,超越了住宿本身的功能意义,塑造一个提供情绪寄托的场所。秘境湾酒店位于怒江福贡县施底村,占地22亩的山头上,以怒江在地文化为背景,打造具有当代东方的避世之境。有22间各具特色的客房,一户一景,合院和一层客房都带有庭院和私汤,每个房型都有不同的体验与景色。配备有多功能傈僳族餐厅、悬崖泳池、秘境酒肆、山顶禅修室、傈僳族合院、健身房,周边环境有沙滩、瀑布、吊桥、溜索、亲水栈道、教堂、非遗体验馆等。 设计通过“自然而然,顺势而为”的建筑哲学,依山势而做建筑,在山间构筑一个避世又能触碰烟火的疗愈之所,理想和日常、山水和城市、当代性和在地性对抗后的虛实和调和,建造极简的现代建筑、赋予山水场域精神,让云雾、峡谷、飞瀑、山林、川流能与人内心产生共鸣,达到内观自己,让人的身体和心灵得到放空。 设计比较克制,以自然为底色,弱化建筑物于自然场景的存在感。深灰色为主调建筑立面,将建筑消隐在山林里,与傈僳族、怒族传统建筑的结合,吊脚楼、低矮的石板瓦瓦檐,赋予建筑沉稳、低调的气质。客人到来车停在对岸,步行经过50长的软桥跨过怒江,在桥头接待厅体验傈僳族的迎客之道,然后乘坐18米高的观光电梯到半山腰,步行走过空中木栈道,此时可以看到飞瀑、听着鸟鸣,感受着自然的气息,沿道而上,要经过悬崖泳池底部,到达餐厅、悬崖泳池,视线豁然开朗。 将可持续发展理念贯穿始终,从老木板、青石片、石板瓦、竹编等材料运用,到餐厅当地原生食材选购,始终以亲近自然的方式回馈自然。整个酒店给人们的感觉是呆得住,很放松,在酒店的每个角落,都好像和自然在对话,一种久违的松弛慰流淌过心里,让人的整个灵魂慢下来,酒店变成生活乌托邦。
  • 图片
  • 图片
  • 图片
  • 图片
  • 图片
  • 图片
  • 图片
  • 图片
  • 图片
  • 图片
  • 图片
  • 图片
  • 图片
  • 图片
  • 图片
  • 图片
  • 图片
  • 图片
  • 图片
  • 图片
  • 图片
  • 图片
  • 图片
  • 图片
  • 图片
  • 图片
  • 图片
  • 图片
  • 图片
  • 图片
  • 图片
  • 图片
  • 图片
  • 图片
  • 图片
  • 图片
  • 图片
  • 图片
  • 图片
  • 图片
  • 图片
  • 图片
  • 图片
  • 图片
  • 图片
  • 图片
  • 图片
  • 图片
  • 图片
  • 图片
  • 上一个 下一个
    2025第九届金腾奖 私宅空间 | 旅居空间 | 城市功能空间 | 人气设计师 | NEW100 jintengAWARD(小金_金腾奖组委会) 广州市海珠区琶洲大道68号华新中心21楼
    金腾奖视频号 金腾奖小红书号 监制:余佳灵
    统筹:张俊媚
    运营:赖钰炼 曹凯月 刘芳棋 小金
    新媒体:王贝贝 严洁 张文一
    技术:丁德昌
    最终解释权归金腾奖主办方所有