Wooden Shadow Weaving Room
作品详情
  • Details of the work 标题横线
    头像或者logo
    图片 CP.Atelier 初品设计
    城市:常州市
    公司:CP.Atelier 初品设计
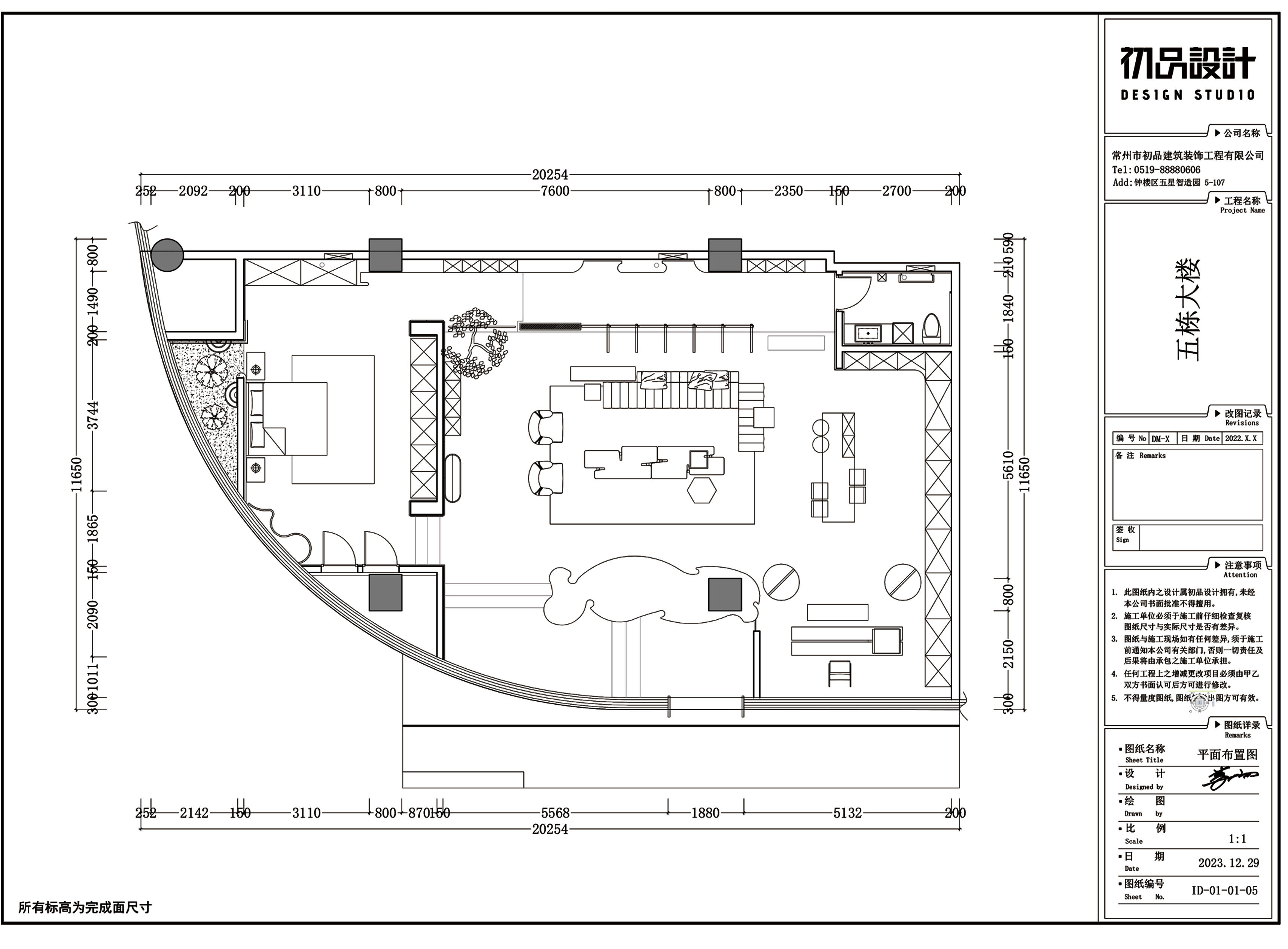
    参赛作品: 木影织间
    空间类型:商业
    个人/公司简介:
    CP.Atelier初品设计是⼀家⽓氛年轻、活跃的跨学科设计团队,旨在提供⾼品质设计服务为⽬的。 团队凝聚曾在北京、⼴州及上海学习与实践的优秀设计师。⽬前项⽬⼴泛分布于江苏各区域及全国。 初品设计着重于材料与构造细节,挑战前沿技术与传统⼯艺在建筑、室内、品牌创意等领域的深度融合,并在该领域积累了丰富的实战经验,⾼完成度的设计作品是我们始终坚持的唯⼀标准。
    设计说明 | Design Instruction
  • 从人出发,寓意着自我探索与认知,倾听空间的回响,打造一个让人与空间深度对话的场所。没有繁复的装饰,通过柔和的曲线、自然的木质和粗犷的水泥,构建出一种返璞归真的空间氛围。 设计中现代性”与“自然感”的博弈,米色的淡泊、木色的沉稳、橙黄的温度,在空间中编织出一张情感的网,构建出温暖而富有层次感的色彩系统,让每个驻足者都能在色调的包裹中,找到属于自己的精神栖居地。 设计师以功能出发,层级交错,空间交织,分割成不同的区域,木质色调与光影的共谋,创造出超越维度的感知场域。 木质格栅用半透明的姿态划分功能区域,既保持视觉连贯性,又在若隐若现中制造心理距离,在虚实相生间构建出多维度的视觉层次。 在空间中,壁炉使用弧形元素,从界面消解了直角规训,以流体形态切割空间,让空间获得了生长的自由,延伸了空间,引导人在场景中持续感知空间变化。让曲面设计不再是功能附属,而是成为空间叙事的主角,在视觉延展中弱化空间边界,同时隐喻“阅己”的哲学——当视线随曲线流动,自我认知亦在空间中生长。 这方空间是功能主义与哲学思考的共谋。它以色彩为笔、曲线为墨、光影为媒,在空间中书写关于自我成长的叙事,让设计回归对“人”的本质关怀。 以「阅己·悦己·越己」为轴,在空间褶皱中展开一场关于时间与自我的哲学漫游。
  • 图片
  • 图片
  • 图片
  • 图片
  • 图片
  • 图片
  • 图片
  • 图片
  • 图片
  • 图片
  • 图片
  • 图片
  • 图片
  • 图片
  • 图片
  • 图片
  • 图片
  • 图片
  • 图片
  • 图片
  • 图片
  • 图片
  • 上一个 下一个
    2025第九届金腾奖 私宅空间 | 旅居空间 | 城市功能空间 | 人气设计师 | NEW100 jintengAWARD(小金_金腾奖组委会) 广州市海珠区琶洲大道68号华新中心21楼
    金腾奖视频号 金腾奖小红书号 监制:余佳灵
    统筹:张俊媚
    运营:赖钰炼 曹凯月 刘芳棋 小金
    新媒体:王贝贝 严洁 张文一
    技术:丁德昌
    最终解释权归金腾奖主办方所有