PHILI SKYLAND
作品详情
  • Details of the work 标题横线
    头像或者logo
    图片 欧镱设计
    城市:广州市
    公司:欧镱设计
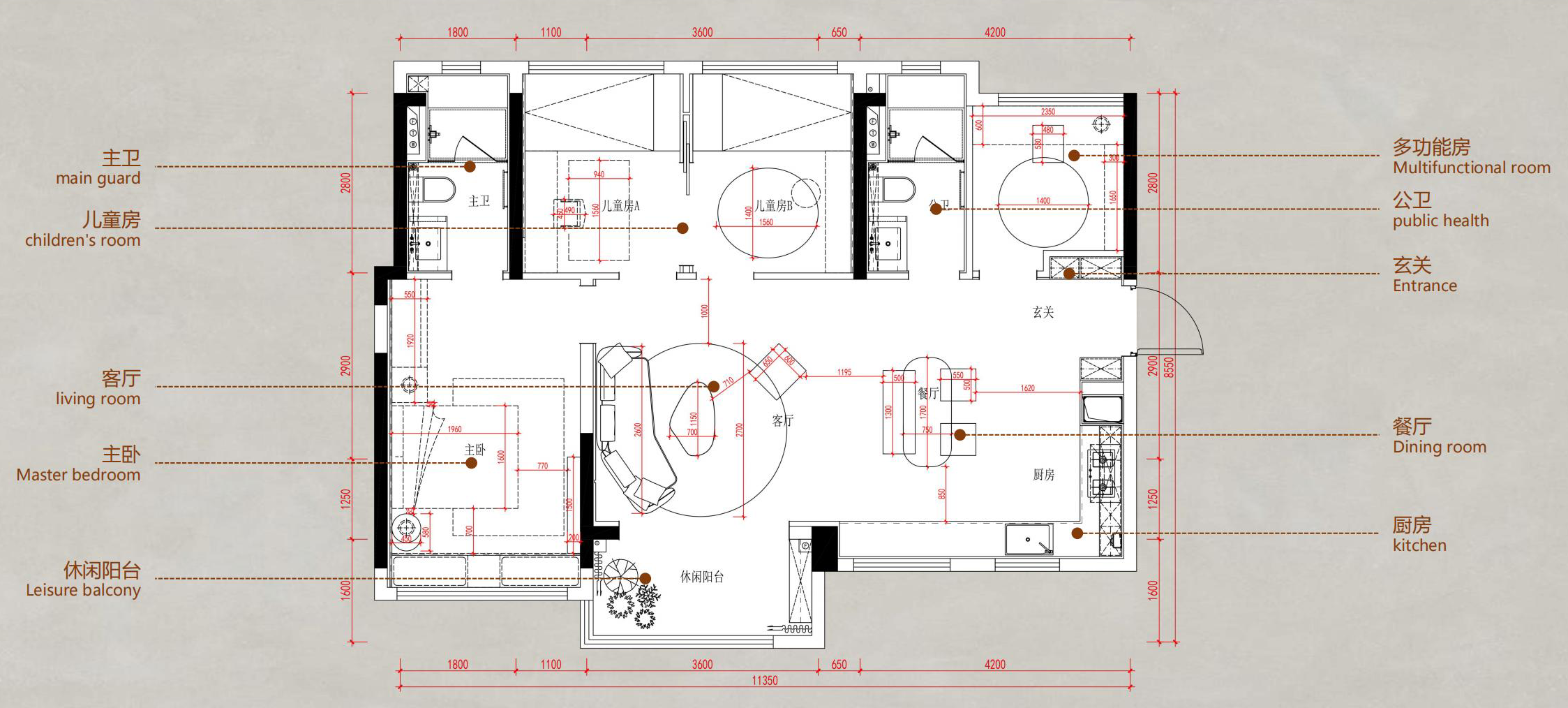
    参赛作品: 新城·翡丽云境
    空间类型:公寓(150㎡以下)
    个人/公司简介:
    欧镱设计(简称:OESD)是由周德恒先生创立的一家综合性设计服务公司。服务范围包涵:私宅设计、商业空间、办公空间、酒店空间还有样板间、营销中心、高端会所、架空层等地产展示空间。深耕行业30年,组建的由中国内地/香港资深设计师、外籍设计师等组成的300多人国际化艺术设计团队,手握软硬装全品类产品供应链,倾力打造软硬装一体化服务体系,为业主提供专业高效的全案设计配套解决方案。从成立至今为国内外多个标杆地产提供专业的设计配套服务,获得200多个国际知名奖项,多次被授予优秀合作伙伴的荣誉。
    设计说明 | Design Instruction
  • 在广州新城·翡丽云境项目中,OESD以现代风格重新诠释居住的诗意。这里没有极简主义的冰冷框架,亦非北欧风格的程式化表达--而是在理性与感性的平衡中,探索理想栖居。
  • 图片
  • 图片
  • 图片
  • 图片
  • 图片
  • 图片
  • 图片
  • 图片
  • 图片
  • 图片
  • 图片
  • 图片
  • 图片
  • 图片
  • 图片
  • 图片
  • 图片
  • 图片
  • 上一个 下一个
    2025第九届金腾奖 私宅空间 | 旅居空间 | 城市功能空间 | 人气设计师 | NEW100 jintengAWARD(小金_金腾奖组委会) 广州市海珠区琶洲大道68号华新中心21楼
    金腾奖视频号 金腾奖小红书号 监制:余佳灵
    统筹:张俊媚
    运营:赖钰炼 曹凯月 刘芳棋 小金
    新媒体:王贝贝 严洁 张文一
    技术:丁德昌
    最终解释权归金腾奖主办方所有