Juanyunshu
作品详情
  • Details of the work 标题横线
    头像或者logo
    图片 宣韩冬 云上设计师俱乐部特约推荐
    城市:南京市
    公司: 形册装饰设计
    参赛作品: 卷云舒
    空间类型:别墅
    个人/公司简介:
    姓名:宣韩冬 公司:形册空间设计事务所 职务:设计总监 联系方式:15996363703 微信号:xhandong 从业12年 毕业于南京艺术学院 进修于亚洲大学新包豪斯设计学院 设计理念:建立在建筑美学的基础上用艺术的手段去解决问题 获奖情况: 2015年 中国室内装饰协会——《全国优秀室内设计师》 2016年 第八届中国国际建筑装饰及设计艺术博览会“设博会” 《国际环艺创新设计大赛二等奖》 2018年 广州设计周/IFI国际室内建筑师团体联盟评为 《设计源.世界观.2018年度精英人物》 2019年 新浪地产中国住宅设计精英榜——《优秀设计奖》 2019年 广州设计周/40under40 中国(南京)设计杰出青年 2019年 上海设计周评 《新锐中国设计奖》 2019年 《4 ½木盒》荣登金堂奖全国年度杰出作品榜 2019年 D-life 设计与生活杂志编委 2020年 芒果奖—中国商业优胜奖 2020年 华语设计领袖榜《年度百位卓越设计人物奖》 2020年 中国设计头条年鉴《年度优秀设计项目》 2020年 DF国际空间设计大奖《年度别墅豪宅空间设计金奖》 2020年 广州设计周/40under40 中国(南京)设计杰出青年 2021年 广州设计周/40under40 中国(南京)设计杰出青年 2021年 金住奖——中国(南京)十大居住空间设计师 2022年 芒果奖——中国别墅创意奖 2023年 CIID认证—中室学室内建筑师
    设计说明 | Design Instruction
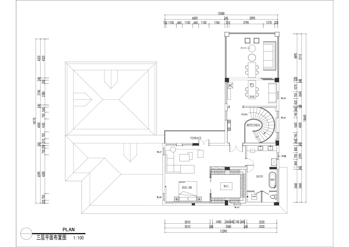
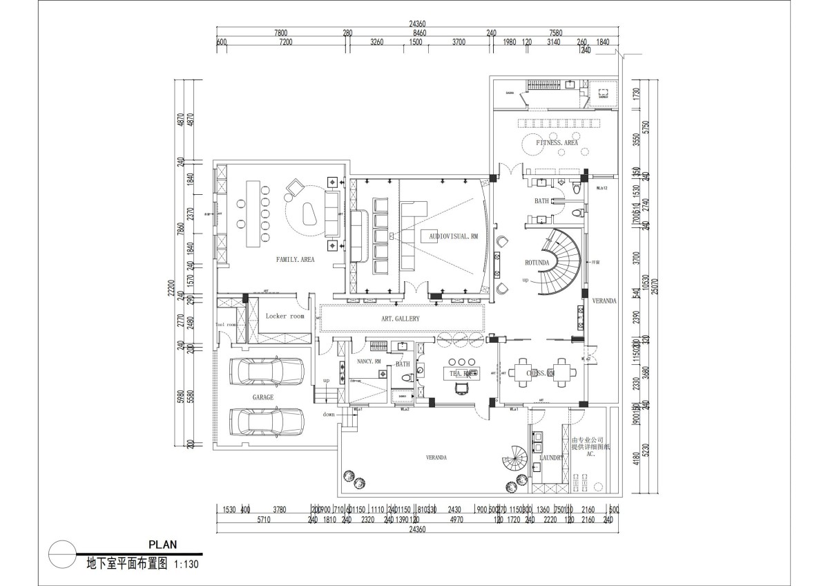
  • 一座理想的建筑满足居住需求只是基本使命,能够承载居住者对美好生活的想象和期待,才是让人安放心灵的家。——贝聿铭 这是坐落于半山顶的一座独栋别墅。山势渐缓,自然过渡至生活;溪水环抱,回应着山的走势,围合出一处自在天地。坐落于此的家,有远山竹海作伴,有溪水淙淙为邻。  而回归家的本质,设计师宣韩冬选择将居住者理想中的生活场景逐一具象,提取自然背景下的空间内在打造原则,舒适与写意相映,气韵与细节并行。山水的宏大映入生活底色,最终化作日常中的隽永陪伴。 庭院还原地景层次,曲线路径与建筑干练简约的结构线条相映成趣。 整个别墅结构成u字型排列。尽量少遮挡的视野,将此间生活的装饰交给自然山川,人的心境也随之畅游天地,豁然通达。 室内最大的设计改造围绕动线的铺陈而展开。 拾阶而上至入户大门。入户玄关,似卷轴一样打开,欢迎主人归家,欢迎客人光临。 左边的一栋是有着5米层高的会客厅。窗格柱子以阵列形势展开,中间5米高的天然大理石背景墙,顶面同样阵列式的结构,处处体现着中式的审美观。一颗颗不规则水晶石组成山峦起伏的形态,是传统水墨画的意境表达。迎四时流动的景致入内。 结构向外延展而成的连廊,不但可听风观雨的灰空间就此形成;而且,增加的这条动线巧妙避开从客厅到楼梯要经过餐厅的缺陷。使餐厅的氛围不被破坏。 与一楼的通透柔和不同的是,负一层地下室空间则幽暗静谧。与下沉庭院链接的是茶室空间。低矮的蒲团,类似席地而坐的放松,静谧的空间,可静心独处,可与朋友交心。 最深处的空间,开门豁然开朗。玻璃装饰柜,低挂的水晶灯,安静舞蹈的火焰,顶部的镜面,使整个空间充满奇幻。 与一楼的公共属性相对,二,三楼则成为一家人各自独立的私人领域。不同于姐姐房间的简约,父母房是稳重的中式风格。三楼则是十分个性的意式风。不同的个性需求被好好的尊重与满足。家和人是两个紧密相连的整体,家陪伴着人的同时,也在一定程度上反映着人的生活状态。 家是心灵的驿站,不仅承载着身躯,更怀抱着情感和灵魂。它容纳一切,孕育出无尽的美好。家始终如一的陪伴着我们,成就着我们的生命历程。
  • 图片
  • 图片
  • 图片
  • 图片
  • 图片
  • 图片
  • 图片
  • 图片
  • 图片
  • 图片
  • 图片
  • 图片
  • 图片
  • 图片
  • 图片
  • 图片
  • 图片
  • 图片
  • 图片
  • 图片
  • 图片
  • 图片
  • 图片
  • 图片
  • 图片
  • 图片
  • 图片
  • 图片
  • 图片
  • 图片
  • 图片
  • 图片
  • 图片
  • 上一个 下一个
    2025第九届金腾奖 私宅空间 | 旅居空间 | 城市功能空间 | 人气设计师 | NEW100 jintengAWARD(小金_金腾奖组委会) 广州市海珠区琶洲大道68号华新中心21楼
    金腾奖视频号 金腾奖小红书号 监制:余佳灵
    统筹:张俊媚
    运营:赖钰炼 曹凯月 刘芳棋 小金
    新媒体:王贝贝 严洁 张文一
    技术:丁德昌
    最终解释权归金腾奖主办方所有