Timeofafternoon
作品详情
  • Details of the work 标题横线
    头像或者logo
    图片 赵兵 云上设计师俱乐部特约推荐
    城市:南京市
    公司: 嘉拓内筑(南京)建筑装饰设计
    参赛作品: 午后漫时光
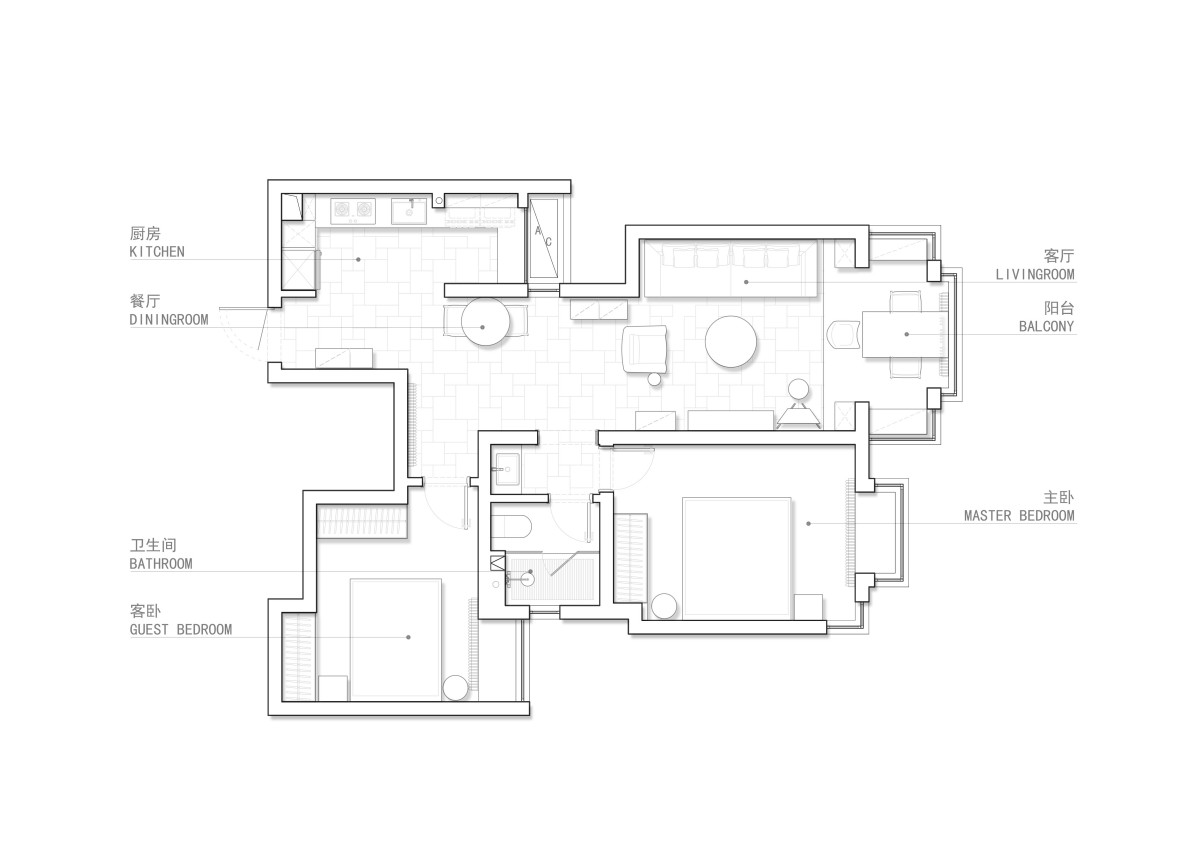
    空间类型:公寓(150㎡以下)
    个人/公司简介:
    Bing-赵兵 主创设计师 受邀人民日报专访 多套别墅案例入选南京电视台十八频道“标点家装”节目拍摄 连续三届大型实景家装节 样板间主创设计师 两次携带室内设计作品参加省级电视台节目录制 江苏音乐台《89.7 大玩家》特邀嘉宾 多套作品发表国内各大设计网站22年行业从业经验 荣获奖项: 2017 年中国设计星城市之星 2018 年中国设计星全国 36 强 2019 年“拾朝杯”住宅设计大赛“金牌设计人物奖” 2019 年“拾朝杯”双年展“住宅设计住宅实景银奖” 2019 年芒果奖“中国别墅优胜奖” 2019 年 40UNDER40 中国南京杰出设计青年 2020 年红创奖年度设计空间奖 2020 年红创奖年度精品佳作奖 多项案例收录教育部十三五教材清华大学出版社出版 《净界》收录教育部十三五艺术类高校教材《居住空间室内设计》化学工业出版社 《愉快的周末》收录教育部十三五教材《软装与陈设艺术设计》清华大学出版社 《愉快的周末》荣登教育部十三五教材《软装与陈设艺术设计》刊物封面 清华大学出版社 《第二青春》《绿色的大卫》《阿尔勒的收获季节》《净·界》《愉快的周末》收录于《D-Life 设计与生活》 江苏室内设计协会会刊 153 期 154 期 160 期 162 期 170 期 《绿色的大卫》荣登《D-Life 设计与生活》江苏室内设计协会会刊封面 154 期
    设计说明 | Design Instruction
  • 在时间的流转中,总有一些温柔的瞬间让人念念不忘。那些斑驳的墙壁,泛黄的书页,复古的家居摆件,仿佛带着旧时光的温度,悄然融入我们的生活。每一件物品都承载岁月的故事,每一个角落都充满了文艺的气息。 设计师以简练的设计手法,质朴的材料,统一的色调进行表达,在设计的每一笔中,捕捉岁月的沉淀,重塑生活的艺术。在这里,复古的美学与艺术的灵感交织,让每个细节都讲述着一个关于岁月与美的故事。 闲暇的午后,阳光透过窗户,洒在画架上,空气中都弥漫着淡淡的木质香气。赤脚踩在温润的地砖上,感受着岁月静好,这一刻便可以静下来,享受艺术创作的乐趣。 客厅与阳台融为一体,位于阳台两侧有用于承重的墙体无法拆除,设计师便依托于墙体设计两组对称的书柜,将其完全隐藏。开放的书格既可以用来摆放书籍也可以摆放器皿进行点缀,既实用又美观。
  • 图片
  • 图片
  • 图片
  • 图片
  • 图片
  • 图片
  • 图片
  • 图片
  • 图片
  • 图片
  • 图片
  • 图片
  • 图片
  • 图片
  • 图片
  • 图片
  • 图片
  • 图片
  • 图片
  • 图片
  • 图片
  • 图片
  • 图片
  • 图片
  • 图片
  • 图片
  • 图片
  • 图片
  • 图片
  • 图片
  • 图片
  • 上一个 下一个
    2025第九届金腾奖 私宅空间 | 旅居空间 | 城市功能空间 | 人气设计师 | NEW100 jintengAWARD(小金_金腾奖组委会) 广州市海珠区琶洲大道68号华新中心21楼
    金腾奖视频号 金腾奖小红书号 监制:余佳灵
    统筹:张俊媚
    运营:赖钰炼 曹凯月 刘芳棋 小金
    新媒体:王贝贝 严洁 张文一
    技术:丁德昌
    最终解释权归金腾奖主办方所有