Qingshanhuigu
作品详情
  • Details of the work 标题横线
    头像或者logo
    图片 展小宁 云上设计师俱乐部特约推荐
    城市:苏州市
    公司: 自在构造建筑设计
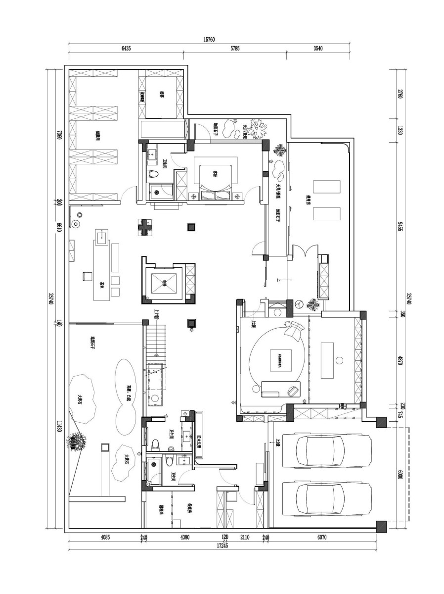
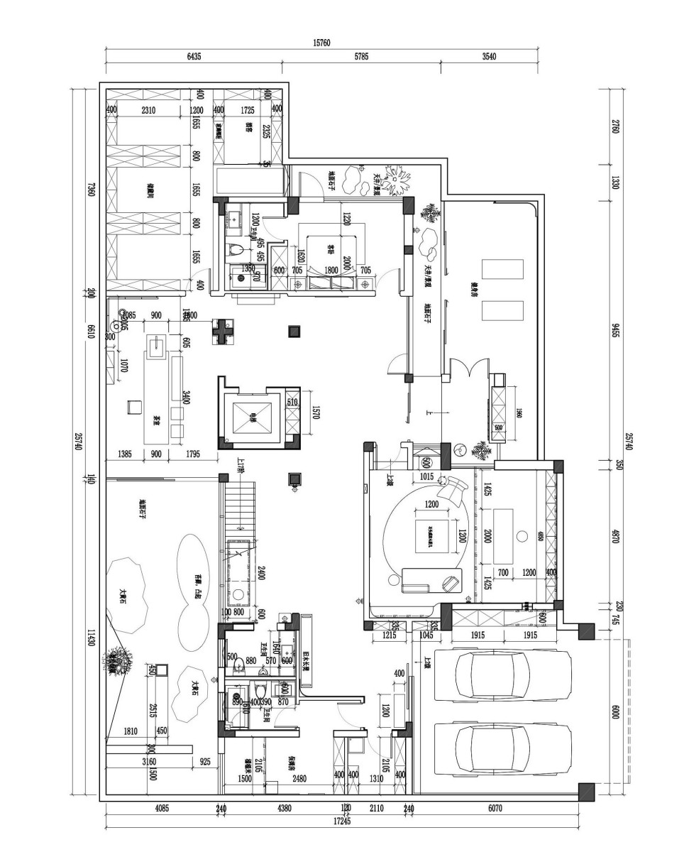
    参赛作品: 清山慧谷
    空间类型:别墅
    个人/公司简介:
    展小宁 Zhan Xiaoning 苏州自在构造建筑设计 设计总监 金堂奖青年设计领袖 Design Director of Suzhou Free Construction Architectural Design Studio JinTangPrize young design leader
    设计说明 | Design Instruction
  • 这是一次对“让时间参与设计”这一理念的实践作品,我在设计之初就放弃了过多的设计造型和装饰语言,力求创造出更加简洁、放松和持久耐用的空间。力求达到经济、低碳、环保的良好结果。希望甲方使用15-20年也不会因为审美过时或者使用功能出现问题而被淘汰或者重新装修。我相信,一个好的设计应该能够经受住时间的考验,而不是随着流行趋势的更迭而过时。因此,我们致力于创作那些能够历久弥新的空间作品,让时间成为空间设计的一部分。正如玉石随着时间的流逝而愈发温润光泽,好的空间也应如此。 本案更多的精力花在对建筑格局的改造上,力求达到空间分区大小得体,路线动静相宜。造型不花哨奇怪,追求安静质朴。改造后的每处空间可以阳光照进,空气流通,身处其中,使人心安。 这套作品的材质构成也相对简单质朴,旧木、荒料石材、取自后山泥土制作的土墙可以很好的吸收消化地下室的潮气,使之成为可以呼吸的材料。 我想做能够经受住时间考验的作品,随着时间的推移不断展现出新的魅力。时间是最公正的裁判,也是最严苛的考验,真正优秀的设计不仅仅是为了满足当下的需求,更是要经得起时间的洗礼,成为经典。
  • 图片
  • 图片
  • 图片
  • 图片
  • 图片
  • 图片
  • 图片
  • 图片
  • 图片
  • 图片
  • 图片
  • 图片
  • 图片
  • 图片
  • 图片
  • 图片
  • 图片
  • 图片
  • 图片
  • 图片
  • 图片
  • 图片
  • 图片
  • 图片
  • 上一个 下一个
    2025第九届金腾奖 私宅空间 | 旅居空间 | 城市功能空间 | 人气设计师 | NEW100 jintengAWARD(小金_金腾奖组委会) 广州市海珠区琶洲大道68号华新中心21楼
    金腾奖视频号 金腾奖小红书号 监制:余佳灵
    统筹:张俊媚
    运营:赖钰炼 曹凯月 刘芳棋 小金
    新媒体:王贝贝 严洁 张文一
    技术:丁德昌
    最终解释权归金腾奖主办方所有