RAN BBQ and Valley Tofu
作品详情
  • Details of the work 标题横线
    头像或者logo
    图片 odd设计事务所
    城市:北京市
    公司:odd设计事务所
    参赛作品: 阿那亚燃炙屋与山谷豆腐工坊
    空间类型:餐饮
    个人/公司简介:
    odd设计事务所由日本建筑师出口勉和冈本庆三于2012年共同创立于北京。odd的作品不局限于某种单一的类型和定位,并持续在项目尺度、风格和功能上进行多样化实践。 我们坚信设计要反映出现代人的生活状态与生存环境,所以我们的作品都以尊重他人的文化为宗旨。无论是城市规划,建筑设计还是室内设计,我们希望创作出根植于各类社会文化语境的设计作品,阐释不同文化的独特特性。
    设计说明 | Design Instruction
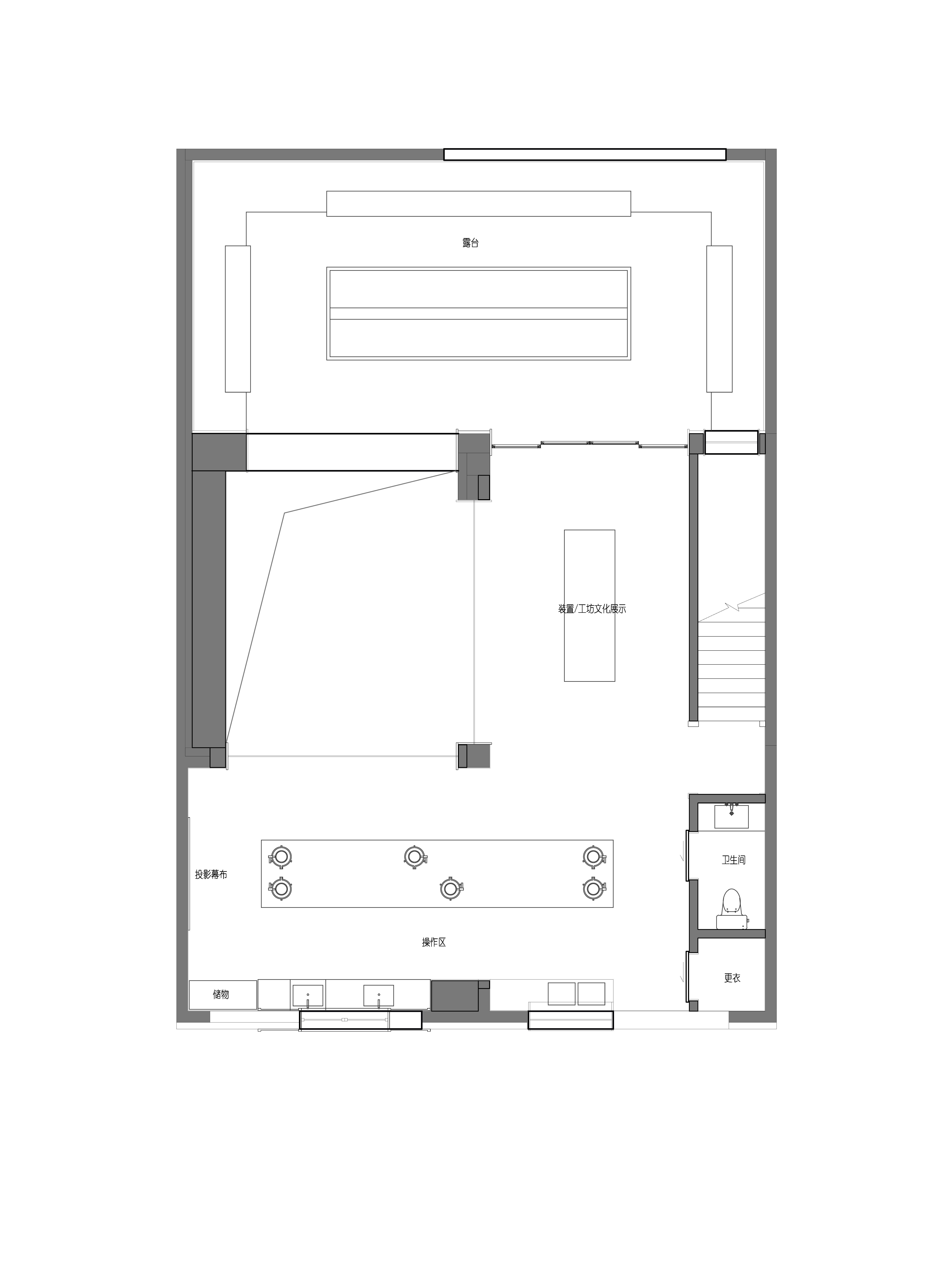
  • “建筑不是孤立的存在,而是社区记忆的载体” – 阿尔多·罗西 不同于秦皇岛阿那亚的熙来攘往,金山岭阿那亚位于城市与山野的交界,更像是都市人的精神出口。 在金山岭阿那亚山谷小镇街角,我们设计了两栋连接自然、食物与人文的社区建筑。 ① /建筑成为社区文化的容器/ 除了绿化,社区更需要可参与的生态,让自然成为邻居、让文化成为日常、让空间成为自然与文化的参与者。 尽管相邻两栋建筑为社区邻里提供不同的服务,却以内在相同的设计逻辑回应与地域环境的关系。我们希望墙体学会倾听故事,屋顶懂得收集阳光。 ② /燃炙屋/ 坐落在转角的日式烤肉店延续了街巷质朴的市井气息。建筑立面以水洗石涂料为基底,搭配老木板和金属屋檐,勾勒出简洁的几何轮廓。 入口处开放式售卖档口成为街巷的有机组成部分,与社区邻里形成互动。 餐厅5米高的挑空区域提供了开阔的空间视野和充足的室内采光,当阳光从一侧照进餐厅,温暖的山居记忆构筑在升腾的烟火气中。 烧烤吧台与中央壁炉采用老木和仿古石材,增添了岁月的痕迹和山野的原始感。 为了更贴近自然,我们保留房梁立柱和榆木板自然风化的痕迹,挑选具有粗粝质感和天然色差的烧制窑砖铺设墙、地面。 ③ /山谷豆腐工坊/ 不同于传统商业空间程式化的结构布局,这是一个以“豆腐”为互动原点的叙事场景。 建筑大面积留白墙面与层叠的木屋檐搭配出丰富的立面层次。透过玻璃窗,行人可以窥见厨房内忙碌的身影和制作豆浆时蒸腾的热气,这种“被看见的制作”体现了手作的真实性和趣味性。 工坊入口以10米长岛台作为视觉引导,同时具有收银、展示、储物等功能。 工坊的户外中庭散发山居生活的质朴与宁静,食客在没有天花的空间感受山谷的阳光和微风。 用餐区弥漫着现磨的豆香,当阳光穿过木格,洒在木质桌椅和墙面上,整个工坊就像一块细腻的豆腐,调度着食客的各种感官。 每当暮色笼罩山谷,这两栋生长于街角的社区建筑,便以它们特有的方式,续写关于自然、食物与人的山居叙事。
  • 图片
  • 图片
  • 图片
  • 图片
  • 图片
  • 图片
  • 图片
  • 图片
  • 图片
  • 图片
  • 图片
  • 图片
  • 图片
  • 图片
  • 图片
  • 图片
  • 图片
  • 图片
  • 图片
  • 图片
  • 图片
  • 上一个 下一个
    2025第九届金腾奖 私宅空间 | 旅居空间 | 城市功能空间 | 人气设计师 | NEW100 jintengAWARD(小金_金腾奖组委会) 广州市海珠区琶洲大道68号华新中心21楼
    金腾奖视频号 金腾奖小红书号 监制:余佳灵
    统筹:张俊媚
    运营:赖钰炼 曹凯月 刘芳棋 小金
    新媒体:王贝贝 严洁 张文一
    技术:丁德昌
    最终解释权归金腾奖主办方所有