Hierarchical static
作品详情
  • Details of the work 标题横线
    头像或者logo
    图片 蔡忠义 橙设传媒特约推荐
    城市:温州市
    公司: 千上设计
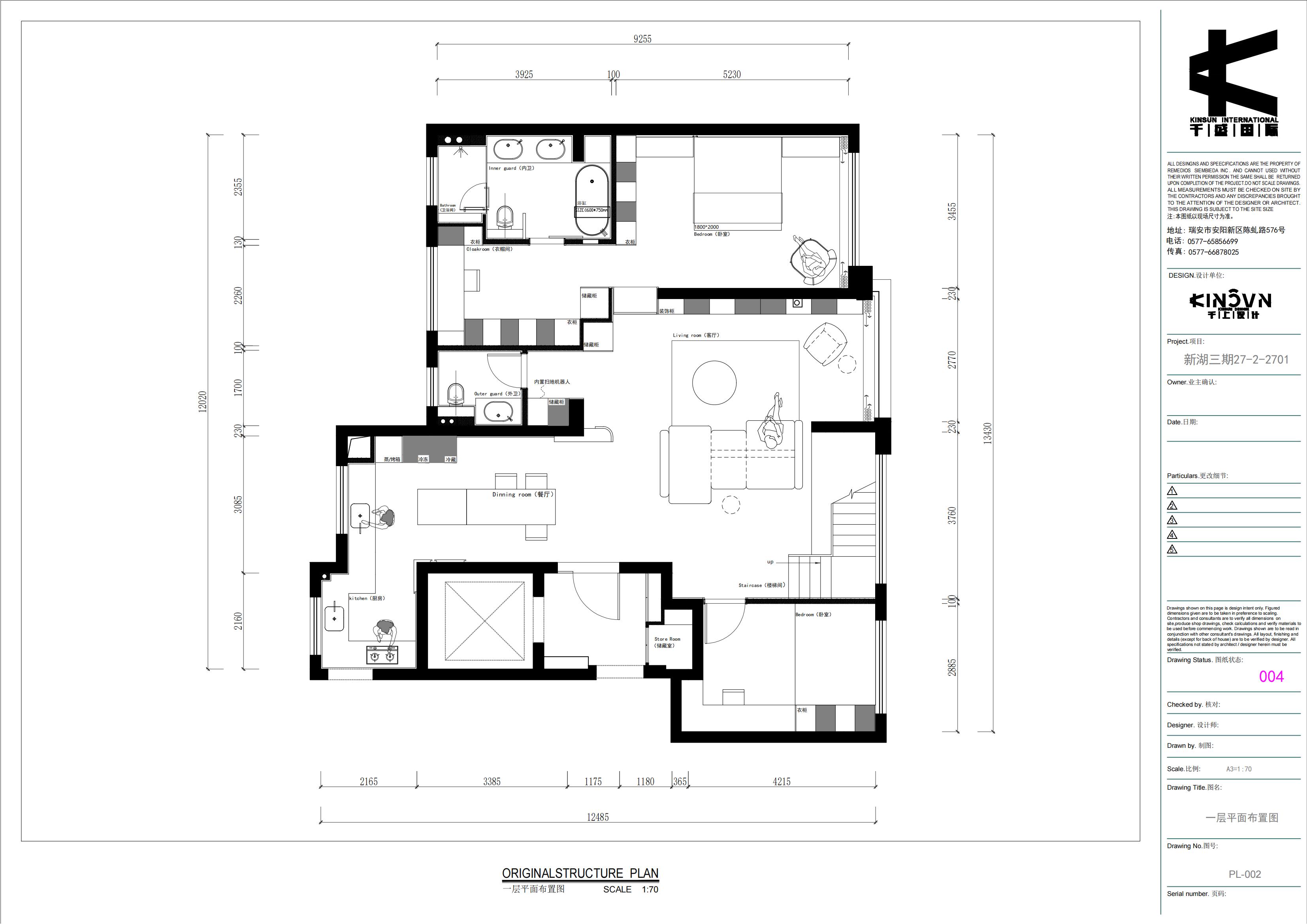
    参赛作品: 层次静态
    空间类型:平层(150㎡以上)
    个人/公司简介:
    2024-2025年 4040当代设计杰出青年 2024-2025年 CIFF设交圈·设计千人计划 标杆人物 2024年度 陈设中国·晶麒麟奖 优秀奖 2024年度 IHIDA AWARDS 十佳公寓空间 2024年度 浙江设计杰出青年 2024年度 红棉设计奖·铜奖 2024年度 老宅新生优秀公共空间设计 2023年度 先锋榜 十大先锋(华东地区) 2023年度 金案奖全国优胜奖 2023年度 IHIDA AWARDS 人居空间设计奖 2023年度 设计先行者 最佳商业空间奖 2022年美国IDA国际设计大奖 2022年金堂奖年度杰出设计师 2021年安德马丁发现好设计年度推荐设计师 2021年《ELLE DECORATION家居廊》中国室内设计大奖 2021中国设计星12强 2021年第十一届国际空间设计大奖IDEA-TOPS艾特奖-铜奖 2020年广州设计周城市馆演讲比赛冠军 2020年第15届金外滩“最佳住宅精装房”金奖 2019年芒果奖-中国人文设计大赛“中国别墅创意奖” 2019年法国双面神GPDP AWARD国际设计大奖 别墅空间—银奖 2019年第四届“金瓦奖”首席评委大奖 2019年IDPA中日国际先锋设计大奖 (TOP100国际影响力创新设计师大奖) 1989-2019中国室内设计30周“百位优秀室内建筑师” 2018年金堂奖年度优秀别墅设计 2017~2018年40 UNDER 40中国(浙江省)设计杰出青年 2015年中国国际室内设计双年展铜奖 2015年搜狐”特地陶瓷杯“全国室内设计明星大赛 华东区总冠军全国银奖 2015年私享家·星河第三空间第四届室内设计精英 邀请赛三等奖 2015年大金第九届内装设计大赛一等奖 2014年CIDA中国室内设计大奖赛住宅设计奖
    设计说明 | Design Instruction
  • 01轨迹:动静引导 我们试图冲破空间的固有容器,重新审视家的包容度。本案为跃层设计,通过界面划分动静层区,着重关照一家四口的生活场景与未来孩子的成长需求,将多余的修饰退让于生活背后,静辟一份共享与独处。 场景刻意空白,搭配橡木作为情感与温度的修饰,在看似平静的表象中,隐藏着律动与层次,容纳更丰富的生活叙事。 客厅摒弃常规电视机动线,布置岛屿式沙发制造洄游效果,分别向餐厨、阳台、楼梯散射更丰富的交流场。电视机和柜体通过橡木推拉门联动,开合之间切换不同场景切面,调动不被设定的随性体验。 简单的线条几何、纯粹的材质表现,以极简之外形,脱胎于空间本质。木色、石材、玻璃等层层递进,共同展开自由的情绪交流。 02 界面:多元的叙事结构 以建筑思维布局场域流动,制造悬浮式楼梯链接上下关系,衍生不同时空界面下结构之间的互动与对话。 楼梯随体块层级而上,拼接全透玻璃,轻盈结构质感。保障安全性的同时,不遮挡视线的行径脉络,同时避免对采光的影响,切实关照了功能与美学的共存。 楼梯角设置一方茶台,经地面抬高,独享一隅天地。在“致广大,尽精微”的布局中,探究空间容器与雅器之间的契合度,细观结构比例布局人文意境,品味另一番清雅意味。 一张桌、一壶茶、三俩闲人,在光的抚触下染上静谧柔美。身处其间,每个人都能在这个界面中获得不同的叙事体验。 03 自由:长期主义 生活中难以忘怀的片段,往往潜匿于最寻常的瞬间,转化成可感可触的实体形态。餐厨搭建自由连贯的交流场景,烹饪、就餐、聚会互相递进,随日常行迹切换动态叠影,演绎一幕幕趣味丛生的生活剧场。 素色主调衍生纯粹意境,在当代主义的简美之下,汇入雅黑石纹,与抽象艺术协同出微妙的张弛感,另生一份灵动气质。厨房纳入原始设备房,中西厨串联一体,延伸操作面积。搭配高效流畅的收纳系统,延续着长期主义的生活方式。 04 空:栖息的尺度感 设计着力调度社交场景与私人空间的关系,三间卧室皆为朝南布局,生活功能随之牵引,游离于恰宜的尺度感,将重点落于人体最舒适的体验,回应居住的品味追求。 主卧入寝区与衣帽间互相贯穿,形成私域脉络,卫浴独立于移门后,共建秩序感的空间整体。衣帽间描摹着低纯度的空间骨架,组合不同收纳形式,优化更便捷的生活系统。 雅黑柜体与润白肌理形成对比,无声传达现代松弛的人生态度,经结构美学微妙叠加,汇入金属感的层次碰撞,为空间赋予无限生动的变量。 设计持续探究业主的生活习惯与需求,卫浴嵌入双台盆和浴缸,自由掌控舒适的节奏。在理性的空间叙事中,不经意间绽放一抹暖光,直达深层心底。 05 静:内生的力量 二层布局卧室,同时作为公共露台的必经动线,需要充分考量共享区域与私人起居的舒适关系。于是设计将卫浴、衣帽间置于边侧,起居动线与露台动线分离,保障居住的私密感。 从内心最真实的角落出发,通过对外物的极简式驾驭,关照居住者更细腻的情感需求。木色拼接简灰,流畅线条随光束蔓延,增添一分淡然气质,沉浸式感受内心的治愈与自洽。 卫浴延续现代黑白框架,关照居住者个性的生活态度,铺展暗调水磨石,理性与极简共持,浸润于仪式感的安逸奢享。 男孩房未做过多渲染,采用榻榻米升级收纳功能,同时布局系统化的书桌,关照孩子未来成长学习的需求。在暖灯亮起的氛围里,轻盈感知入寝仪式。 平面与构造不仅仅搭建出人居关系的物理属性,更重要的是,它承担着人在空间中的感知载体。不同场景互相递进传导,打破单一的感官体验,通过界面、时间的维度,沉浸式引导多重游走的趣味。这是一种可以留存下来的动态影像,最终成为一份份温情的时光印记。
  • 图片
  • 图片
  • 图片
  • 图片
  • 图片
  • 图片
  • 图片
  • 图片
  • 图片
  • 图片
  • 图片
  • 图片
  • 图片
  • 图片
  • 图片
  • 图片
  • 图片
  • 图片
  • 图片
  • 图片
  • 图片
  • 图片
  • 图片
  • 图片
  • 图片
  • 图片
  • 图片
  • 图片
  • 图片
  • 图片
  • 图片
  • 图片
  • 图片
  • 图片
  • 图片
  • 图片
  • 图片
  • 图片
  • 图片
  • 图片
  • 图片
  • 图片
  • 图片
  • 图片
  • 图片
  • 图片
  • 图片
  • 图片
  • 图片
  • 上一个 下一个
    2025第九届金腾奖 私宅空间 | 旅居空间 | 城市功能空间 | 人气设计师 | NEW100 jintengAWARD(小金_金腾奖组委会) 广州市海珠区琶洲大道68号华新中心21楼
    金腾奖视频号 金腾奖小红书号 监制:余佳灵
    统筹:张俊媚
    运营:赖钰炼 曹凯月 刘芳棋 小金
    新媒体:王贝贝 严洁 张文一
    技术:丁德昌
    最终解释权归金腾奖主办方所有