ALL THINGS ARE BORN WITHIN ME
作品详情
  • Details of the work 标题横线
    头像或者logo
    图片 瑞图琅设空间设计 橙设传媒特约推荐
    城市:温州市
    公司:瑞图琅设空间设计
    参赛作品: 流动的风·包裹的家
    空间类型:商业
    个人/公司简介:
    瑞图”是一家以空间设计规划为主的专业型公司,设计规划范围涵盖酒店、餐饮、展示、商场门店等商业空间;别墅、公寓、园林、景观、高端住宅等居家空间;以及企业单位、教育场地、等办公空间。 公司从成立起,就以:“细致、诚实、负责、进取”的核心理念。协同与瑞图有共同目标的伙伴,一起创造。使每一个空间更加和谐、更加优质、更加舒适。
    设计说明 | Design Instruction
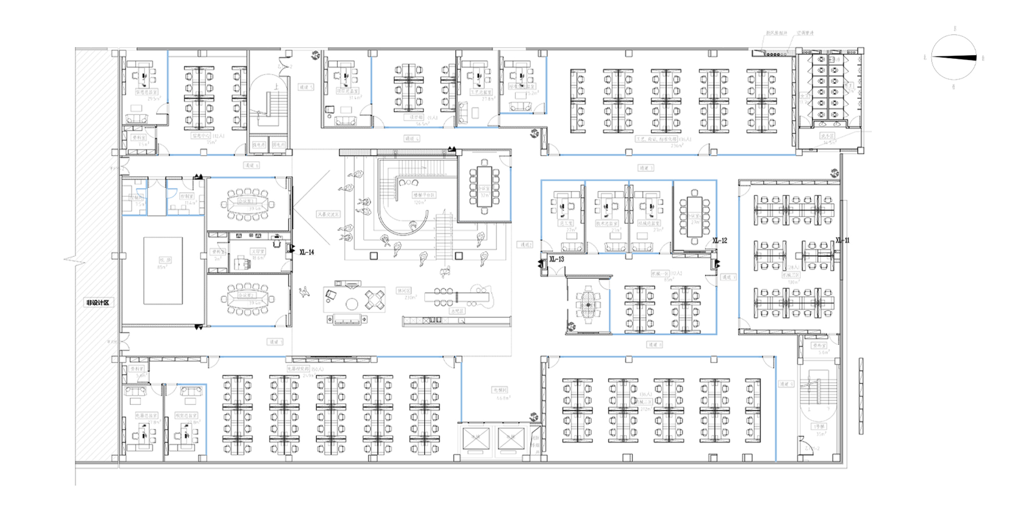
  • 后现代建筑设计大师文丘里强调建筑应该像自由多发的城镇那样,而不是冰冷的容器。 瑞图对于设计的态度,也坚持“你能从圆心画出多少半径,设计就有多少种方式”。 我们对于每一个空间,建筑,都保持着理性的知他性审视,毕竟设计本身是个高度唯物主义的事。 但,它充满了表达欲。表达什么,如何表达,这是设计界的“知行合一” 项目介绍: 该建筑体共四层,总体面积 平米。业主是医疗行业领先的医用耗材自动化专家型企业,致力于为客户提供智能制造系统性解决方案。 企业文化提倡专业、激情、开放、创新的工作氛围;关注办公幸福度、团队合作性、鼓励个性展示。 设计赏析: 建筑是个绝对的物理概念,空间设计是界限之内的虚空。 它本身很是脆弱,需要通过设计手段击穿它,构建它,实现它。 此项设计,我们将其命名为: 万物在我 向内成生 万物在我 设计所承载的使命,是对无形的存在,如企业精神、理念、姿态,通过内置、规划、光景……进行可视性转换的尝试。并使其拥有完整、连贯的空间语言。这是我们先要确定的部分。 整个设计理念犹如理想世界的巴别塔。 一层大厅六米高的空间被保留下来。对设计而言,空间手笔“大”是正向的发挥动力;如何言之有物,纵横捭阖,反向也有着严苛的要求。 整个空间由巨大的“面”联动气势磅礴的“线”构筑起来。一条圆弧穿透实墙插入至另一边的企业展厅入口。这种巨型雕塑的手法,呈现出凌厉的气魄。整体造型灵感源自于企业产品生产线的形态。而在意识形态上,设计将视觉和动线做了双导向,表现出一卷长画,寥寥数笔的磅礴之气。以笔做刃,以砚为马,讲述企业故事、历程与未来。 空间洞穿、解构之后,呈现模块由不同方面来构成。 每一个方面都体现了一个被拟定的元素,由大量的线条风格穿插,交织出不同的扎实感、跳跃感,并有机地组成完整的企业姿态。这种线条的复杂运用,又表达得天高水长,是极具挑战的设计笔峰。 贯穿其间的大型多功能楼梯,除了连接各层的实际功能之外,向内拥抱的弧线设计,综合了空间的雕刻感,使触动与传递变得温柔。 与之匹配的是同体量的中空天井。通透的设计使楼梯更为轻盈外,光景作用增加了悬浮感和换桢感。而随着四季光线的变化,将设计交付自然,任由涂笔。早观碧海,暮悟苍松,建筑之内,自然着墨 。 于是,一个节节上升,又形态差异的空间成为我们的设计内核。每一部分都象征着源远流长,体系完整,具有内循力的生态空间。而彼此间又有联系的视觉体现。它被分割成独立、完整、向上式的复合空间。 工区、决策、休闲、分享、互动、私密……在空间语境中,设计使之轻易实现了对标的氛围构建,高配得的弥合对接。 向内而生 回到我们东方绘画中永恒的主题——山水。 尽管设计最终呈现的,并非深邃的古典主义,但我们非常明确,在相对封闭的空间内,更加需要对于空气和有机体的感受,回到生命体的出发点——自然。 面对无法停下的工作轮转,或是晦涩的思辨,藏纳了一整个关于自然元素的基调,在整个空间内徐徐展开,款款而来。表现出丰富的平面色彩技法和空间折叠度,并使其每一个转变更有辨识度。 这是坦然且大胆的设计。将自然元素几乎以直白的方式置入空间之中。抽象、具象、物态或符号,其实对于设计而言,都不是障碍,是完成张驰有度之后的归韵,回到“物为我用,万物在我”的开端,做出一个归拢的注解: “我”需要被明确的看见, “我”在空间之内完成了生长和循环, “我”在万物之中的自由度和萃取度。 结语: 对设计的创造力而言,总有意犹未尽之处。 相对于宏大的概念、理论、审美哲学……设计与业态的本体做充分的了解、表达,探讨认知的形成和落地。以空间与装置的形式来介入,并在这个过程中形成“万物在我,向内而生”的设计剧情,是对空间业态的不可跳脱的责任。
  • 图片
  • 图片
  • 图片
  • 图片
  • 图片
  • 图片
  • 图片
  • 图片
  • 图片
  • 图片
  • 图片
  • 图片
  • 图片
  • 图片
  • 图片
  • 图片
  • 图片
  • 图片
  • 图片
  • 图片
  • 图片
  • 图片
  • 图片
  • 图片
  • 图片
  • 图片
  • 图片
  • 图片
  • 图片
  • 图片
  • 图片
  • 图片
  • 图片
  • 图片
  • 图片
  • 图片
  • 图片
  • 图片
  • 图片
  • 图片
  • 图片
  • 图片
  • 图片
  • 图片
  • 图片
  • 图片
  • 图片
  • 图片
  • 图片
  • 图片
  • 图片
  • 图片
  • 图片
  • 图片
  • 图片
  • 图片
  • 图片
  • 图片
  • 图片
  • 图片
  • 图片
  • 图片
  • 上一个 下一个
    2025第九届金腾奖 私宅空间 | 旅居空间 | 城市功能空间 | 人气设计师 | NEW100 jintengAWARD(小金_金腾奖组委会) 广州市海珠区琶洲大道68号华新中心21楼
    金腾奖视频号 金腾奖小红书号 监制:余佳灵
    统筹:张俊媚
    运营:赖钰炼 曹凯月 刘芳棋 小金
    新媒体:王贝贝 严洁 张文一
    技术:丁德昌
    最终解释权归金腾奖主办方所有