Life curator
作品详情
  • Details of the work 标题横线
    头像或者logo
    图片 陈智超
    城市:广州市
    公司: 陈智超设计
    参赛作品: 生活策展家
    空间类型:平层(150㎡以上)
    个人/公司简介:
    陈智超设计工作室:打造梦想之家,始于2025,深耕广州8年 陈智超设计工作室,2025年成立于广州,是一家专注于室内设计的全案设计工作室。我们深知,家不仅是栖身之所,更是心灵的港湾。因此,我们致力于根据每位屋主的独特需求和生活习惯,量身定制理想之家。 姓名:陈智超 出生年月:1997年8月8日 从业经验:8年 设计机构:广州陈智超设计有限公司 在职机构职务:创始人 设计理念:擅长为独特的屋主做独特的家 主设项目:私人住宅类
    设计说明 | Design Instruction
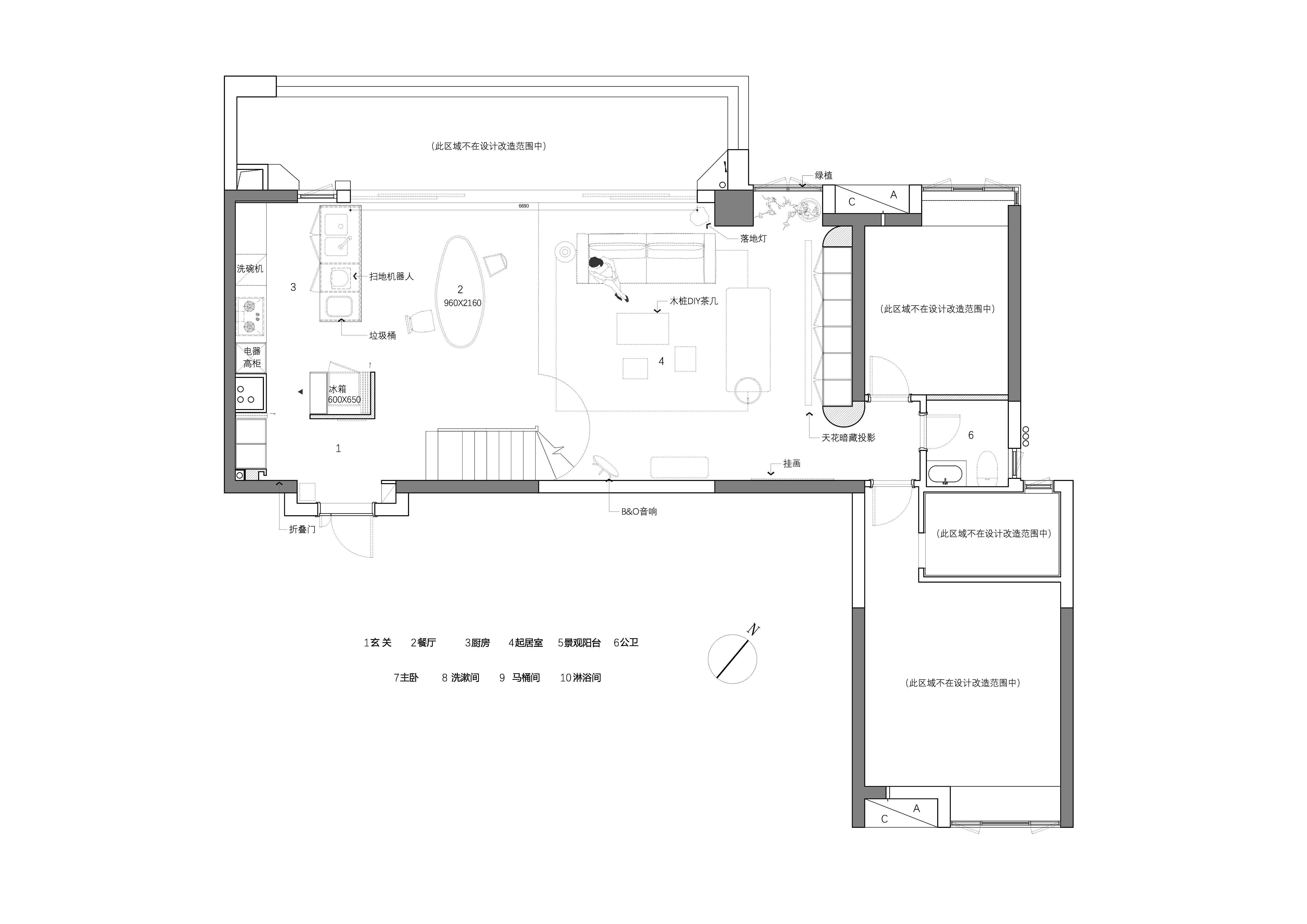
  • 设计“家”像是在创作一件艺术品。创作的过程是一整体,每一处线条是笔触,每一种材质是肌理,每一寸光影是留白,从架构、布展、装饰,最终呈现的不仅是 “能住” 的空间,更是能与情绪共鸣、与时光对话的 “可触摸的艺术”。 居住者=家的“生活策展人” 用生活的点滴,把这个177平的居所变成独属于自己的动态秀场
  • 图片
  • 图片
  • 图片
  • 图片
  • 图片
  • 图片
  • 图片
  • 图片
  • 图片
  • 图片
  • 图片
  • 图片
  • 图片
  • 图片
  • 图片
  • 上一个 下一个
    2025第九届金腾奖 私宅空间 | 旅居空间 | 城市功能空间 | 人气设计师 | NEW100 jintengAWARD(小金_金腾奖组委会) 广州市海珠区琶洲大道68号华新中心21楼
    金腾奖视频号 金腾奖小红书号 监制:余佳灵
    统筹:张俊媚
    运营:赖钰炼 曹凯月 刘芳棋 小金
    新媒体:王贝贝 严洁 张文一
    技术:丁德昌
    最终解释权归金腾奖主办方所有