Man Yu
作品详情
  • Details of the work 标题横线
    头像或者logo
    图片 蒋美霖 橙设传媒特约推荐
    城市:温州市
    公司: 霖社·空间设计
    参赛作品: 蔓钰
    空间类型:平层(150㎡以上)
    个人/公司简介:
    L&S Design 霖社·空间设计|主理人 CIID 注册高级设计师 环境艺术设计专业毕业,后成立 L&S Design 霖社·空间|设计|,专注住宅空间 设计。曾赴西班牙进修建筑设计。 专业的学习及对建筑学习的背景让她具有理性思维,注重空间的逻辑性。强大的感性认 知与色彩的敏感度构建了她美学体系。对其而言,设计不止是设计,是对生活的感悟与 人生的体验而缔造出的结果,是一次又一次的自我超越。 学: 2016 年台湾游学 2017 年意大利游学 2017 年日本游学 2019 年西班牙建筑设计进修 2019 年摩洛哥古建筑深度游学 荣誉: 2018 年 4040(温州)设计杰出青年 2018 年 IDS 国际设计先锋榜 获“优胜奖” 2019 年 城市名宿设计创新大赛 获“最佳视觉奖” 2019 年 她设计奖 获“年度优秀空间设计奖” 2019 年 4040 设计“杰出青年” 2019 年 IDS 国际设计先锋榜 “铜奖” 2020 年乐清十佳家装设计大赛“十佳设计师” 2020 年 DESIGN FOCUS 国际居住空间设计 年度住宅公寓空间设计“优秀奖” 2021 年金住奖“十大居住空间设计师” 2021 年 4040 设计“杰出青年” 2023 年金住奖·十大居住空间设计师 设计理念:感悟生活 创造空间 设计改变生活方式
    设计说明 | Design Instruction
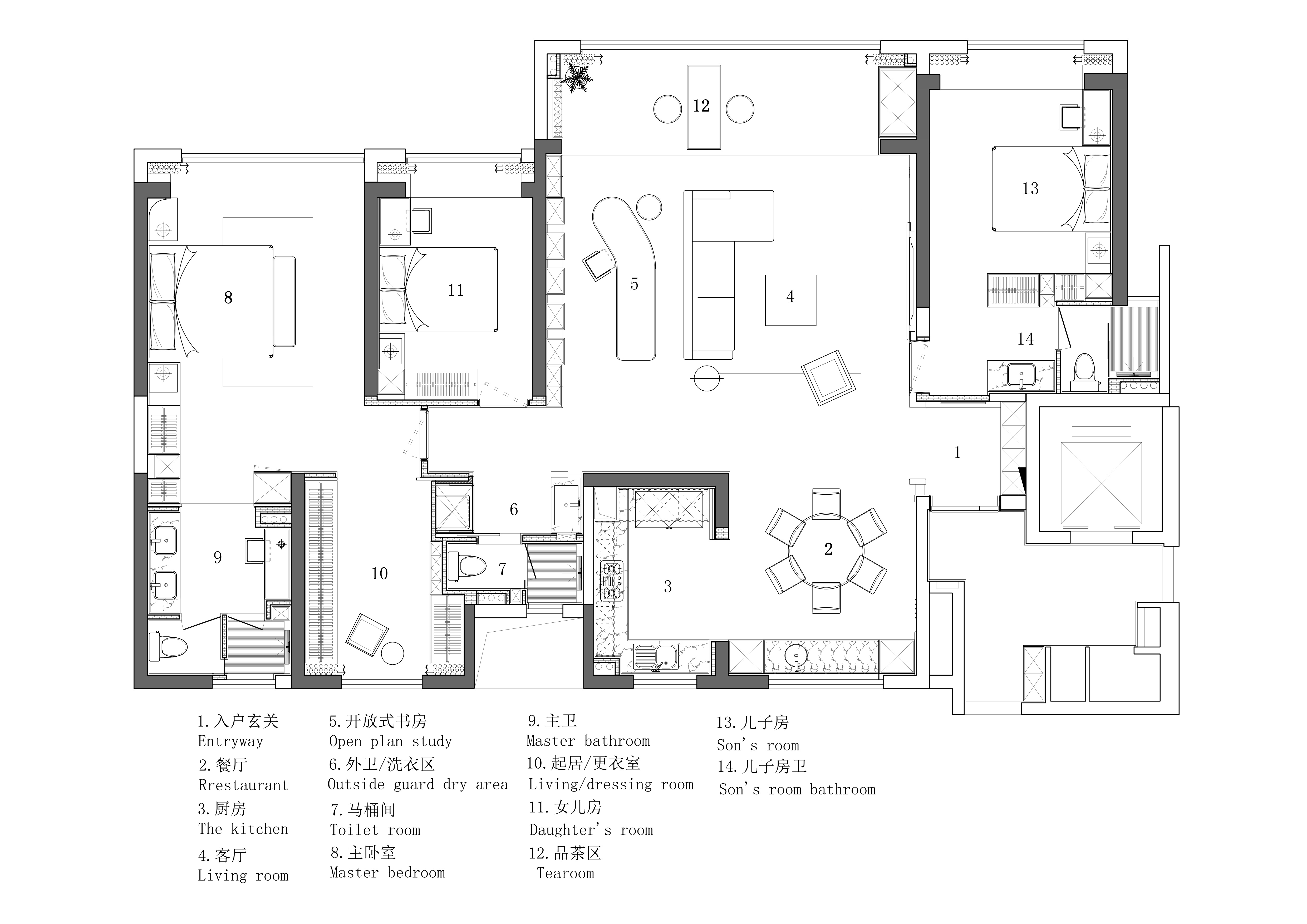
  • 艺术并非模仿生活,而是生活在模仿艺术。 ——奥斯卡·王尔德 01光影流动 家,不仅仅是一个居住的空间,更是居者审美情趣和精神内核的映射。它是心灵的追寻之地,是驻留的港湾,被赋予了更加开放、多元且丰富的定义。 步入客厅,宽阔的尺度赋予空间奢雅纵横的格调,以艺术范的感召力强调了视觉的美学力量。在摒弃掉生活阳台的设置后,为客厅注入丰沛的采光,横向拉长纵深感,光影交织下,空间的灵性徘徊于场域之间。 居所的场景设计取决于居住者的需求,在客厅后方设计了开放式书房,与整个客厅的布局和风格相协调,满足当下工作和生活的双重需求,同时增加家人之间的互动性。 品茶区的抬高设计是对动到静的过渡处理,阳光渗入,日出而作,日落而息,透过窗格,透过墙面,随着时间变化,慢慢在空间里晕染开来。 02烟火人间 人向往的家宅归属感,除了具备向外的包容性,同时也拥有向内的松弛感。入户门采用圆弧造型衔接内与外的联系,打破平淡界限,归家的仪式感从入门开始便缓缓展开。 厨房墙面以复古花砖拼贴,强烈的色彩和精细的花纹渗透到每个细致末微的感悟,为空间增添了别样的风情,投射出家人共享的无数美好瞬间。在餐厅一侧增加了西厨区,最大化利用空间,根据生活场景的需求调整其功能。 多重材质之间的碰撞,呈现流动的肌理感,刻写在空间场景的生动细节之中,在开放的空间中找到微妙的平衡。设计师将洗衣机烘干机设计于此,洗手台和洗衣台共存,减少空闲区域的存在,提高了视觉上的舒适度。 03梦醒时分 家的底色缤纷多样,有时色彩成为勾勒家的框架,有时记忆成为家的唯一背景。抛开嘈杂的外环境,卧室承载了身心休整的小憩时光,最终指向心灵的栖息,淡雅的色调将内敛的低调尽情体现。 真正的品质生活在于直抵人心的身心体验,而不仅仅是外在呈现的美感。根据业主的居住需求,设计师将原北面的卧室改为更衣室,这不仅是一个简单的衣物储放空间,更是男主人所需的思考和冥想空间。 设计师将梳妆台的位置进行了调整,将其设计在主卫内,使得更衣室的空间得到了更好的利用,也让主卫的功能更加完善,保证了在使用上的互不干扰。 女儿房以粉色为基调,于无限清透之中融入一抹绿调,源自对自然的无限自由想象,当阳光洒落,与之交织出朦胧的趣艺。 男孩房简约而又不失功能性的设计,在注重空间品味基调的同时,通过局部蓝色系点缀,营造多重层次的空间视觉。 人之归处, 是生活的渴望,亦是理想的栖身港湾。
  • 图片
  • 图片
  • 图片
  • 图片
  • 图片
  • 图片
  • 图片
  • 图片
  • 图片
  • 图片
  • 图片
  • 图片
  • 图片
  • 图片
  • 图片
  • 图片
  • 图片
  • 图片
  • 图片
  • 图片
  • 图片
  • 图片
  • 图片
  • 图片
  • 图片
  • 图片
  • 图片
  • 图片
  • 图片
  • 图片
  • 图片
  • 图片
  • 图片
  • 上一个 下一个
    2025第九届金腾奖 私宅空间 | 旅居空间 | 城市功能空间 | 人气设计师 | NEW100 jintengAWARD(小金_金腾奖组委会) 广州市海珠区琶洲大道68号华新中心21楼
    金腾奖视频号 金腾奖小红书号 监制:余佳灵
    统筹:张俊媚
    运营:赖钰炼 曹凯月 刘芳棋 小金
    新媒体:王贝贝 严洁 张文一
    技术:丁德昌
    最终解释权归金腾奖主办方所有