Romance and healing from blue
作品详情
  • Details of the work 标题横线
    头像或者logo
    图片 任浩然 华耐设计基金特约推荐
    城市:南京
    公司: 南京理所设计工作室
    参赛作品: 来自蓝色的浪漫和治愈
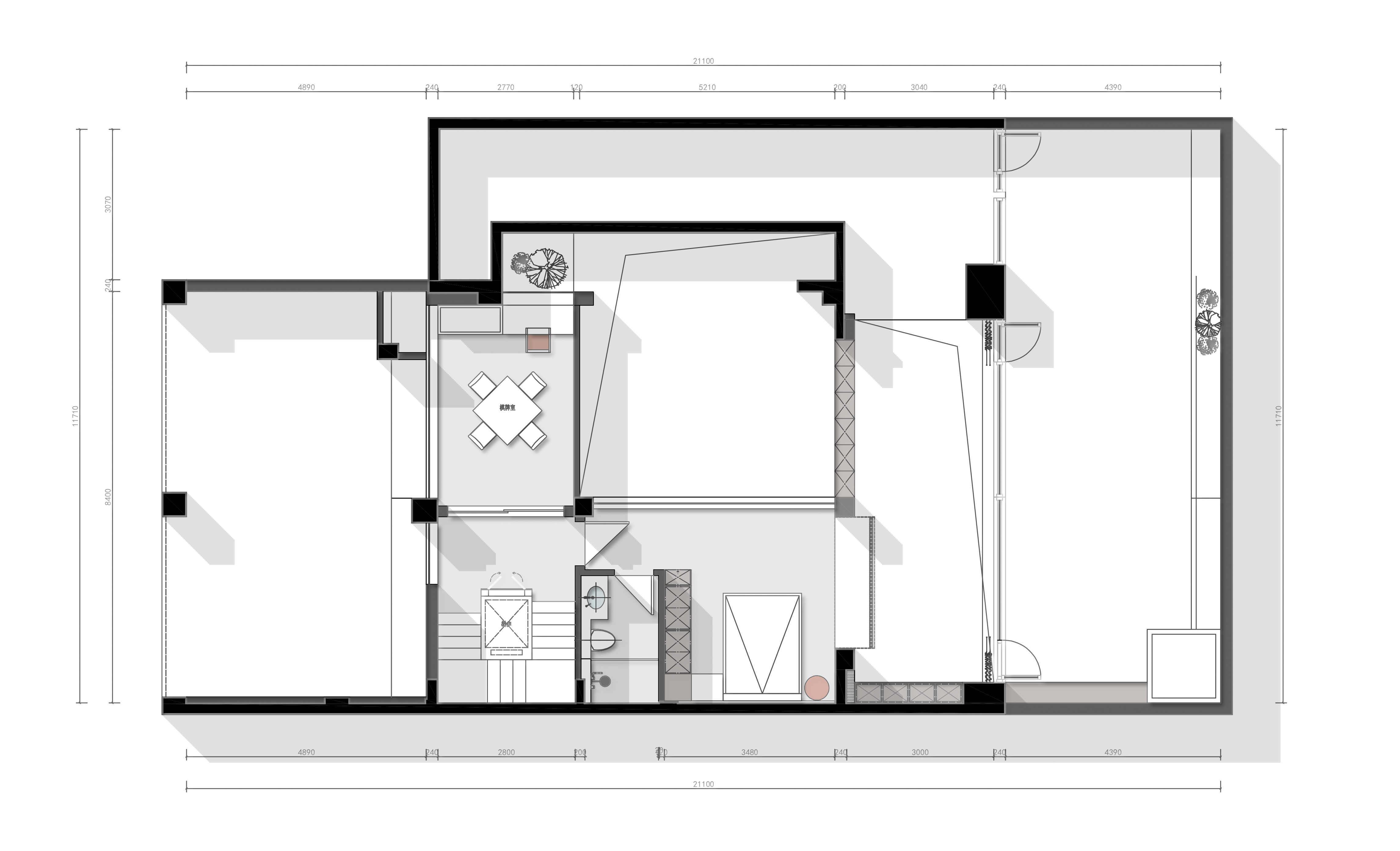
    空间类型:别墅
    个人/公司简介:
    任浩然,2009年毕业于南京师范大学美术学院环境艺术设计专业。2009-2018就职于南京锦华装饰公司,2018-2023就职于江苏一塑一宅装饰公司,2024成立理所设计工作室。 所获奖项: 建筑装饰高级设计师(国家注册) 中国建筑学会室内设计分会会员 中国室内设计师协会专业会员 2018年作品荣获(筑巢奖)第五届中国国际空间环境艺术设计大赛(住宅空间)优秀奖 2019年华耐杯最具创意奖 2018年荣获第八届中国国际建筑装饰及设计博览会最具创新设计人物(住宅空间类) 2018年获得“赛唯雅卫浴杯”南京室内设计大奖赛优秀奖 2016年获得第十届中国国际建筑装饰及设计博览会年度中国十大影响力室内设计师荣誉 2020年获得南京室内设计大赛获得家装实例类优秀奖 2019年获得"全国住宅装饰装修行业"优秀设计师称号 2020年获得“芒果奖” 2024年荣获缪斯设计奖 2024年理所设计工作室荣获金腾奖先锋设计NEW100设计机构
    设计说明 | Design Instruction
  • 在艺术的浩瀚星空中,蓝色常常是那最引人瞩目的星辰。 蓝色主题的现代风格设计通过简约的布局、精选的材质与细腻的色彩搭配,创造出一个舒适、宁静且具有现代感的生活空间。蓝色作为主色调,赋予空间无限的想象与深度,同时也展现了极简主义设计追求的精致与优雅。 负二层绝佳的挑高将空间的高规格诠释,一整面蓝色的大通柜,打破了传统设计的束缚;顶面镜面元素的反射,将原本不高的层高纵向拉伸,视觉上削弱了低层高带来的压抑感,为室内带来了更加丰盈的质感。 一层通过增加拱形钢板的设计,弱化了柱子,强调了入户的仪式感。 卧室里蓝色家具的加入瞬间提升格调。 蓝色是梵高笔下的梦幻星空,是海边治愈心灵的微风,是家居角落的温馨慰藉,忙碌一天后踏入蓝色调房间的瞬间松弛,它启迪未来,仿若那无尽的蓝,延展着希望与梦想,等待我们勇敢奔赴。
  • 图片
  • 图片
  • 图片
  • 图片
  • 图片
  • 图片
  • 图片
  • 图片
  • 图片
  • 图片
  • 图片
  • 图片
  • 图片
  • 图片
  • 图片
  • 图片
  • 图片
  • 图片
  • 图片
  • 图片
  • 图片
  • 图片
  • 图片
  • 图片
  • 图片
  • 图片
  • 图片
  • 图片
  • 图片
  • 图片
  • 图片
  • 图片
  • 图片
  • 图片
  • 图片
  • 图片
  • 图片
  • 图片
  • 上一个 下一个
    2025第九届金腾奖 私宅空间 | 旅居空间 | 城市功能空间 | 人气设计师 | NEW100 jintengAWARD(小金_金腾奖组委会) 广州市海珠区琶洲大道68号华新中心21楼
    金腾奖视频号 金腾奖小红书号 监制:余佳灵
    统筹:张俊媚
    运营:赖钰炼 曹凯月 刘芳棋 小金
    新媒体:王贝贝 严洁 张文一
    技术:丁德昌
    最终解释权归金腾奖主办方所有