Multi habitat among clouds
作品详情
  • Details of the work 标题横线
    头像或者logo
    图片 汤约孟
    城市:温州市
    公司: 温州市初相室内设计有限公司
    参赛作品: 多栖云间
    空间类型:别墅
    个人/公司简介:
    在室内空间设计、软装陈设艺术设计、商业空间等方面均有成熟的案例和经验。我们只做自己擅长领域的设计,专注于私宅及商业空间,且面向全国展开有创意的空间设计服务。 用我们的专业和对设计的执着热爱,完成委托人的信任打造他的理想空间,我们一直相信好的空间是能传递情绪与人产生链接。
    设计说明 | Design Instruction
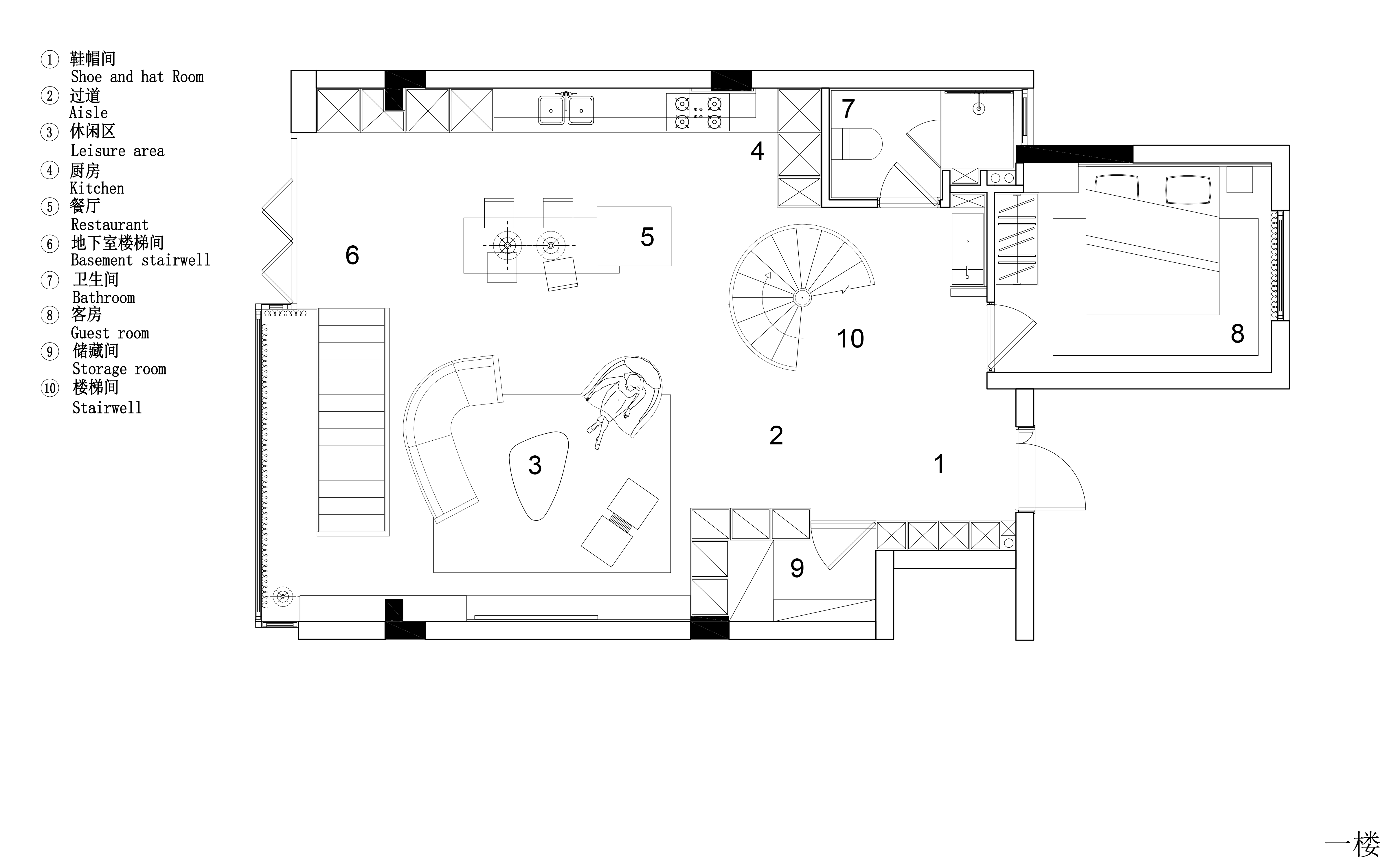
  • 当丰富的藏书成为生活的主角,居住空间便面临一场深刻的理性博弈:如何让承载生活的物理容器,既满足功能性的逻辑需求,又为阅读行为与生活行为保留呼吸的间隙。 设计的核心命题,在于如何平衡藏书密度与空间舒适度,在此案中,地下室因其独特的结构条件,成为这场博弈的关键战场。 设计切入空间结构,原本笨重的整体楼梯被解构为多处分散的踏步,这不仅重塑了空间的动线与层次,更暗含对传统空间递进逻辑的革新。 阶梯与书墙的结构性融合,展现出设计对美感与功能主义的独特思考。梯体成为书架的承重基座,拾级而上的过程转化为取阅高处典籍的自然行为,物理的“攀登”与智识的“攀登”在此实现同频。 书房区域通过阶梯的自然抬升形成区域间的界定关系。大量木元素的使用成为空间理性的具象化表达,它们与满墙的书籍形成材质与精神的共振,前者是经年累月沉淀的木质纤维,后者是人类思想经久的结晶。 空间刻意留白,让书籍本身的色彩、厚度、装帧成为空间本身,拒绝任何喧宾夺主的装饰性干扰。 为对抗地下空间的封闭性,设计将顶部墙体凿刻出线性缝隙与几何开孔,来自一层的自然天光顺势而来。如此,光不再是简单的照明工具,更为空间带来向上生长的张力。 书桌、茶台、阶梯的错落排布,使阅读行为挣脱固定场所的束缚,随处皆可自然落座,徜徉于知识的海洋。 一层客厅延续地下室的整体风格,使用大量木元素与布艺材质形成自然舒适的居住体验,并带来更具有沉淀感的空间氛围。场景彻底消解“功能盒子”的区隔逻辑,将餐厅、吧台与沙发落座以自由形态共生,完全的敞开式设计不仅拓展了视觉的通透性,更重构了现代家庭的社交仪式。 沿弧形楼梯向上来到空间的私密领域,场景语言亦趋于内敛,继续衍用木与布艺的整体格调,同时营造更为质朴的休憩氛围。 设计并未在场景中做过多装饰性的铺设,仅仅在“钻石”黑纱窗帘处制造戏剧性表达,当阳光穿透而入,地面便跃动着璀璨的光斑,将自然的偶然性引入静谧的私人领域,从而形成空间的视觉重心,带来层次分明的变化。 空间设计的过程,其本质是一场设计逻辑与居住者精神图景的深度对话,此案中每一处对“藏书密度”与“人居尺度”的理性回应,都超越了单纯的功能解决需求,成为空间在居住行为与精神深度间的理性对弈,最终,居住的过程升华为一场与知识共生的存在性实验。
  • 图片
  • 图片
  • 图片
  • 图片
  • 图片
  • 图片
  • 图片
  • 图片
  • 图片
  • 图片
  • 图片
  • 图片
  • 图片
  • 图片
  • 图片
  • 图片
  • 图片
  • 图片
  • 图片
  • 图片
  • 图片
  • 图片
  • 图片
  • 图片
  • 图片
  • 图片
  • 图片
  • 图片
  • 图片
  • 图片
  • 图片
  • 图片
  • 图片
  • 图片
  • 图片
  • 图片
  • 图片
  • 图片
  • 图片
  • 图片
  • 图片
  • 图片
  • 上一个 下一个
    2025第九届金腾奖 私宅空间 | 旅居空间 | 城市功能空间 | 人气设计师 | NEW100 jintengAWARD(小金_金腾奖组委会) 广州市海珠区琶洲大道68号华新中心21楼
    金腾奖视频号 金腾奖小红书号 监制:余佳灵
    统筹:张俊媚
    运营:赖钰炼 曹凯月 刘芳棋 小金
    新媒体:王贝贝 严洁 张文一
    技术:丁德昌
    最终解释权归金腾奖主办方所有