Gentle . Griet . The Call  of  Life
作品详情
  • Details of the work 标题横线
    头像或者logo
    图片 南京丽丽舍建筑设计有限公司 华耐设计基金特约推荐
    城市:南京市
    公司:南京丽丽舍建筑设计有限公司
    参赛作品: 温柔 . 沉静 . 生活的呼唤
    空间类型:别墅
    个人/公司简介:
    南京丽丽舍建筑设计有限公司是一支由青年才俊汇聚而成的创新设计团队,正致力于凭借持续的创新精神,在室内设计及软装设计领域奋力前行,成为业界的开拓者。他们擅长提炼传统文化、艺术与哲学的精髓,并巧妙融入现代设计理念之中,配合数字化分析工具与国际先锋的设计方法,赋予每个作品以鲜明个性与生命力,让创意与经典交相辉映。 设计师简介 姓名:刘丽霞 公 司:南京丽丽舍建筑设计有限公司 职位:设计总监 往期荣誉: 2024年 - 作品《拙》获艾鼎国际设计奖金奖 - 作品《拙》获日本IDPA AWARD国际先锋设计金奖 - 入选ID星级设计榜 - 入围陈设中国-晶麒麟奖 - 获第四届Design Focus国际空间设计大奖商业空间金奖 - 作品《白露》入围中国室内设计年鉴 - 作品《拙》入围TINTA金邸奖 2023年 - 2023年金住奖-中国(南京)十大居住空间设计师 - 2023年作品作品《白露》获中国室内设计CIID铜奖 - 2023年作品《风荷园售楼处》获美国缪斯设计金奖 - 2023年作品《苏州会所》获伦敦设计金奖 - 2023年作品《白露》获金外滩奖最佳居住空间奖 - 2023年获住小帮设计师大赛年度最佳中户型设计师 - 2023年作品《月出》获芒果奖中国住宅创意奖 - 2023年获老宅新生(南京)十大改造设计师 - 2023年作品《月出》获中国室内设计CIID优秀奖 - 2023年获40 UNDER 40(南京)当代设计杰出青年 - 2023年作品《苏州会所》获伦敦设计金奖 - 2023年入选城市(南京)精英设计师 2022年 - 作品《白露》获金外滩奖最佳居住空间奖 - 作品《白露》入围金堂奖 2021年 - 2021年作品《遇见》获上海设计周新锐中国设计奖 - 2021年她设计-年度优秀空间作品 -2021年金住奖-中国(南京)十大居住空间设计师 -2021年中国设计头条年鉴榜(城市榜)-年度优秀设计项目 2020年 -2020年作品《湖畔》获龙承奖-全国总决赛别墅空间银奖 -2020龙承奖,获全国总决赛别墅空间银奖 2019年 -2019年红棉中国设计奖,获最美雅奢空间设计奖 -2019年作品《蓝色的寄语》入围金堂奖 -2019年红棉中国设计奖—最美雅奢空间设计奖 设计理念:从生活中来到生活中去,做有温度的设计。不要给客户想要的,要给客户需要的,帮客户解决问题,实现客户理想空间需求。
    设计说明 | Design Instruction
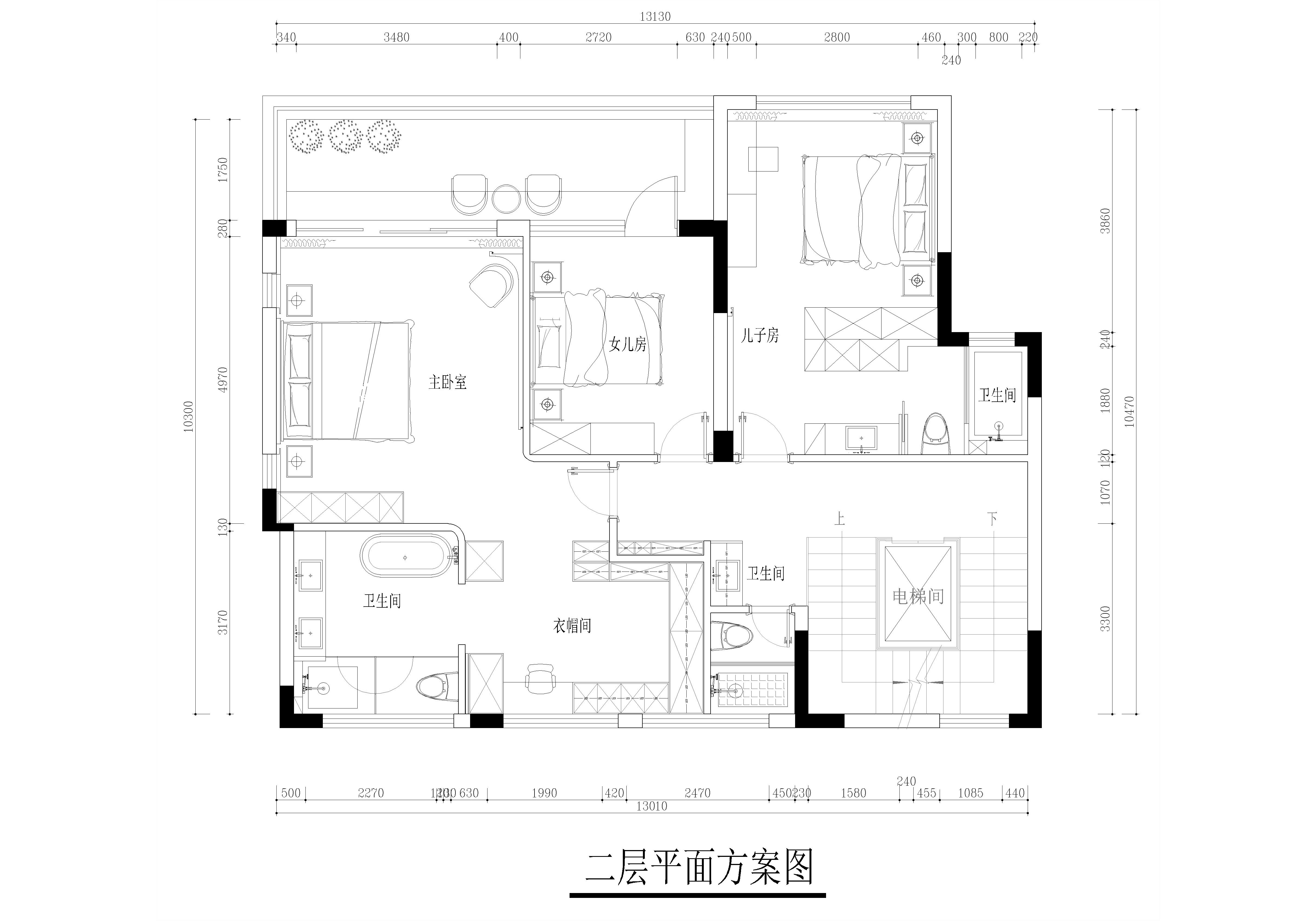
  • 本案是六口之家,父母和业主都是成功的商人。业主的一对儿女也很优秀,儿子学霸,初中生,女儿乖巧可爱。所以一家六口都很忙碌,做生意的做生意,学习的学习。在了解业主这样的生活情况下,设计师在室内空间设计中考虑,打造一种舒适安静的环境,让业主回家身心彻底放松。 刘丽霞在此次设计中采用的是台式设计风格,以简约、自然为核心理念,摒弃了繁琐的装饰元素,借助质朴的色彩和线条流畅的设计风格,打造出充满质感的简约空间。通过细致入微的设计,让家不仅仅是一个居住的空间,更是一个能让全家人放下疲惫、享受宁静与放松的港湾。 客厅从自然界中汲取灵感,将其转化成艺术元素,巧妙的融入空间场景中。大面积的木质顶面给人带来安全的包裹感和无限延伸感。二层主卧空间采用了人字顶设计,顶部精心布置了内嵌灯带,既提供了柔和的照明,又增添了空间层次感和现代感。背景墙的左右两侧保留了原有长条窗的设计手法,不仅让室内光线更加明亮,还引入了室外的自然景色,为室内空间增添了一抹别样的风味。考虑到中学生的喜好学习和动手能力相结合,衣柜不单独是衣柜,也结合了书柜的功能,每天晚上睡觉前或坐在地上可以触手可及的碰到书和喜欢的玩具,保留了孩子好动和童真的一面。 地下室空间是5.5米挑高,我们把一半做了混凝土,给男主人做了一个书房区,给女主做了一个很大的洗衣房空间。剩下的空间我们保留了5.5米的高度,做了公共的接待厅 ,酒吧区,健身区,棋牌室和楼梯电梯区。让负二楼进入空间保留原有高度,增加归家仪式感。 空间的亮点是设计师对入户门的改动,当你踏入这个空间,左侧是一排延伸至天花板的书柜,富有设计感且充满书香气息。设计师对四边形的柱子进行了圆形处理,减弱了柱子的局促感,增加了灯光处理,这一细节处理不仅增强了空间的艺术感,还使得整个负一层空间更加和谐统一。
  • 图片
  • 图片
  • 图片
  • 图片
  • 图片
  • 图片
  • 图片
  • 图片
  • 图片
  • 图片
  • 图片
  • 图片
  • 图片
  • 图片
  • 图片
  • 图片
  • 图片
  • 图片
  • 图片
  • 图片
  • 图片
  • 图片
  • 图片
  • 图片
  • 图片
  • 图片
  • 图片
  • 图片
  • 图片
  • 图片
  • 图片
  • 图片
  • 图片
  • 图片
  • 图片
  • 图片
  • 图片
  • 图片
  • 图片
  • 图片
  • 图片
  • 图片
  • 图片
  • 图片
  • 图片
  • 图片
  • 图片
  • 图片
  • 图片
  • 图片
  • 图片
  • 图片
  • 上一个 下一个
    2025第九届金腾奖 私宅空间 | 旅居空间 | 城市功能空间 | 人气设计师 | NEW100 jintengAWARD(小金_金腾奖组委会) 广州市海珠区琶洲大道68号华新中心21楼
    金腾奖视频号 金腾奖小红书号 监制:余佳灵
    统筹:张俊媚
    运营:赖钰炼 曹凯月 刘芳棋 小金
    新媒体:王贝贝 严洁 张文一
    技术:丁德昌
    最终解释权归金腾奖主办方所有