Sea salt mist
作品详情
  • Details of the work 标题横线
    头像或者logo
    图片 范颖、万柯利 华耐设计基金特约推荐
    城市:南京市
    公司: 南京米饭团装饰设计有限公司
    参赛作品: 海盐薄雾
    空间类型:平层(150㎡以上)
    个人/公司简介:
    范颖 40+室内设计师 少女心富有感知和创造力 业务范围:私人豪宅 商业空间 品牌主理人|米饭团设计|卡萨设计|贩否 设计事务所和软装全案设计落地 国家注册室内设计师(高级) 国家注册陈设艺术设计师(高级) 南京传媒学院环境设计导师 荣获2024年度设计『千人计划·标杆人物』 2025年进修于米兰理工学院设计学院 2025年M+中国高端室内设计大赛新锐奖 2024年设计千人计划(南京)城市精英设计师 2024年is智能空间设计奖 2024年获奖华为全屋智能设计年度100佳 2024年4OUNDER40(南京)当代设计杰出青年 2024年INTERI0R DESIGN 入选【最佳设计内设计师指南】暨“ID星级设计榜” 2024年红棉设计奖·2024最美雅居空间设计奖 2024年担任南京传媒学院美术与设计学院环境设计专业产业导师职务 2023年亚太空间设计十大精英设计师(南京) 2023年设计千人计划(南京)城市精英设计师 2022年至今创办贩否家居好物 品牌主理人 2017-2021年开设uttermost美国第一家居品牌国内旗舰店 2016年创办软装设计公司卡萨设计 设计主理人 2015年进修于中国美术学院陈设艺术学院 2014年创办室内设计事务所 米饭团设计 设计主理人 2004-2013 北京龙发装饰公司 主案设计师 2004年毕业于南京艺术学院设计学院 设计理念:设计是流动变化的艺术,为使用者的感知而设计,让室内空间具有浪漫主义和富有诗意。 万柯利 : 20+室内设计师 少女心富有感知和创造力 业务范围:私人豪宅 商业空间 设计事务所和软装全案设计落地 2019至今 软装设计公司卡萨设计 软装设计师 设计理念:空间不是最后的结果,幸福才是矢志不渝的设计追求。
    设计说明 | Design Instruction
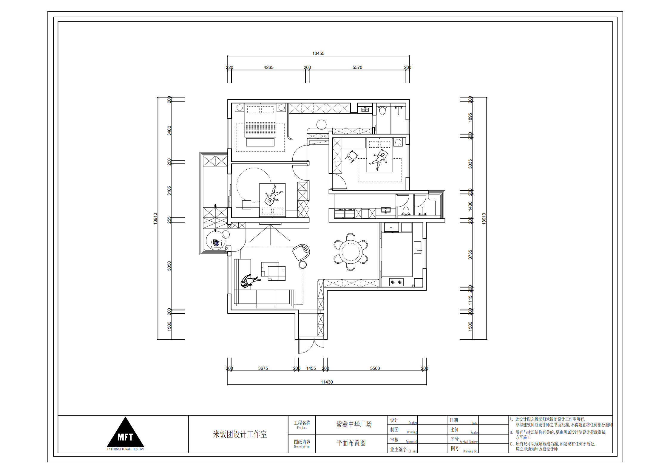
  • 项目位置:紫鑫中华广场 项目面积:150平方 项目风格:现代简约 全案设计:南京米饭团设计事务所 主案设计师:范颖 万柯利 设计说明: 《海盐薄雾------现代居所里的蓝色叙事诗》 晨光是一粒融化的海盐,在艺术漆的纹理里泛起涟漪。岩板深处渗出的那些蓝像未写完的信笺被潮汐沁润,风经过时 带走几克寂静的靛。当第一缕阳光爬上沙发,纱帘轻扬,这个家把故事泡成一杯温热的拿铁,杯沿的弧光里藏着未拆封的早安。 本案以“生活的温度”为起点。通过现代简约的手法,将功能、美学与家庭互动融为一体。墙面采用哑光绸缎艺术漆触感细腻柔,和地面通铺浅灰色哑光瓷砖视觉干净统一。电视背景做白色暗纹电视柜,在美观同时兼顾储物的功能。门厅鞋柜选用浅蓝色岩板,纹理自然过渡,是空间里的点睛之笔。客厅阳台地面抬高15公分打造儿童活动空间,侧面做展示柜,可以摆放儿童的玩具和书籍。 整体空间为无主灯设计 通过磁吸轨道灯、灯带和射灯组合,实现光线层次调节,适配观影、会客等不同场景。浅蓝色岩板从客厅延伸至洗衣台面,淋浴房的宝格丽岩板与洗衣房材质呼应。 主卧床头背景做圆弧造型,增加整体包围感。现场拆除原有的实体隔墙改用金属边框玻璃屏风达到隔而不断的效果。衣帽间所有柜体转角倒圆处理,减少柜体阳角的尖锐感。整体衣柜局部跳色暖黄色,使整体空间更加温情。 南次卧墙面做黑色烤漆洞洞板 可以放置手办等物品 灵活性高。床头右边做了悬浮书桌,以后也是电竞娱乐区。整体色彩是黑白配色,搭配大面的米白色 整体空间既有格调又不失温度。北次卧整体配色更加活泼,奶油色搭配baby蓝。衣柜门板的跳色圆洞设计让整体空间变得活泼。 整案以米、白、黑色为基调,局部点缀低饱和度的蓝和暖橘色平衡整体空间的冷与暖。摒弃多余的装饰,以流畅的动线,柔和的材质和人性化的细节营造轻松舒适的居家环境。 最好的空间,是能听见生活舒展的声音。
  • 图片
  • 图片
  • 图片
  • 图片
  • 图片
  • 图片
  • 图片
  • 图片
  • 图片
  • 图片
  • 上一个 下一个
    2025第九届金腾奖 私宅空间 | 旅居空间 | 城市功能空间 | 人气设计师 | NEW100 jintengAWARD(小金_金腾奖组委会) 广州市海珠区琶洲大道68号华新中心21楼
    金腾奖视频号 金腾奖小红书号 监制:余佳灵
    统筹:张俊媚
    运营:赖钰炼 曹凯月 刘芳棋 小金
    新媒体:王贝贝 严洁 张文一
    技术:丁德昌
    最终解释权归金腾奖主办方所有