Captain's House
作品详情
  • Details of the work 标题横线
    头像或者logo
    图片 米饭团设计事务所 华耐设计基金特约推荐
    城市:南京市
    公司:米饭团设计事务所
    参赛作品: 机长之家
    空间类型:公寓(150㎡以下)
    个人/公司简介:
    南京米饭团室内设计有限公司,成立于2014年,是一家国内前沿的室内设计公司,致力于从事室内设计、软装配套设计等高级定制化设计服务。 公司拥有各类设计项目的丰富经验以及资深项目管理团队,以其新锐的设计理念、独特的运营模式、专业的市场观点、科学的技术施工,在同行业界都受到独特的注目。 公司团队通过前期缜密的构思、设计文化的梳理、精准的空间规划到后期项目完美的落地执行,为客户提供了最优质、贴心的私人定制服务。 公司目前拥有三个独立团队:设计服务团队、施工服务团队、整体软装搭配团队 ; 设计理念:未来的诗意栖息空间 我们共同努力 。 我们是一个喜欢设计的团体,我们的年轻让我们掌握着最前沿的装饰设计的流行风格。 我们主张创意, 我们注重倾听和聆听,我们有奇思妙想,我们尊重每个客户,我们运用各项设计方式来完成您的构想; 我们本着一颗感恩快乐的心,认真对待每一个设计细节。
    设计说明 | Design Instruction
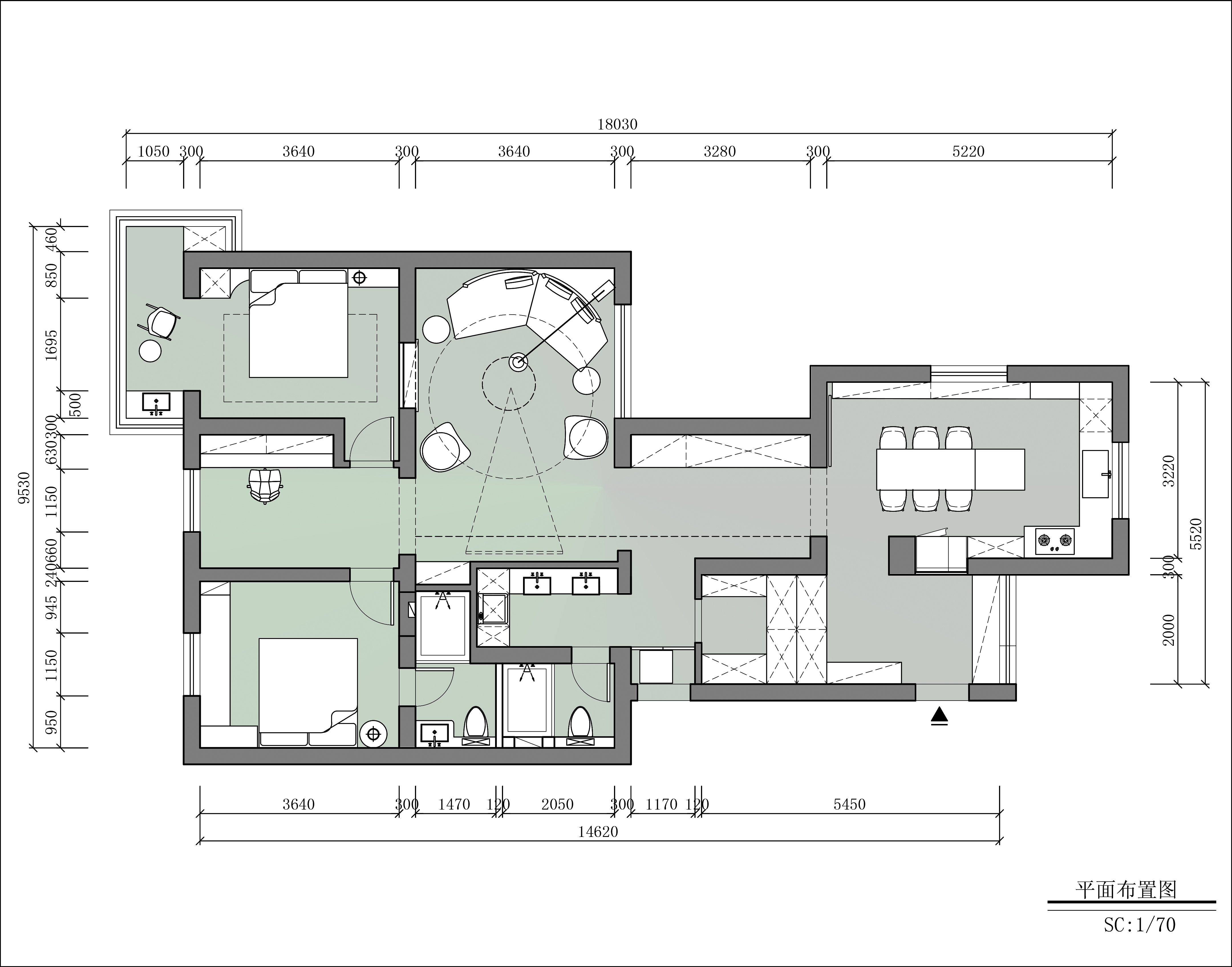
  • 项目地点 | 江苏 · 南京 风格 | 现代简约 设计面积 | 130㎡ 硬装设计 | 米饭团设计事务所 软装设计 | 卡萨设计 设计团队 | 范颖、罗兰 设计时间 | 2023年3月 开工时间 | 2023年5月 竣工时间 | 2023年9月 主要材料 | 胡桃木木饰面、橡木地板、大理石、布艺和艺术涂料 本案是老一辈机长的家,老两口的理想之居,同时承载着两代飞行人的梦想。 以明亮、细腻的空间情绪,给予整个家舒适的生活环境,阅读休闲空间和西厨中岛空间占据了很大面积。对于飞行员来说,在属于自己的空间里做喜欢的事是一种享受,岛台台面采用冷翡翠天然大理石,整个风格时尚精致又不乏温馨。 空间的呈现,以简约的白色打底,明亮又内敛,同时,空间中穿插一些原木色,为家增添了一丝暖意和温馨的氛围,让我们感受到他们内心的温暖和力量。空间中的所有装饰画特意定制为镜面材质,素材都源自于业主的摄影作品。独特的画面构图,特别的拍摄视角,将复杂的美学意蕴简化为明亮的彩色和扁平的图案,为空间平添了一份艺术气息。 客厅沙发和地毯的组合是白云间和水面,是飞行员视角下的不同地貌的组合形态。半弧形的怀抱式布局弱化了棱角,让家庭社交变得舒适,模块化的组合也让空间布局更具灵活性,一切在“舒适”范围内进行着微调。 沙发后的飞机装置,这几架飞机是一个子承父志的故事。男主人原是中国空军飞行员,三架带红色空军标志的即是他飞过的多种机型中的三种机型,右下角那架最小的绿色飞机,是中国空军飞行员必飞的机型——初教六(这架小飞机可以飞特技),它代表了飞行员飞行生涯的正式开始;它左边那架飞机叫伊尔—14,是架苏制老式运输机,国内只进口129架,它有着很多的传奇故事;伊尔—14上面是一架国产轰炸—5型飞机,也是男主人飞过的机型。 最高处这架民航飞机是波音737—800型飞机,是业主家里的儿子曾经飞过的,它右下方这架大的民航客机模型是空客—321neo型飞机,也是业主儿子在疫情期间从德国汉堡飞回来的厦航首架空客飞机,机身上写有“First airbus”。我们共同选了这些承载最有意义的几架飞机模型,岁月漫漫,环顾都是熠熠闪光的回忆。 苍穹之上,他穿梭云间, 翱翔蓝天,看遍飞鸟和彩霞, 云顶之下,他卸下疲惫, 回归家庭,和家人享受属于家的那份独有温情。
  • 图片
  • 图片
  • 图片
  • 图片
  • 图片
  • 图片
  • 图片
  • 图片
  • 图片
  • 图片
  • 图片
  • 图片
  • 图片
  • 图片
  • 图片
  • 图片
  • 上一个 下一个
    2025第九届金腾奖 私宅空间 | 旅居空间 | 城市功能空间 | 人气设计师 | NEW100 jintengAWARD(小金_金腾奖组委会) 广州市海珠区琶洲大道68号华新中心21楼
    金腾奖视频号 金腾奖小红书号 监制:余佳灵
    统筹:张俊媚
    运营:赖钰炼 曹凯月 刘芳棋 小金
    新媒体:王贝贝 严洁 张文一
    技术:丁德昌
    最终解释权归金腾奖主办方所有