Nanjing Moutai Cultural Center
作品详情
  • Details of the work 标题横线
    头像或者logo
    图片 高钧铭 云上设计师俱乐部特约推荐
    城市:南京市
    公司: 羸界建築空間
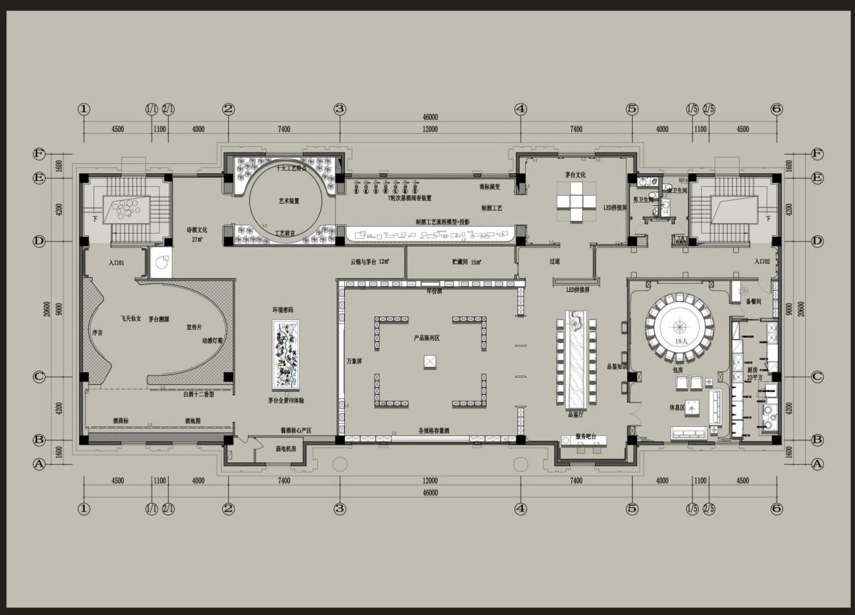
    参赛作品: 南京茅台文化馆
    空间类型:商业
    个人/公司简介:
    高钧铭先生是赢界建筑空间设计(南京)有限公司CEO,深耕南京多年,致力于为客户打造创意性、品质化的设计服务,倡导回归设计解决问题的本质,传递空间美学设计。在对历史和文化充分解读下,用创意灵感及新颖概念设计手法打造品质化的室内体验空间。服务领域涵盖:地产、商业、酒店、办公、高档住宅以及软装家具、灯光亮化等设计管控。拥有丰富的大型项目落地服务经验与专业的成本控制体系。近年获奖经历:2022年华鼎奖国际设计大赛金奖两项;2022年法国双面神室内设计大奖;2022年意大利米兰IIDA国际创新设计大奖;2022年金堂奖年度杰出入围;2023年IAI全球设计奖铜奖、优秀奖两项;2023年金堂奖年度杰出入选;2024年中国室内设计年鉴作品入围;2024年江苏省室内设计学会第十五届星空间杯金奖、铜奖;2024年江苏省室内设计学会第十五届星空间杯十佳设计师。代表作品:《星叶翰锦院售楼处》;《南京茅台文化体验馆》;《扬州万佳华庭合并叠墅》;《欣傲集团办公总部大楼》等。
    设计说明 | Design Instruction
  • 畫意流芳 金陵酒韻共傳情 THE PICTURESQUE FRAGRANCE OF JINLING WINE CONVEYS EMOTIONS TOGETHER 江風裹挾著酒香,吹皺了"抽刀斷水水更流"的愁緒。烏衣巷深處,王謝堂前的金縷衣已化作女兒紅,浸泡著杜牧"隔江猶唱後庭花"的余音。朱自清筆下可"悠然遐想"的古董鋪裏,半壇建昌紅仍在講述著李漁的園居酒事。 醉眼觀天地 DRUNKEN EYES WATCHING THE WORLD 主色調大紅的運用,宛如筆鋒在濃墨重彩的國畫上輕輕壹掃,以熱烈而深沈的色彩爲基底,巧妙裝點著整個空間。 每壹處色彩的碰撞與交融,都賦予了這壹項目獨特的美學風格,沈澱出深厚的曆史底蘊。 在這裏,金陵的靈秀與酒的醇香相互交織,意趣情志彌漫在每壹個角落。 設計師以敏銳的文化觸覺,將極具南京代表性的人文元素巧妙植入場館場地。 金陵,這座曆史文化名城,承載著千年的滄桑與故事,其雅韻在設計師的巧思下,與當代藝術實現了完美結合。 步入這方空間,光影的變幻、材質的碰撞,仿佛穿越時空,與文人雅士共赴壹場酒韻之約。 空間設計中,設計師以情景交融的敘事手法爲靈魂,以考究精巧的動線設計爲經絡,以獨具匠心的空間軟裝爲錦繡,精心雕琢出“引 - 賞 - 識 - 品 - 鑒”五進禮序空間。 步移景異間,尊貴品鑒美酒的體驗循序漸進,如同壹杯佳釀,初嘗時清冽,細品後醇厚,讓人回味無窮。 風雅酒韻滿盈 Elegant wine with full charm 在館內的空間布局上,設計師匠心獨運。 不同的功能分區既各自獨立,又彼此連通,雖分隔卻又相連,形成了壹種“隔而不斷” 的精妙格局。 光與影,是空間的舞者, 賦予空間不同層次的藝術表達。 柔和的光線灑落在展台上,勾勒出茅台酒器的精致輪廓,使其更顯典雅,與精心設計的展板、圖片、多媒體展示相互映襯。 通過這些多元化的展示形式,茅台酒那源遠流長、豐富多彩的故事得以生動呈現。 醇釀寫意金陵風華CHUNNIANG FREEHAND JINLING STYLE 步入品鑒區,壹場跨越感官與文化的邂逅悄然上演。 設計師通過巧妙的元素組合與色彩調配,爲品鑒區鋪陳出獨具魅力的空間畫卷。多重質感在此交相輝映,將空間的藝術性與實用性完美融合。 醇香袅袅間,金陵之氣韻與茅台之醇香在此相互交融、相互烘托。 金陵,這座承載著千年曆史文化底蘊的城市,以其獨特的風雅與靈秀,賦予了空間優雅的氣質與深厚的文化內涵。 而茅台,作爲酒中瑰寶,以其卓越的釀造工藝和醇厚的口感,爲金陵之韻注入了鮮活的生命力。 將金陵之氣韻與茅台之醇香盡數寫就,爲觀者帶來壹場跨越時空的奢華體驗。
  • 图片
  • 图片
  • 图片
  • 图片
  • 图片
  • 图片
  • 图片
  • 图片
  • 图片
  • 图片
  • 图片
  • 图片
  • 图片
  • 图片
  • 图片
  • 图片
  • 图片
  • 图片
  • 图片
  • 图片
  • 图片
  • 图片
  • 图片
  • 图片
  • 图片
  • 图片
  • 图片
  • 图片
  • 图片
  • 图片
  • 图片
  • 图片
  • 图片
  • 上一个 下一个
    2025第九届金腾奖 私宅空间 | 旅居空间 | 城市功能空间 | 人气设计师 | NEW100 jintengAWARD(小金_金腾奖组委会) 广州市海珠区琶洲大道68号华新中心21楼
    金腾奖视频号 金腾奖小红书号 监制:余佳灵
    统筹:张俊媚
    运营:赖钰炼 曹凯月 刘芳棋 小金
    新媒体:王贝贝 严洁 张文一
    技术:丁德昌
    最终解释权归金腾奖主办方所有