Qinglu
作品详情
  • Details of the work 标题横线
    头像或者logo
    图片 陈智超
    城市:东
    公司: 陈智超设计
    参赛作品: 青庐
    空间类型:公寓(150㎡以下)
    个人/公司简介:
    陈智超设计工作室:打造梦想之家,始于2025,深耕广州8年 陈智超设计工作室,2025年成立于广州,是一家专注于室内设计的全案设计工作室。我们深知,家不仅是栖身之所,更是心灵的港湾。因此,我们致力于根据每位屋主的独特需求和生活习惯,量身定制理想之家。 姓名:陈智超 出生年月:1997年8月8日 从业经验:8年 设计机构:广州陈智超设计有限公司 在职机构职务:创始人 设计理念:擅长为独特的屋主做独特的家 主设项目:私人住宅类
    设计说明 | Design Instruction
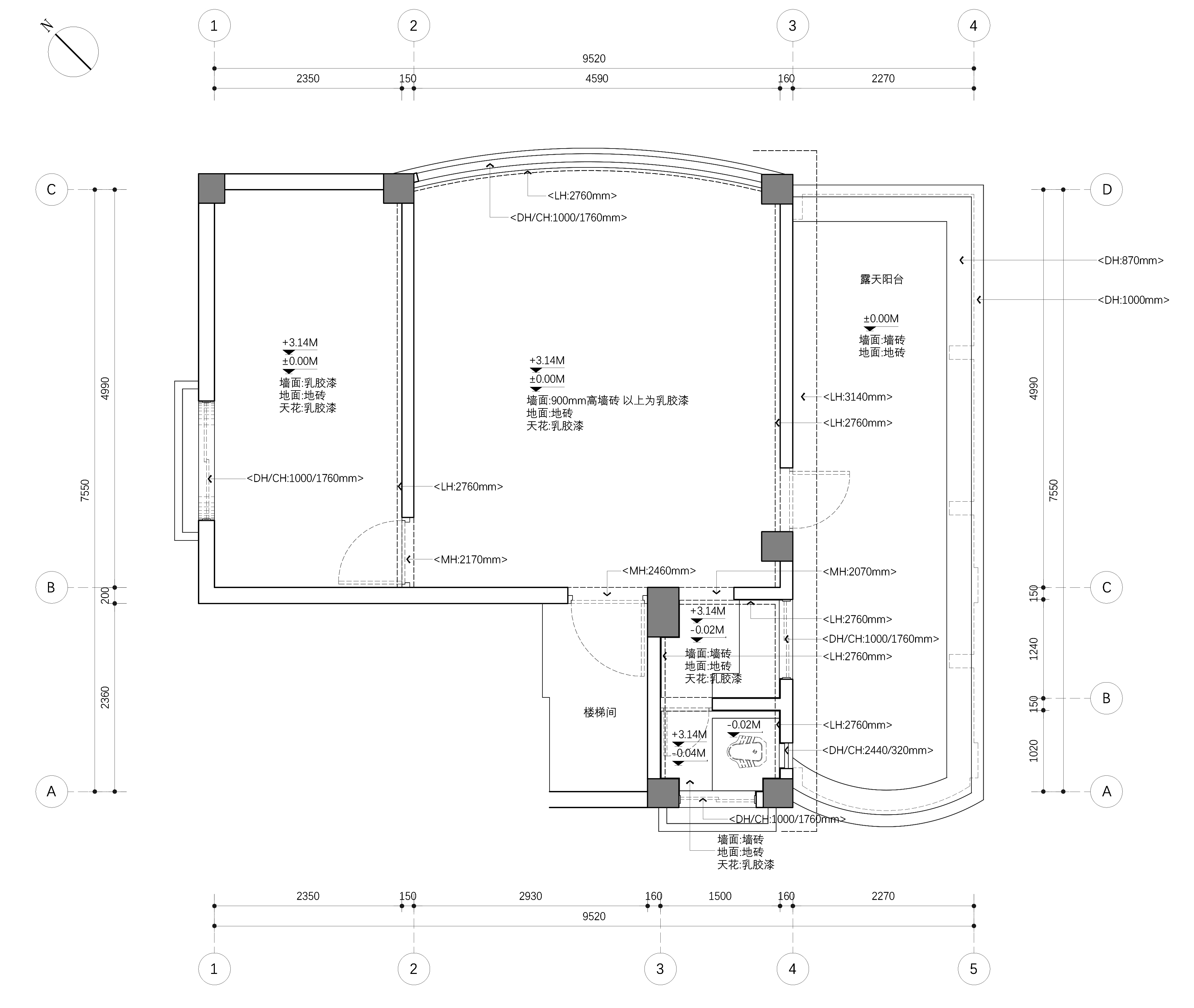
  • 青庐」源自古代婚房之名,承载着传统婚俗的温情寓意。 窗外是城中村的烟火气,窗内是两人的诗意栖居。当95后新婚夫妻放弃千篇一律的「精装房」,设计师用135㎡的老自建房,以「青庐」为名,在传统婚房与现代美学间找到平衡。 奶油风的治愈基调,为新婚生活打造一座兼具仪式感与功能性的理想居所。 初次踏入这栋位于佛山城中村的自建房时,设计师笑言:「改造后定会成为村里最靓的仔!」建筑共两层,总面积135㎡,原始格局却问题重重: 一楼痛点: 1.进门即见客厅,毫无私密性; 2.两间卧室占据最佳采光面,导致客厅白天也需开灯; 3.厨房与阳台拥挤不堪,动线混乱,收纳几近于无; 4.卫生间未做干湿分离,卧室尺寸失调,储物功能缺失。 二楼痛点: 1.入口区域沦为废弃晾晒区,阳台利用率极低; 2.卫生间淋浴与蹲坑混用,存在安全隐患; 3.卧室动线迂回,空间规划与生活需求严重脱节。 平面改造策略 动静垂直分区: 一楼作为社交主场(会客、餐厨), 二楼打造私密生活区(卧室、休闲)。 硬装重构: 两层空间均进行大幅度格局调整,以「引光、纳景、塑形」为核心逻辑。 一楼改造重点: 1.破除暗室:拆除客厅两侧墙体,将自然光引入户型中心,终结「白天开灯」的窘境; 2.厨房重生:合并阳台扩充厨房面积,优化操作动线,收纳容量翻倍; 3.空间转换:东侧卧室改为西厨餐厅,西侧卧室化身书房兼电竞房; 4.弧形叙事:处理碍眼立柱为艺术圆柱,玄关至卫生间的弧形墙面柔化归家路径。 二楼改造重点: 1.光之容器:打通阳台外墙,将最佳采光面赋予主卧,并增设休闲露台; 2.未来预埋:西侧卧室改造为上下错层空间,预留儿童游乐园可变性; 3.干湿三分离:借用部分阳台重塑卫生间,实现洗漱、淋浴、如厕独立; 4.小盒子建筑:采用非对称墙体与磨砂天窗,让光线从顶部漫入每个角落。
  • 图片
  • 图片
  • 图片
  • 图片
  • 图片
  • 图片
  • 图片
  • 图片
  • 图片
  • 图片
  • 图片
  • 图片
  • 图片
  • 图片
  • 图片
  • 图片
  • 图片
  • 图片
  • 图片
  • 图片
  • 图片
  • 上一个 下一个
    2025第九届金腾奖 私宅空间 | 旅居空间 | 城市功能空间 | 人气设计师 | NEW100 jintengAWARD(小金_金腾奖组委会) 广州市海珠区琶洲大道68号华新中心21楼
    金腾奖视频号 金腾奖小红书号 监制:余佳灵
    统筹:张俊媚
    运营:赖钰炼 曹凯月 刘芳棋 小金
    新媒体:王贝贝 严洁 张文一
    技术:丁德昌
    最终解释权归金腾奖主办方所有