ODC OFFICE
作品详情
  • Details of the work 标题横线
    头像或者logo
    图片 邹璇
    城市:广州市
    公司: 广州市汇创装饰工程有限公司
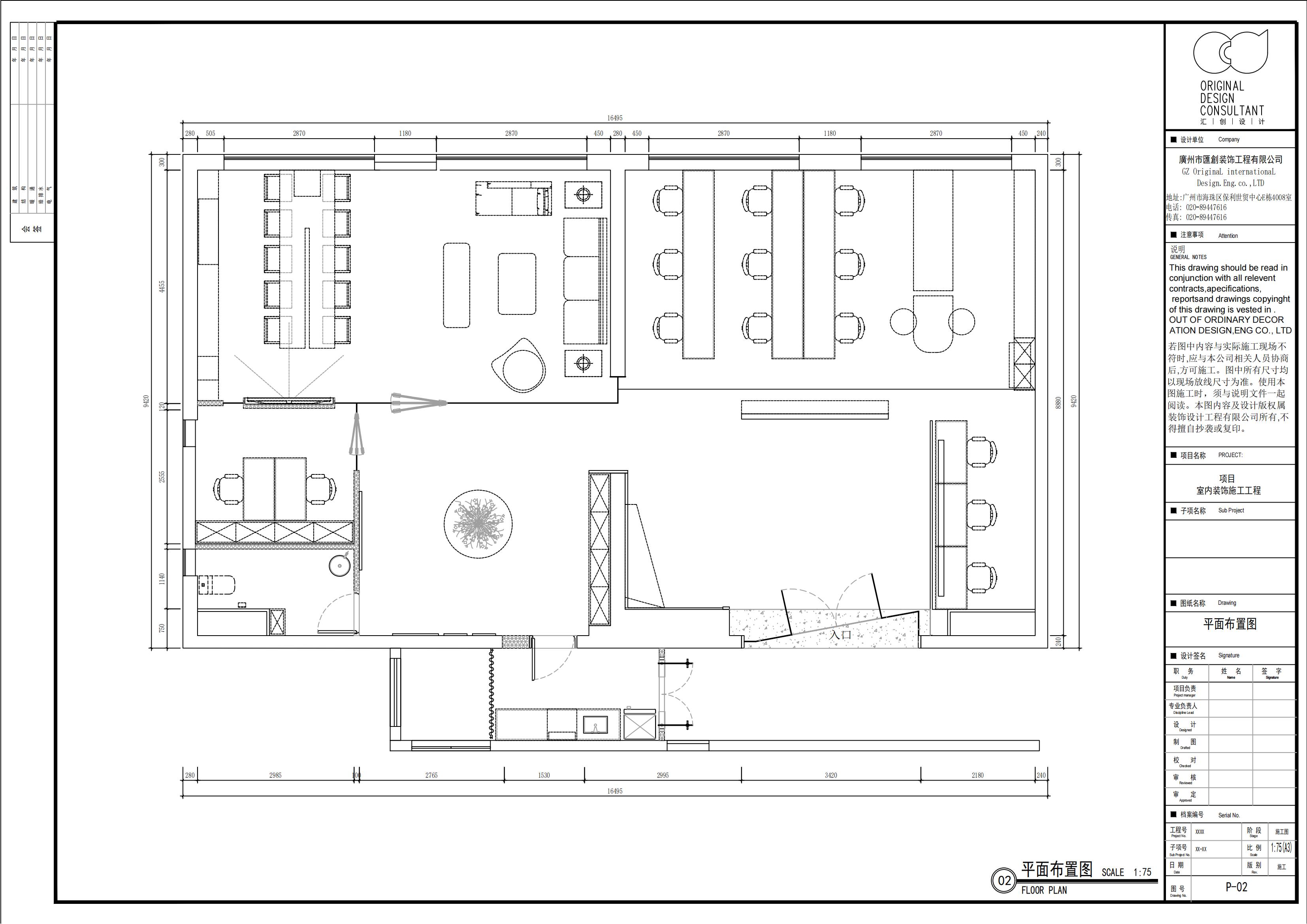
    参赛作品: 汇创设计 办公室
    空间类型:办公
    个人/公司简介:
    邹璇 ZOE 汇创设计创始人,苏州启迪汇创设计顾问有限公司创始人 高级工程师、2022年安德马丁推荐设计师 广东家纺家居行业产业发展顾问 汇创设计创始人、设计师邹璇女士毕业于广州美术学院,获得环境艺术设计研究生学位。深耕设计行业20余年,为多位实业企业家提供商业与家居空间设计定制服务,拥有丰富而多元的一线实践经验,致力于以「空间提案师」的角度洞察用户需求,注重规划逻辑、场域体验与商业价值,通过人与空间的互动、建筑内外的关系、功能与艺术的最大化,提升空间与使用者链接的价值。
    设计说明 | Design Instruction
  • 本次改造以突破空间边界为核心,让环境本身成为故事的讲述者。设计不仅融合创新理念与精湛工艺,更通过对结构、光影、材质与视觉效果的精准把控,在遵循功能需求的同时实现美学突破。 空间中保留的十年玻璃隔断,已从单纯的功能构件转变为见证企业发展的历史符号。我们通过精心设计的光线布局,使自然光在其表面形成动态变化的光影效果,营造出静谧而富有张力的空间氛围。这种光与影的互动,为使用者提供了驻足思考的契机。 中国瓷器作为传统工艺的结晶,被巧妙融入现代办公环境。我们通过材质对比与形态呼应,让传统瓷器的温润质感与现代设计的简约语言形成和谐对话。这种设计手法既是对文化根源的致敬,也是对传统与现代融合可能性的探索,为办公空间增添了独特的人文气息。 瓷器与国画的古典美学与现代元素在空间中相互渗透,共生共荣。与此同时,我们在空间的构建上消解了中心与边缘的界限,使历史与未来、新旧结构在此处交汇对话。通过这种文化与时空的深度融合,我们超越了物理与观念的束缚,赋予空间以新的定义与无限可能。这一作品不仅是对传统与现代的致敬,更是对未来空设计边界的探索与挑战。
  • 图片
  • 图片
  • 图片
  • 图片
  • 图片
  • 图片
  • 图片
  • 图片
  • 图片
  • 图片
  • 图片
  • 图片
  • 图片
  • 图片
  • 图片
  • 图片
  • 图片
  • 图片
  • 图片
  • 图片
  • 图片
  • 图片
  • 上一个 下一个
    2025第九届金腾奖 私宅空间 | 旅居空间 | 城市功能空间 | 人气设计师 | NEW100 jintengAWARD(小金_金腾奖组委会) 广州市海珠区琶洲大道68号华新中心21楼
    金腾奖视频号 金腾奖小红书号 监制:余佳灵
    统筹:张俊媚
    运营:赖钰炼 曹凯月 刘芳棋 小金
    新媒体:王贝贝 严洁 张文一
    技术:丁德昌
    最终解释权归金腾奖主办方所有