Lakeside Serenity Manor
作品详情
  • Details of the work 标题横线
    头像或者logo
    图片 邹璇
    城市:广州市
    公司: 广州市汇创装饰工程有限公司
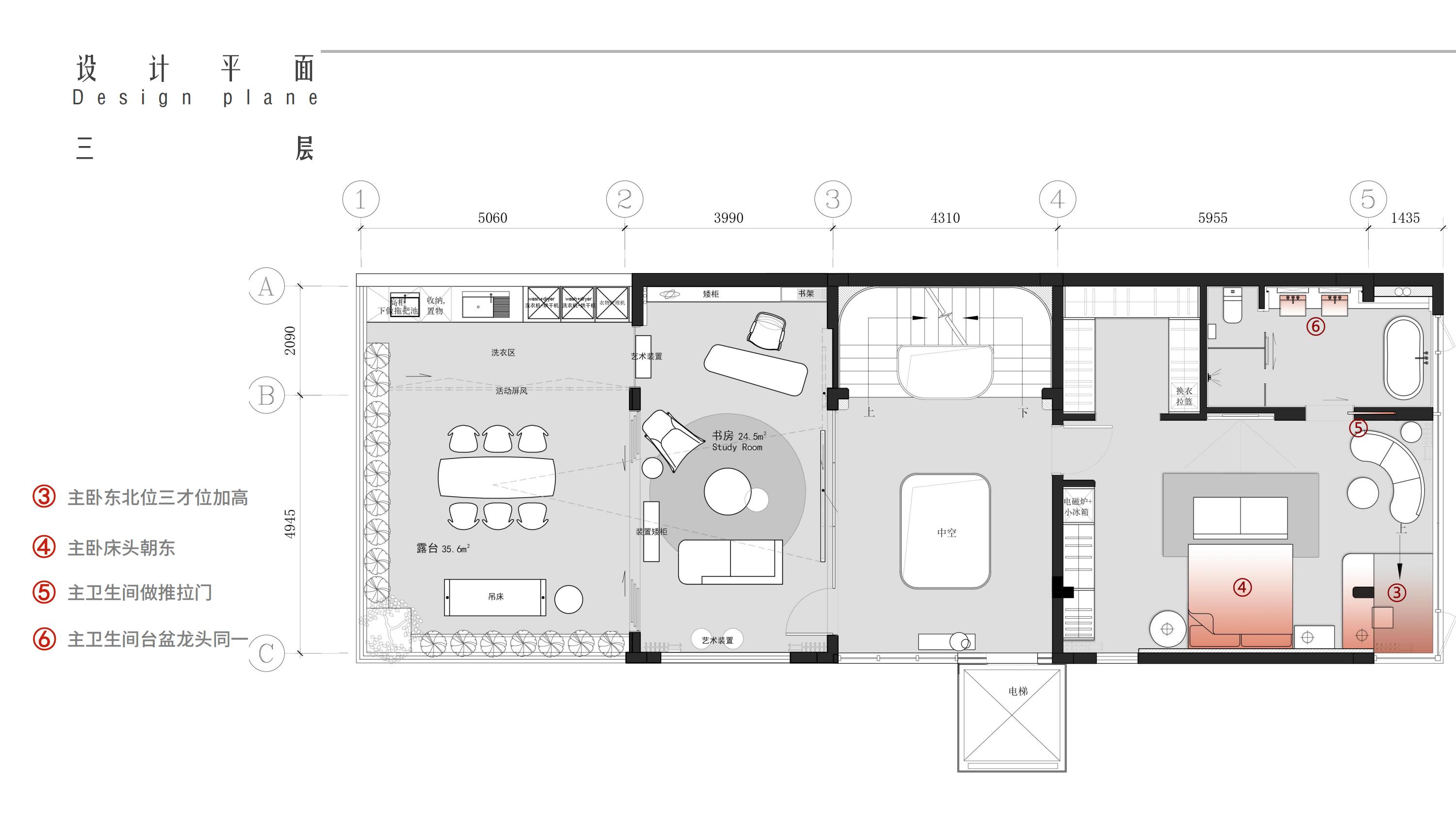
    参赛作品: 畔湖悠然奢宅
    空间类型:别墅
    个人/公司简介:
    邹璇 ZOE 汇创设计创始人,苏州启迪汇创设计顾问有限公司创始人 高级工程师、2022年安德马丁推荐设计师 广东家纺家居行业产业发展顾问 汇创设计创始人、设计师邹璇女士毕业于广州美术学院,获得环境艺术设计研究生学位。深耕设计行业20余年,为多位实业企业家提供商业与家居空间设计定制服务,拥有丰富而多元的一线实践经验,致力于以「空间提案师」的角度洞察用户需求,注重规划逻辑、场域体验与商业价值,通过人与空间的互动、建筑内外的关系、功能与艺术的最大化,提升空间与使用者链接的价值。
    设计说明 | Design Instruction
  • 贴近自然,尽享雅致 东情为魂,西韵为骨,共同营造灵动而和谐的湖畔生活环境。 空间主题名称:畔湖悠然奢宅 项目面积:812m² 完工时间:2025年 设计风格:现代简约 本案以东情西韵的自然人文为基调,意欲在山清水秀的荔湖畔打造一处拥抱自然的心灵栖所。托身心于荔湖之畔的悠然天地,晨光初破晓,漫步于湖畔小径,每一次呼吸都满载着自然的清新与芬芳;每一刻都流淌着温情与美好,生活于此,尽享雅逸。 整体空间巧分三叠,各区域视野独立而互不侵扰,无论立于何方,皆能悠然赏鉴湖光山色,尽享无限景致。湖光波动巧妙融入设计,边界消融,自然与室内无缝相接。透明材质轻盈串连,空间流畅,室内外界限模糊共生。东南亚融合南洋情调,结合出独特的东方话语。每一处细节都焕发新意,共同营造灵动而和谐的湖畔生活环境。  餐厅处于首层的最高位,可畅享湖景,动静间互不干扰。阳光温柔倾洒,与会客厅的东情西韵相照应。生活韵味在光影交错中悠然浮现,暖意融融间,洋溢着东西方文化交融的温馨与雅致。 拾级而上,步入了静谧的居住层领地。在这里,心境随着周遭的宁静而沉淀,外界的纷扰与喧嚣仿佛都被一扇无形的门温柔地隔绝。这是一处能让心灵得以休憩的避风港,每一刻的停留,都让思绪深入内心的平和之境,时间在这里变得悠长而缓慢,让人忘却尘世的纷纭,只余下一片宁静与自在。 主卧临畔,窗外景致深远辽阔,追求素雅,少饰多空,营造出一方恬静自如的休憩天地。这不仅是一种居住空间的设计,更是对生活的一种减法哲学,让人在宁静中悠然自得。 一隅一角,依傍湖心,沉浸于静谧悠逸间。
  • 图片
  • 图片
  • 图片
  • 图片
  • 图片
  • 图片
  • 图片
  • 图片
  • 图片
  • 图片
  • 图片
  • 图片
  • 图片
  • 图片
  • 图片
  • 图片
  • 图片
  • 图片
  • 图片
  • 上一个 下一个
    2025第九届金腾奖 私宅空间 | 旅居空间 | 城市功能空间 | 人气设计师 | NEW100 jintengAWARD(小金_金腾奖组委会) 广州市海珠区琶洲大道68号华新中心21楼
    金腾奖视频号 金腾奖小红书号 监制:余佳灵
    统筹:张俊媚
    运营:赖钰炼 曹凯月 刘芳棋 小金
    新媒体:王贝贝 严洁 张文一
    技术:丁德昌
    最终解释权归金腾奖主办方所有