manzhouli friendship hotel
作品详情
  • Details of the work 标题横线
    头像或者logo
    图片 吴瑶 北疆设计力量特约推荐
    城市:内蒙古自治区满洲里市
    公司: 直角空间设计室
    参赛作品: 满洲里友谊宾馆
    空间类型:酒店
    个人/公司简介:
    2005年毕业于内蒙古建筑职业技术学院,于上海同济大学灯光设计深造,2024年与王值共同创立直角空间设计室,曾荣获广州设计周4040设计师
    设计说明 | Design Instruction
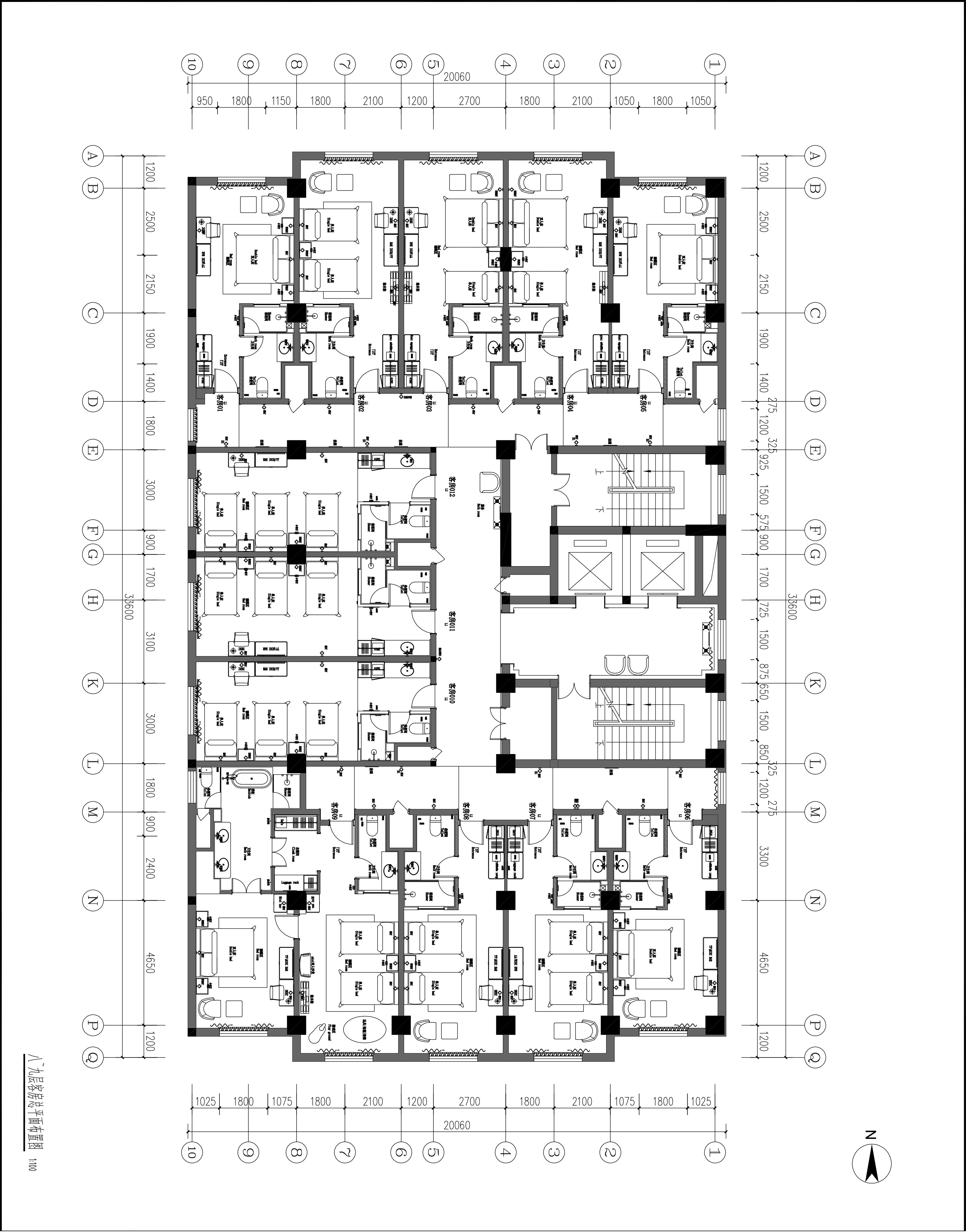
  • 满洲里友谊宾馆属四星级酒店,项目位于内蒙古满洲里市,建筑面积23900平米,始建于1992年,2024年9月至2025年5月重新装修并投入使用,由于其地理位置及特殊历史背景,其设计风格定义为俄式风格(俄罗斯风格),色彩浓郁艳丽,配色大胆花样多变。大堂净高仅4.2米,面积近800平米,高度严重不足是本次改造设计的最大痛点难点,本案在增加纵向高大植物及中央镜面水系来拉伸空间视觉高度,并在灯光设计手法上最大限度提升空间感,并通过改变原有总台位置,通过设置中央花房及中央水系,来制造出两条中轴对称线,增加客人办理入住时的仪式感,中央花房里面的白孔雀致敬俄罗斯东宫的黄金孔雀!从主题意义上突出中俄友谊的历史文化主题!客房部分大面积铺贴俄罗斯风格壁布,灵动的小燕子在天花板上空盘旋呢喃!让人感觉到无限灵感!
  • 图片
  • 图片
  • 图片
  • 图片
  • 图片
  • 图片
  • 图片
  • 图片
  • 图片
  • 图片
  • 图片
  • 图片
  • 图片
  • 图片
  • 图片
  • 图片
  • 图片
  • 图片
  • 图片
  • 图片
  • 图片
  • 图片
  • 图片
  • 图片
  • 图片
  • 图片
  • 图片
  • 图片
  • 图片
  • 图片
  • 图片
  • 图片
  • 图片
  • 图片
  • 图片
  • 图片
  • 图片
  • 图片
  • 图片
  • 图片
  • 图片
  • 图片
  • 上一个 下一个
    2025第九届金腾奖 私宅空间 | 旅居空间 | 城市功能空间 | 人气设计师 | NEW100 jintengAWARD(小金_金腾奖组委会) 广州市海珠区琶洲大道68号华新中心21楼
    金腾奖视频号 金腾奖小红书号 监制:余佳灵
    统筹:张俊媚
    运营:赖钰炼 曹凯月 刘芳棋 小金
    新媒体:王贝贝 严洁 张文一
    技术:丁德昌
    最终解释权归金腾奖主办方所有