Eastern Aesthetic
作品详情
  • Details of the work 标题横线
    头像或者logo
    图片 刘思佳 华耐设计基金特约推荐
    城市:河北省承德市
    公司: 刘思佳设计服务机构
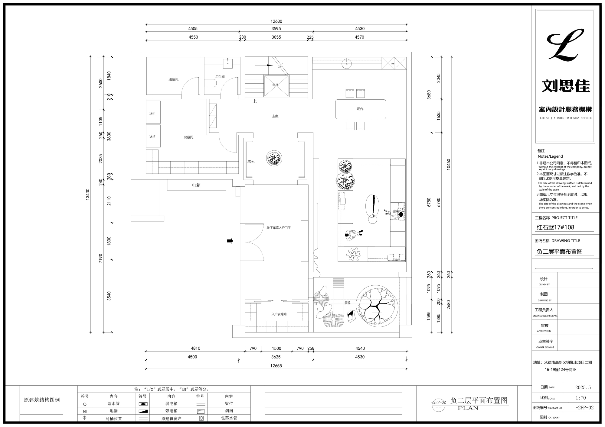
    参赛作品: 东方意境
    空间类型:别墅
    个人/公司简介:
    刘思佳室内设计服务机构创始人 IAAPC职业资格认证协会授予国际注册高级软装陈设设计师职业资格(国际注册号C1905R1006S2060) IED国际软装与陈列设计硕士学位 CIDA认证室内设计师 2016年米兰理工大学DESIGNFOR设计深造 2018年日本东京艺术大学设计深造 2019年威尼斯美术学院,艺术与设计体验学术深造 2021年清华大学美术学院进修空间环境艺术设计 2023年同济大学米兰班深造 2025年清华大学美术学院进修人居环境与生活方向创新设计 2024-2025担任第十二届筑巢奖终极评委 获得奖项: 2016中装协全国杰出中青年设计师 2017第五届中国国际空间环境艺术设计大赛别墅工程类铜奖 2019第九届筑巢奖优秀奖 WAD设计青年设计师大会2019年杰出设计师 2020荣获中国家装设计百强人物 2020第四届中国室内设计新势力榜木作美学设计奖 2021第十届筑巢奖别墅空间优秀奖 2023筑巢奖商业-餐饮优秀奖
    设计说明 | Design Instruction
  • 以画入园,因画成景;东方意蕴,西方语境。 本案融合传统中式美学与当代居住理念,以《雍正十二月行乐图》为灵感,重新诠释东方文化的现代格调。设计从功能与舒适出发,借无界理念与温情笔触,于细节处见匠心,构筑一个悦己之居。我们以表象与感知为媒介,深入洞察居者生活,提升日常便捷性,从容中见奢华,雅致中显熨贴,超越视觉表象,直抵内心向往的“家”。 地下区域彻底打破传统空间划分,将庭院、茶室、玄关巧妙融合。下沉庭院融合了采光井的物理尺度,却拓展了天地意境,引景入室。于此观影、品茶、饮酒、棋牌、健身,皆可体验“疏影横斜水清浅,暗香浮动月黄昏”的诗意浪漫。 楼梯与电梯一体化设计,重塑空间的垂直动线。转折处的折角结构,以介于雕塑与建筑之间的装置语言呈现,体块如叠砌的建筑盒子,重构出视觉的韵律与节奏。嵌入式灯带以无边界照明系统巧妙融于楼梯结构之中,消弭灯具与空间的界限,形成光源藏于内、光效显于外的逻辑。 一层空间通过围合型沙发与圆桌柔和界定客厅与餐厅,强调开阔视野与自在休憩的体验。餐厅如家庭的恒温器,圆桌由Vincent Van Duysen设计,居于核心,呈现纯粹而理性的平衡之美,呼应东方人骨子里的团圆情结。客厅与庭院形成内外对话,树影探入室内,空间与自然交织,于此会客、品茶、用餐,皆伴“疏影横斜水清浅,暗香浮动月黄昏”之景致。 二层儿童区采用低饱和度哑光饰面,贯彻“感知优先”的理念。局部点缀高反差材质,构建视觉与感官的张力。近乎绘画性的装饰语汇软化了墙体的刚性,如宣纸肌理中笔墨的渗透与停留,营造出东方式的秩序与朦胧意境。 三层主卧入口以半隐式布局与材质层叠,营造尊贵而私密的过渡仪式。全幅景窗引入流动光景,哑光木饰与细腻织物并置,柔性边界模糊了室内外之分,让情绪与自然悄然相接。 所谓奢华,实为私享领域的奢适体验。触手可及的质感、至精至简的造型、光影与色彩的细微点缀,于此隔绝纷扰,回归生活本真。古铜金属勾勒立体轮廓,夹丝玻璃营造朦胧之美,延伸的过道与宽奢的尺度,让每一次归家,都成一场仪式。
  • 图片
  • 图片
  • 图片
  • 图片
  • 图片
  • 图片
  • 图片
  • 图片
  • 图片
  • 图片
  • 图片
  • 图片
  • 图片
  • 图片
  • 图片
  • 图片
  • 图片
  • 图片
  • 图片
  • 图片
  • 图片
  • 图片
  • 图片
  • 图片
  • 图片
  • 图片
  • 图片
  • 图片
  • 上一个 下一个
    2025第九届金腾奖 私宅空间 | 旅居空间 | 城市功能空间 | 人气设计师 | NEW100 jintengAWARD(小金_金腾奖组委会) 广州市海珠区琶洲大道68号华新中心21楼
    金腾奖视频号 金腾奖小红书号 监制:余佳灵
    统筹:张俊媚
    运营:赖钰炼 曹凯月 刘芳棋 小金
    新媒体:王贝贝 严洁 张文一
    技术:丁德昌
    最终解释权归金腾奖主办方所有