Xi’an Poly Oriental Mansion Marketing Center
作品详情
  • Details of the work 标题横线
    头像或者logo
    图片 明德设计
    城市:珠海市
    公司:明德设计
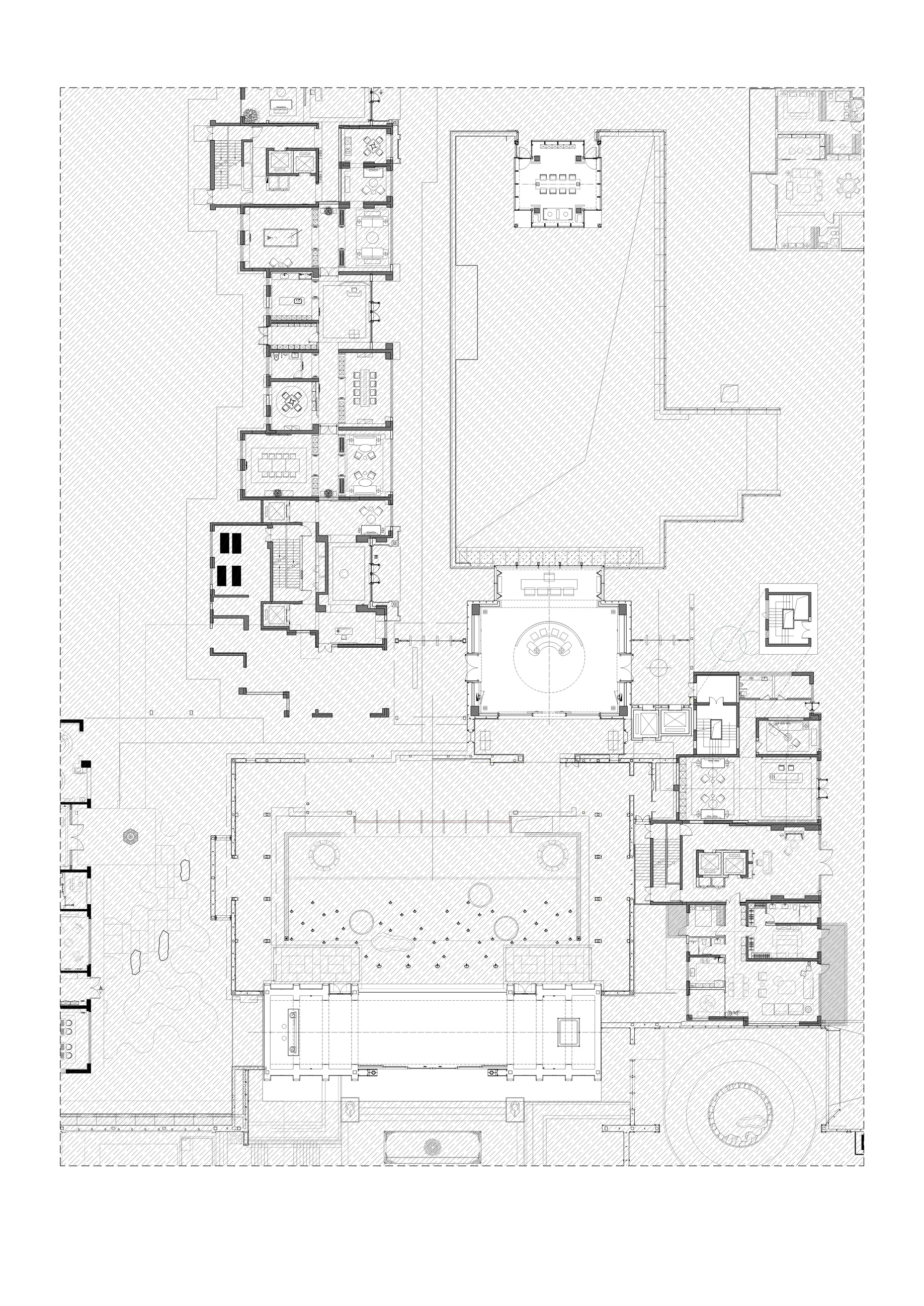
    参赛作品: 西安保利天瑞营销中心
    空间类型:商业
    个人/公司简介:
    明德设计由王大成先生于1997年创立,秉持“以精诚至精深”的匠心精神,历经28年的沉淀,不断探索。 明德总部位于珠海,深圳、上海、成都、郑州设有分公司。明德设计拥有近三百人的设计梯队及系统性人才,设计成员背景多元化,以国际化视野为地产、商业、办公、酒店、教育、文旅、度假等提供综合类设计及咨询服务。
    设计说明 | Design Instruction
  • 明德设计新作-西安保利天瑞营销中心,脱胎于西安千年文脉基因,西安保利选址于有“灵境信为绝,法堂出尘氛。”之绝句的青龙寺,将唐盛期的典雅恢弘,端丽脱俗的中国古典建筑哲学以现代手法改造,凸显与西安这个十三朝古都的东方繁奢府院气质。 保利天瑞项目强调中式的对称与序列感,并以府院空间的“二进”与“三进”作为打造空间节奏的设计笔触,在进出之间仅限圈层奢享的归家典范。其中仕林贵族气质的“翰林雅集”作为独立的阅读空间,以东方传统的书院结构手法独家打造,传承西安千年人文气质,为宾客创造一个享受高雅文化艺术生活的场域。
  • 图片
  • 图片
  • 图片
  • 图片
  • 图片
  • 图片
  • 图片
  • 图片
  • 图片
  • 图片
  • 图片
  • 图片
  • 图片
  • 图片
  • 图片
  • 图片
  • 图片
  • 图片
  • 图片
  • 图片
  • 上一个 下一个
    2025第九届金腾奖 私宅空间 | 旅居空间 | 城市功能空间 | 人气设计师 | NEW100 jintengAWARD(小金_金腾奖组委会) 广州市海珠区琶洲大道68号华新中心21楼
    金腾奖视频号 金腾奖小红书号 监制:余佳灵
    统筹:张俊媚
    运营:赖钰炼 曹凯月 刘芳棋 小金
    新媒体:王贝贝 严洁 张文一
    技术:丁德昌
    最终解释权归金腾奖主办方所有