Verdant Realm
作品详情
  • Details of the work 标题横线
    头像或者logo
    图片 薛文逢
    城市:台湾桃园市
    公司: 胤象空間有限公司
    参赛作品: 靜翠之境
    空间类型:餐饮
    个人/公司简介:
    「讓設計改變生活,讓生活成為設計靈感。」 胤象空間秉持著以人為本的設計初衷,融合專業實務經驗及創新思維;打造出獨特舒適、實用美觀的設計方案。 透過設計達到空間上的優化、實現業主心中的桃花源地!更不畏懼迎接每一次的設計挑戰,追求無限的可能性。
    设计说明 | Design Instruction
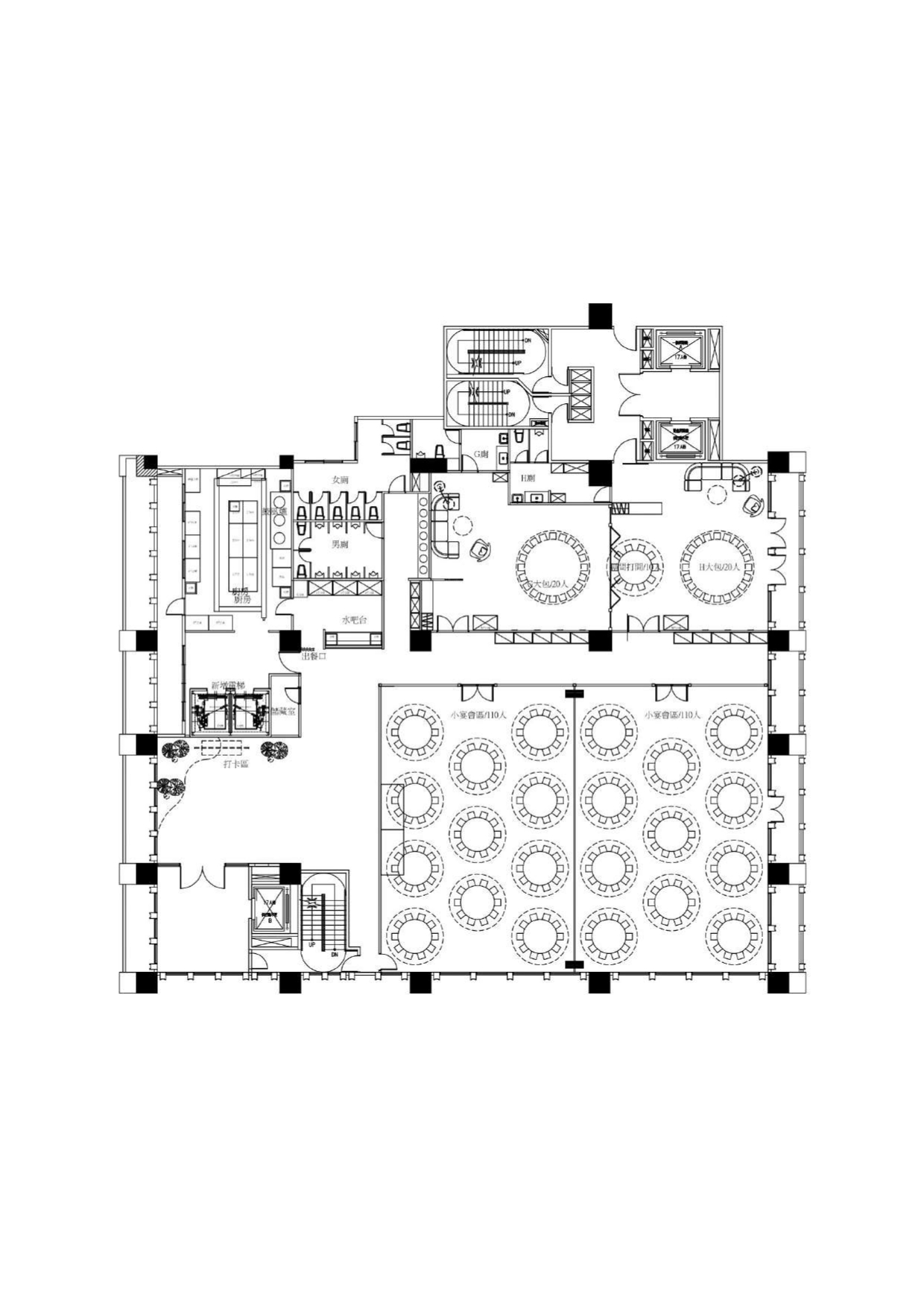
  • 整體空間在設計上藉由異材質的手法,增添空間豐富層次,讓日式風格也能有輕奢的美感,結合日式屋簷貫穿整個主場,搭配藝術元素上的融合,並以竹林、瀑布、岩壁、星空意象,連結大自然的細膩美感,搭配手工木雕打造錦鯉於迎賓區引導動線,營造富有詩意的用餐空間。 入口牆面以瓦片打造古錢符號,寓意順利圓滿,同時以透光大理石做為迎賓主視覺,搭配石皮、格柵、氣氛燈將接待區完整形塑,隱喻步步高昇的竹節,創造內斂的日式調性;櫃檯以玫瑰金鈦金版提升空間質感;吧檯搭配瑰麗的綠色石紋版,營造壯闊氛圍,下方的透光玻璃磚則作為動線指引;以翠綠夾紗玻璃打造屏風,界定場域時也讓綠意延伸整個空間;天花板使用淺色木皮,並將製作壽司的手勢訂製在鼓面上;讓天花板不在單調,而是充滿職人對料理的堅持。 宴會廳天花板將日式格柵改成斜角拼接,搭配現代的鋁擠燈讓空間立體度增加,凸顯明暗對比的動感。 運用炭化木板於空間,其生產能耗較低,減少碳排放的同時,也因不添加任何化學藥劑,提高了室內空氣質量,保障使用者的健康;採用環保批批板,以低甲醛及塑化劑,能打造健康的餐飲空間。 在走廊及通道,設定隔盞開燈或減少燈管數,同時細分燈光迴路,降低日常的使用能耗;在大門口裝設空氣簾或自動門,以節省能源。
  • 图片
  • 图片
  • 图片
  • 图片
  • 图片
  • 图片
  • 图片
  • 图片
  • 图片
  • 图片
  • 图片
  • 上一个 下一个
    2025第九届金腾奖 私宅空间 | 旅居空间 | 城市功能空间 | 人气设计师 | NEW100 jintengAWARD(小金_金腾奖组委会) 广州市海珠区琶洲大道68号华新中心21楼
    金腾奖视频号 金腾奖小红书号 监制:余佳灵
    统筹:张俊媚
    运营:赖钰炼 曹凯月 刘芳棋 小金
    新媒体:王贝贝 严洁 张文一
    技术:丁德昌
    最终解释权归金腾奖主办方所有