Radahlia Floral art space
作品详情
  • Details of the work 标题横线
    头像或者logo
    图片 TWOSLEEPERS
    城市:杭州市
    公司:TWOSLEEPERS
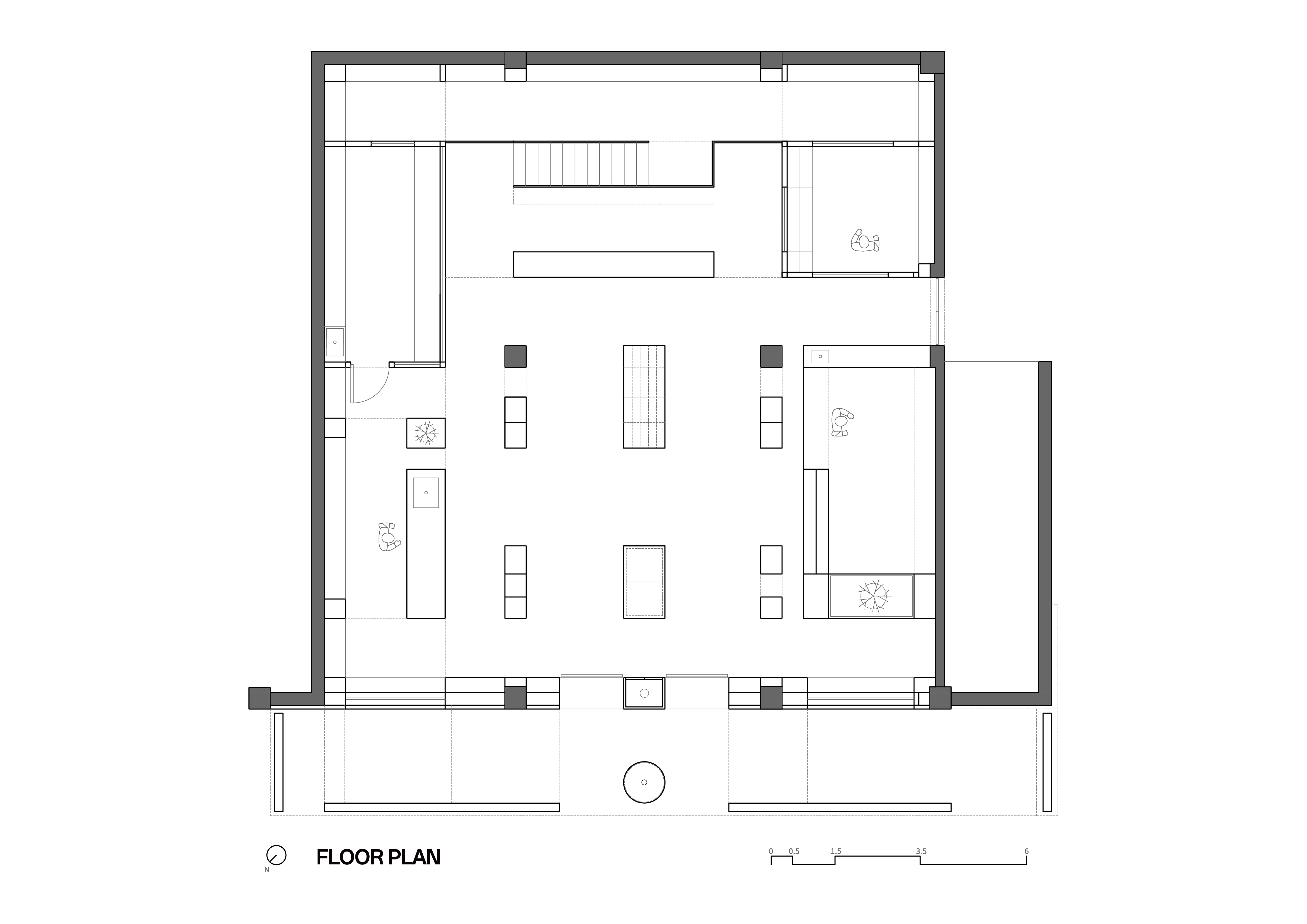
    参赛作品: Radahlia 花艺空间
    空间类型:商业
    个人/公司简介:
    思考事物的本质逻辑,观察当下环境的片段,在有限的场地中寻找合适的关系,将每个项目,当做一场实验进行,达到一种平衡的状态。
    设计说明 | Design Instruction
  • 有限的空间中存在无限的自然,无限的自然里寻找最终的意识形态。考花艺内在的构成关系,一种关于自然与时间的有限艺术表达。如何在有限的空间中寻找无限的自然源力,也许结果存在于场地的本身逻辑。将新的体块 关系,植入建筑本体的肌理之中,在循环往复中若隐若现。寻找一些关于自然记忆的多重片段,重构与再造,此刻自然在多重的空间关系中生生不息。 叠加重复的空间关系,我们尝试通过最基础的人体第一视觉,作为一切的原点。装置艺术作为空间中主要的基本单元,形成一种无限自由的体块连接关系。我们将每一个装置作为一个微观世界中的自然变量,将自然界中的各种表现形态植入其中。游走在其中的人们,随机触发装置的自由组合方式,形成一种微观自然的叠加效应,可能于真实的环境一般,缓慢形成一种新的构成语言。 白日之下,存在一片黑色森林之外的阴影缓慢延续。保留场地本身的下沉区域,进行材质与表达的转换。柔和阳光的背后,留下最后一片沉默的背影。可能是一种冷静的意识流动,短暂地离开现实,热烈的人们在此刻放下城市的紧张与冲突,在此地聚集。虚化的五感体验,产生一种,人,花艺,空间,多重混合的平衡关系。无限向有限折叠,有限向无限消融,最终的意识形态,可能无法永久地呈现。我们行走在短暂的时间记忆之中,编排一场无需停止的戏剧。此刻,我们终将在白日的高山之上,找寻到意识之外的无限自然。
  • 图片
  • 图片
  • 图片
  • 图片
  • 图片
  • 图片
  • 图片
  • 图片
  • 图片
  • 图片
  • 图片
  • 图片
  • 图片
  • 图片
  • 图片
  • 图片
  • 图片
  • 图片
  • 图片
  • 图片
  • 图片
  • 图片
  • 图片
  • 图片
  • 图片
  • 图片
  • 图片
  • 上一个 下一个
    2025第九届金腾奖 私宅空间 | 旅居空间 | 城市功能空间 | 人气设计师 | NEW100 jintengAWARD(小金_金腾奖组委会) 广州市海珠区琶洲大道68号华新中心21楼
    金腾奖视频号 金腾奖小红书号 监制:余佳灵
    统筹:张俊媚
    运营:赖钰炼 曹凯月 刘芳棋 小金
    新媒体:王贝贝 严洁 张文一
    技术:丁德昌
    最终解释权归金腾奖主办方所有