Return to habitat, please oneself, symbiosis
作品详情
  • Details of the work 标题横线
    头像或者logo
    图片 王玥 华耐设计基金特约推荐
    城市:东
    公司: 青岛一趣建筑设计
    参赛作品: 归栖·悦己·共生
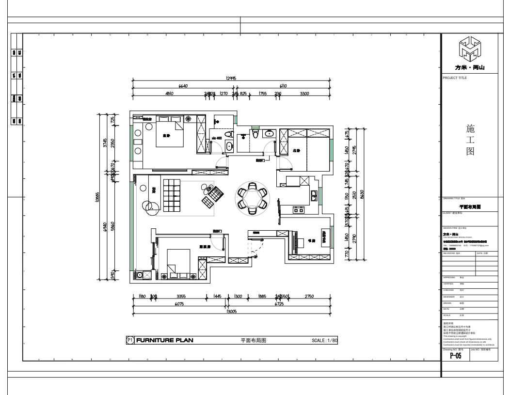
    空间类型:公寓(150㎡以下)
    个人/公司简介:
    從業時間:16年 設計理念:用平靜的心靈看世界,用有限空間,做無限設計,成就夢想之家。 個人榮譽: 中國國際建築裝飾室內設計協會認證一一高級 建築裝飾工程設計師APDC認證亞太設計中心高級認證設計師 ICCED中國國際精英設計俱樂部會員 國家認證中級茶藝師 國家認證中級評茶員 24年中国设计头条“年度优秀设计项目” 23年荣获4040省年度榜“设计杰出青年” 22年荣获HDA“她设计奖”优秀软装作品 19年榮獲仕米-亞太國際(高級)設計師 17年榮獲國際空間設計大獎金創意獎——十大資深設計師獎 榮獲2016-2017年度第十二屆中國國際建築裝飾最具原創設計師一別墅 豪宅空間類 作品分佈: 百福山莊;匯豪官邸;德郡;香山美墅;驪山國際;曉港名城;赫府;檀府;萬科玫瑰裏;青特小鎮;赫山;青特城,書香嘉園;中和大廈;青島二十六中;青島第二療養院;濰坊紅星家園;濰坊左岸綠洲等
    设计说明 | Design Instruction
  • 归栖: 强调家是卸下疲惫、回归本真的安全港湾,是心灵得以休憩的庇护所。 悦己: 家应首先服务于居住者的内心需求,是展现个性、滋养爱好、享受独处时光的私密乐园。 共生: 突破传统空间隔阂,创造促进家庭成员(尤其亲子间)自然互动、共同成长、情感流动的共享环境。 设计说明:打造一个情感流动的治愈系亲子互动宅 在极简风格盛行的当下,克制、冷静是在空间里体现氛围的常态,我认为作为私宅,作为“家”。我不禁思考:这个概念真的对么?本设计旨在摒弃样板间的浮华套路与极简主义的疏离感,回归家的本质——我们聚焦于打造一个能同时满足“深度悦己”与“亲密共生”需求的空间,尤其关注为孩子营造充满探索乐趣与阅读氛围的成长环境。所以在作品中可以见到很多温馨的家庭互动画面,我认为这才是真正的一个富有温度的,又烟火气的“家”。 核心设计理念: 1. 情感优先,氛围营造。 2. 材质触感:运用温润自然的胡桃木和黑橡木材质,营造能“触摸”到的温暖。 色彩情绪:以米白色系为基调,点缀低饱和度、又加入了富有生命力的红色和低饱和度的蓝色,营造活泼、放松、包容的氛围。 光影魔法: 摒弃单一主灯,采用多层次、可调光的点光源:落地灯与氛围光带,光线柔和、温暖且富有变化,适应不同心境与场景需求(阅读、休憩、游戏、独处)。 3. 打破桎梏,重构互动: 客厅革命:彻底抛弃“沙发+电视墙”的固化模式。 围合形的沙发摆放方式,把核心区域规划为 “家庭核心岛” ,沙发区成为亲子阅读、手工、游戏、甚至家长陪伴孩子工作的中心。书架触手可及,鼓励随手阅读。坐具灵活移动,方便围坐交流或分散活动。 视听方式也采用隐藏式投影幕布或可移动画框电视,需要时呈现,不需要时隐藏,让空间回归交流本身。 4. 打造沉浸式亲子成长空间: 阅读角无处不在,不仅在核心岛有大量书籍触手可及,在阳台、卧室飘窗、书房都设置舒适的阅读角落,让阅读成为生活中自然流淌的部分。 5.悦己独处,疗愈身心: 主卧的飘窗是为自己打造的专属心灵角落,闲暇可以在窗边一边欣赏落日余晖,一边品茗,好不惬意。 这个家,不是一个被风格定义的“样板”,而是一个由情感、互动和个性化生活痕迹共同编织的有机生命体。它拒绝形式主义的冰冷,拥抱触手可及的温暖;它打破空间功能的壁垒,鼓励家人间无拘无束的连接;它精心营造阅读与游戏的氛围,让成长充满乐趣;它也为每个灵魂预留了得以喘息和绽放的“悦己”角落。在这里,卸下疲惫,回归本真,与最爱的人共同书写生活的故事,便是设计的终极追求。
  • 图片
  • 图片
  • 图片
  • 图片
  • 图片
  • 图片
  • 图片
  • 图片
  • 图片
  • 图片
  • 图片
  • 图片
  • 图片
  • 图片
  • 图片
  • 图片
  • 图片
  • 图片
  • 上一个 下一个
    2025第九届金腾奖 私宅空间 | 旅居空间 | 城市功能空间 | 人气设计师 | NEW100 jintengAWARD(小金_金腾奖组委会) 广州市海珠区琶洲大道68号华新中心21楼
    金腾奖视频号 金腾奖小红书号 监制:余佳灵
    统筹:张俊媚
    运营:赖钰炼 曹凯月 刘芳棋 小金
    新媒体:王贝贝 严洁 张文一
    技术:丁德昌
    最终解释权归金腾奖主办方所有