"Villa language"
作品详情
  • Details of the work 标题横线
    头像或者logo
    图片 苏海强 华耐设计基金特约推荐
    城市:天津市
    公司: 天津大屿小筑建筑装饰
    参赛作品: “墅语”
    空间类型:别墅
    个人/公司简介:
    39岁,绘画十年,设计院出来后一直从事建筑,庭院,会所,商业,别墅,宅居的设计和驻地深化工作。 设计工作跟绘画一样,已经变成生活的一部分,不再是一个差事,而是热爱和责任,是一份有温度的事情。 个人标语:“做匠人,修匠心;以技养身,以身正技。” 擅长:别墅设计,别墅改建,庭院景观,酒店设计,商业深化,老房改造,婚房改造; 坐标:天津滨海; 所获奖项: 中国建筑装饰协会高级室内设计 中国建筑景观工程高级设计师 中国陈列艺术工程高级设计师 华鼎奖中国室内设计杰出青年设计师 中国建筑装饰行业最具工匠精神设计师 中国志愿者协会优秀志愿者标兵 网易城市设计榜城市设计师 2008-2010 天津建筑园林设计院设计师 2011-2014 天津商业会所驻地深化设计师 2015-2017 天津好工长别墅设计师 2018-2023 天津红星美凯龙家装设计总监 2024-今 GLAMEHEYA设计商标品牌开创者
    设计说明 | Design Instruction
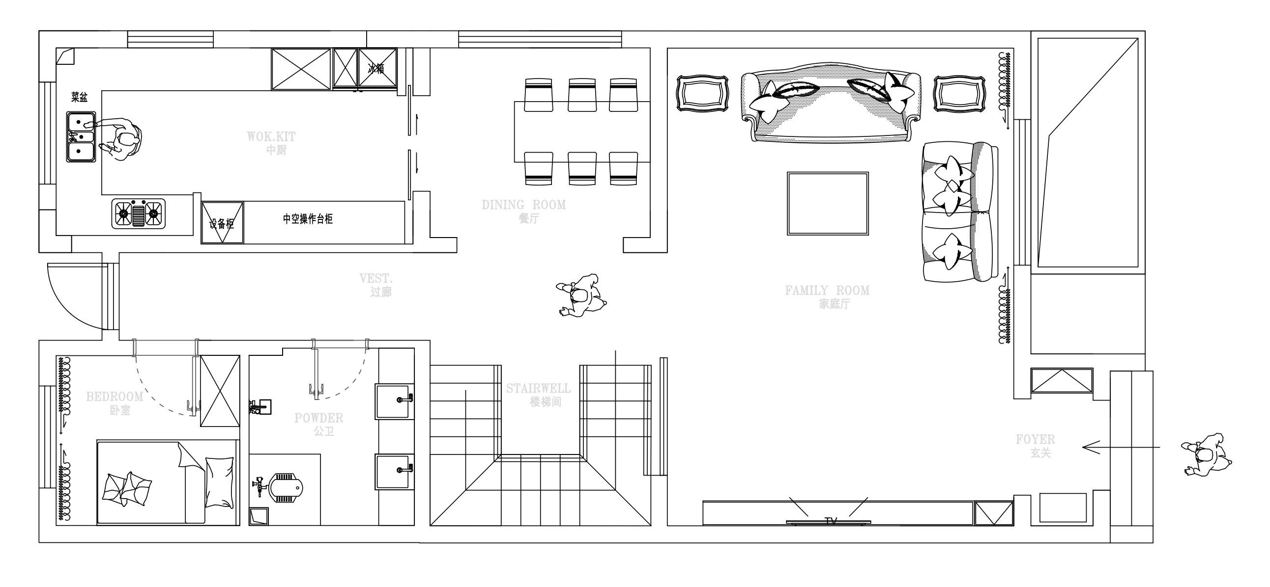
  • 本案是年轻夫妇的委托,希望做一个适合居家的法式风格,于是我们以绿色为主线,浅色为基调,pu线条为媒介做了本案,希望可以以一抹绿色给家带来一个温馨舒适的视觉盛宴,希望在功能生活中处处充满生机勃勃气象。 当空间的场域被打开,视觉的感官体验无疑是最直接的,居室独特气质,在进门的一刻就被拉开了序幕,一个开合的空间形态,动线被重新规划,居室的舒适感体验被毫无保留的阐释出来。有发散,有蔓延,有起伏,平面布局自由不克制,才能发挥本该有的清丽模样,追求完美的生活态度,用设计品味生活的概念,贯彻设计为人服务的理念,感知空间的姿态呈现出来自由的组合变化,是设计师抛开墙体结构固定限制的游刃有余。
  • 图片
  • 图片
  • 图片
  • 图片
  • 图片
  • 图片
  • 图片
  • 图片
  • 图片
  • 图片
  • 图片
  • 图片
  • 图片
  • 图片
  • 图片
  • 图片
  • 图片
  • 图片
  • 图片
  • 图片
  • 图片
  • 图片
  • 图片
  • 图片
  • 图片
  • 图片
  • 图片
  • 图片
  • 图片
  • 图片
  • 图片
  • 图片
  • 图片
  • 图片
  • 图片
  • 图片
  • 图片
  • 图片
  • 图片
  • 图片
  • 图片
  • 图片
  • 图片
  • 图片
  • 图片
  • 图片
  • 图片
  • 图片
  • 图片
  • 上一个 下一个
    2025第九届金腾奖 私宅空间 | 旅居空间 | 城市功能空间 | 人气设计师 | NEW100 jintengAWARD(小金_金腾奖组委会) 广州市海珠区琶洲大道68号华新中心21楼
    金腾奖视频号 金腾奖小红书号 监制:余佳灵
    统筹:张俊媚
    运营:赖钰炼 曹凯月 刘芳棋 小金
    新媒体:王贝贝 严洁 张文一
    技术:丁德昌
    最终解释权归金腾奖主办方所有