Happiness Community Duplex
作品详情
  • Details of the work 标题横线
    头像或者logo
    图片 上海筑百福空间设计有限公司 华耐设计基金特约推荐
    城市:潍坊市
    公司:上海筑百福空间设计有限公司
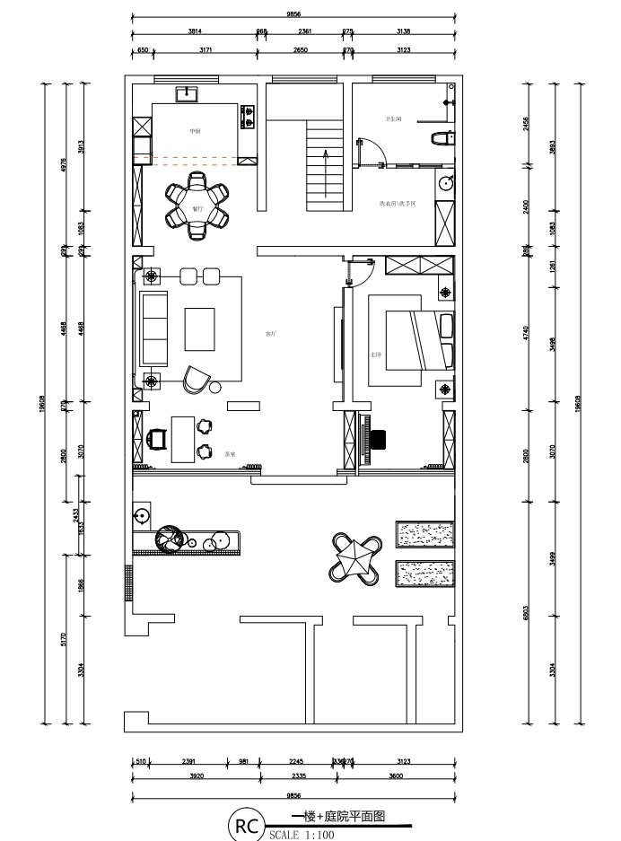
    参赛作品: 幸福小区复式
    空间类型:别墅
    个人/公司简介:
    公司深耕全案设计+落地19年,专注为高端别墅、大宅空间、商业空间、提供全案设计与施工服务。累计服务客户超1000+,项目覆盖全国20+城市。为您打造从建筑环境到室内空间设计的全程化、一体化和专业化的解决方案。注重设计与落地品质。 目前拥有上海筑百福空间设计和潍坊艺彩空间装饰两家公司,多次斩获“国际绿奖金奖”“金堂奖” “华鼎奖”“龙承奖”“天星奖”等国内外设计大奖。
    设计说明 | Design Instruction
  • 此设计项目位于山东省潍坊市,地处繁华地带,藏于闹市,优雅于生活。 作为现代与传统交融的产物,不仅承载着深厚的文化底蕴,更在当代空间中焕发出新的生命力。它以简洁、大气的线条,融合了中式古典元素与现代简约风格,创造出一种既具东方韵味又不失时尚感的独特空间氛围。 实木、竹子、石材等天然材料被广泛运用,这些材料不仅环保,更赋予空间一种自然、质朴的美感。 家具设计上,摒弃了传统中式家具的繁复雕花,转而采用简洁的造型和流畅的线条,既保留了中式家具的神韵,又符合现代人的审美需求。 设计多采用黑、白、灰等中性色调,辅以红木、深棕等暖色系,营造出一种宁静、雅致的空间氛围。同时,通过巧妙的灯光设计,使整个空间层次分明,光影交错,增添了几分神秘与浪漫。 开放式的设计理念,使各个功能区既独立又相互联系,既保证了私密性,又不失整体的和谐统一。此外,设计还善于运用屏风、隔断等元素,巧妙地划分空间,增加空间的层次感与趣味性。
  • 图片
  • 图片
  • 图片
  • 图片
  • 图片
  • 图片
  • 图片
  • 图片
  • 图片
  • 图片
  • 图片
  • 图片
  • 上一个 下一个
    2025第九届金腾奖 私宅空间 | 旅居空间 | 城市功能空间 | 人气设计师 | NEW100 jintengAWARD(小金_金腾奖组委会) 广州市海珠区琶洲大道68号华新中心21楼
    金腾奖视频号 金腾奖小红书号 监制:余佳灵
    统筹:张俊媚
    运营:赖钰炼 曹凯月 刘芳棋 小金
    新媒体:王贝贝 严洁 张文一
    技术:丁德昌
    最终解释权归金腾奖主办方所有