KOMOReBI
作品详情
  • Details of the work 标题横线
    头像或者logo
    图片 丽丽舍&几又形态设计事务所 华耐设计基金特约推荐
    城市:南京市
    公司:丽丽舍&几又形态设计事务所
    参赛作品: 珂沐锐比
    空间类型:商业
    个人/公司简介:
    「 事务所简介 」 事务所是一个以创意设计为核心力的设计团队,秉持传统文化内涵,结合当下透过以人为本的思考,运用特有的方式方法赋予空间新的生命力, 为业主提供涵盖私宅|商业空间|办公空间|软装陈设等业态的全方位设计规划及全案落地服务。 「 设计理念 」 事务所力图创造令人感到温暖又亲切的、精致且优雅的时尚空间。 The firm tries to create a warm and intimate, exquisite and elegant fashion space. 希望用多元、新锐、无限的视角,审视当下与未来,思考空间的想象; I hope to examine the present and the future and think about the imagination of space from a pluralistic, cutting-edge and infinite perspective; 期待用细腻、温度、年轻力、时尚基因和自然人文的语境,将设计价值传导至生活。 It is expected that the design value will be transmitted to life with the context of exquisiteness, temperature, youth, fashion genes and natural humanities. 「 荣获奖项 」 - 2024年作品《拙》入围中国室内设计年鉴 - 2024年获年度IDD设计100榜设计师 - 2024年获老宅新生优秀商业空间设计 - 2024年荣登设计机构JTA先锋设计NEW100 - 2024年获陈设中国·晶麒麟奖优秀奖 - 2024年ADMD安德马丁发现100年度设计师 - 2024年作品《拙》获金腾奖年度办公空间设计大奖 - 2024年获第四届Design Focus国际空间设计大奖 - 2024年作品《拙》获艾鼎国际设计奖办公空间金奖 - 2024年作品《拙》获日本IDPA AWARD国际先锋设计金奖 - 2024年获亚洲青年设计之光TOP100 - 2024年作品《月出》获TINTA金邸奖居住空间提名奖 - 2024年作品《拙》获TINTA金邸奖办公空间提名奖 - 2024年入选最佳室内设计师ID星级设计榜 - 2024年作品《白露》入围中国室内设计年鉴 - 2024年获长三角室内设计·联盟奖商业空间金奖 - 2024年获长三角室内设计·联盟奖别墅空间金奖 - 2024年获理想家ASKO非凡设计大奖一等奖 - 2023年金住奖-中国(南京)十大居住空间设计师 - 2023年作品《白露》获中国室内设计CIID铜奖 - 2023年作品《白露》获金外滩奖最佳居住空间奖 - 2023年获住小帮设计师大赛年度最佳中户型设计师 - 2023年作品《月出》获芒果奖中国住宅创意奖 - 2023年获老宅新生(南京)十大改造设计师 - 2023年作品《月出》获中国室内设计CIID优秀奖 - 2023年获40 UNDER 40(南京)当代设计杰出青年 - 2023年作品《风荷园售楼处》获美国缪斯设计金奖 - 2023年作品《苏州会所》获伦敦设计金奖 - 2023年入选城市(南京)精英设计师
    设计说明 | Design Instruction
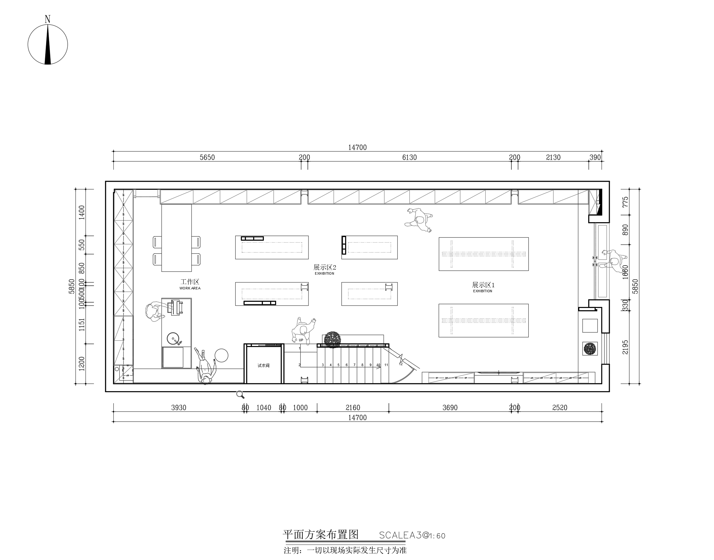
  • 当多数国外买手店还在追求 “高冷的时尚距离感” 时,业主却想打造一处特别的空间 —— 它既要装下从海外精心挑选的独创产品,也要有南京老巷的温润气息,更要像 “自家客厅” 般让人放松。于是,我们以 “现代简约为骨,生活气息为魂”,为她勾勒出这家 “不像买手店的买手店”,让时尚与日常在此温柔相遇。 路过买手店的人,常会被入口的氛围打动 —— 没有夸张的橱窗陈列,也没有炫彩的灯光,取而代之的是一方白色体块展台,台面上并置着几只珂沐锐比最具有特色的手工陶瓷猫咪餐盘,有的展台随意搭着一条丝质方巾,旁边立着香薰蜡烛,暖光摇曳间,瞬间消解了商业空间的疏离感。走进主陈列区,没有密集的货架,也没有刻意的风格分区,更像在逛一个 “时尚版的家”:墙面嵌入着简洁又不显单调的镜面,既巧妙拓宽了空间视野,又让路过的人能不经意间窥见服饰与自身的呼应;可调节的层板与挂杆让陈列变得灵活,层板上除了叠放的衣物,还穿插摆放着一本杂志或一支迷你蜡烛,让陈列多了几分生活的随性。旋转楼梯增添空间动态感,打破单一功能边界,构建生活美学集成场景,传递“生活即艺术”理念。 自然光透过窗引入,与烛光、室内灯光交织,白天借窗外绿意柔化空间,夜晚以烛光暖黄营造私密温馨,光影随时间、场景变换,赋予空间灵动韵律,强化情感共鸣。 珂沐锐比的简约,从不是 “空无一物”,而是 “每一处有用且有温度”。色彩上,黑、白、灰构成了空间的底色,白色的墙面与浅灰色的地面让视觉更柔和,而体块的利落线条、镜面的通透质感、盘子的细腻肌理与蜡烛的暖光氛围,又为这份简约增添了层次丰富的生活细节。 珂沐锐比的设计,没有惊艳的造型,也没有昂贵的材料,却用无数个生活化的细节,让时尚变得亲切。在这里,你可以像在自家一样试穿衣服,随手将换下的配饰放在试衣间里,可以像和朋友一样坐在沙发区聊天,看蜡烛的光影在镜面里轻轻晃动,感受生活与艺术的交融,激发对美好生活的重新审视,实现空间“承载器物,传递生活美学”的价值,打造一个可看、可触、可感的沉浸式美学环境。
  • 图片
  • 图片
  • 图片
  • 图片
  • 图片
  • 图片
  • 图片
  • 图片
  • 图片
  • 图片
  • 图片
  • 图片
  • 图片
  • 图片
  • 图片
  • 图片
  • 图片
  • 图片
  • 图片
  • 图片
  • 图片
  • 图片
  • 图片
  • 图片
  • 图片
  • 图片
  • 图片
  • 图片
  • 图片
  • 图片
  • 图片
  • 上一个 下一个
    2025第九届金腾奖 私宅空间 | 旅居空间 | 城市功能空间 | 人气设计师 | NEW100 jintengAWARD(小金_金腾奖组委会) 广州市海珠区琶洲大道68号华新中心21楼
    金腾奖视频号 金腾奖小红书号 监制:余佳灵
    统筹:张俊媚
    运营:赖钰炼 曹凯月 刘芳棋 小金
    新媒体:王贝贝 严洁 张文一
    技术:丁德昌
    最终解释权归金腾奖主办方所有