Slow Life
作品详情
  • Details of the work 标题横线
    头像或者logo
    图片 官明星 华耐设计基金特约推荐
    城市:潍坊市
    公司: 山东企川设计装饰工程有限公司
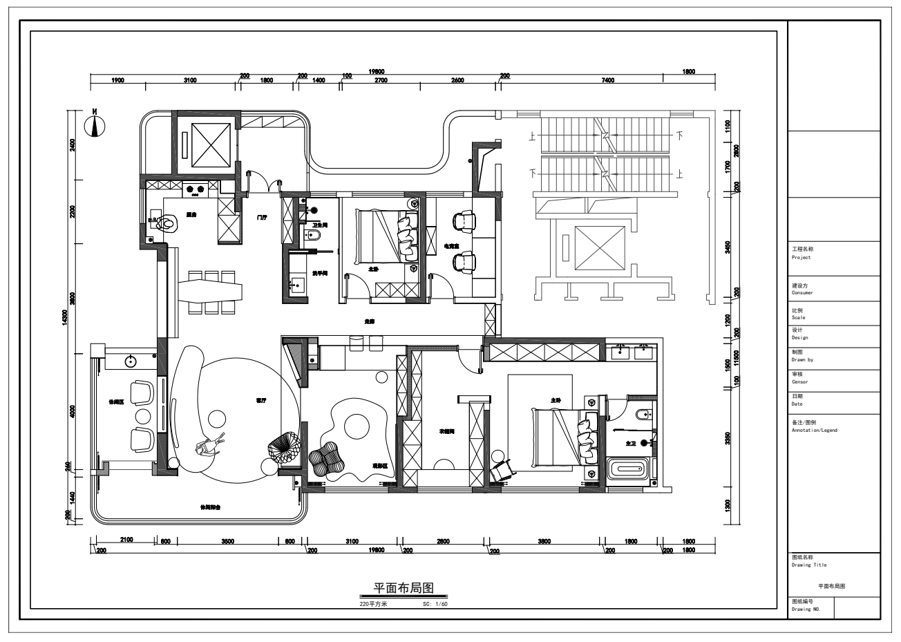
    参赛作品: 慢·生活
    空间类型:平层(150㎡以上)
    个人/公司简介:
    从业经历:企川设计创始合伙人 清华大学美术学院高级研修设计师 CIID中国建筑协会高级室内建筑师 中国建筑协会高级陈设设计师 中国建筑协会注册设计师 MIIT中国工信部注册高级设计师 从事设计行业13年,有着数百套全案落地的服务经历。感受有温度的生活,创造高级感的应用场景和空间情绪价值。与空间共鸣,与业主同频。 获奖经历: 2017中国设计力量一城十杰 2018齐鲁岱宗奖最佳公共空间金凤住宅设计大奖银奖 2021国际环艺创新设计金奖
    设计说明 | Design Instruction
  • 业主渴望在快节奏工作后,归家便能卸下疲惫,于小酌、观影中享受两人世界的随性自在,且偏爱黑色的高级质感。设计以此为核心,以 “慢生活” 为内核、“暗黑系” 为基调,通过材质与空间的重构,打造一处兼具功能与心灵滋养的场域,让归家成为从喧嚣到静谧的温柔过渡。 整体以黑白对比勾勒高级感,暗系基调避免压抑,更显精致格调。亮点在于用宝格丽黑石材包裹承重墙,打造异型电视墙,化承重为视觉焦点;悬浮吧台与观影区无缝融合,满足生活场景需求;开口式布局弱化区域分界,让空间兼具通透感与呼吸感,契合松弛的慢生活氛围。​ 针对异型吧台的稳固性,采用钢架结构隐形承托,兼顾悬浮质感与安全;面对开放空间中电视与承重墙的协调问题,将两者一体化设计,以宝格丽黑石材包裹承重墙并嵌入电视,既保障结构安全,又避免视觉突兀,实现功能与美学的统一。​ 主要选用岩板、木作,搭配嵌入式与氛围灯光,精准勾勒空间轮廓并营造静谧氛围。 这处空间不仅是黑白美学的呈现,更是慢生活的具象表达。在暗黑高级感的包裹下,两人世界的随性温馨自然流淌,让归家成为一场 “慢下来” 的美好仪式。
  • 图片
  • 图片
  • 图片
  • 图片
  • 图片
  • 图片
  • 图片
  • 图片
  • 图片
  • 图片
  • 图片
  • 图片
  • 图片
  • 图片
  • 图片
  • 图片
  • 图片
  • 图片
  • 图片
  • 上一个 下一个
    2025第九届金腾奖 私宅空间 | 旅居空间 | 城市功能空间 | 人气设计师 | NEW100 jintengAWARD(小金_金腾奖组委会) 广州市海珠区琶洲大道68号华新中心21楼
    金腾奖视频号 金腾奖小红书号 监制:余佳灵
    统筹:张俊媚
    运营:赖钰炼 曹凯月 刘芳棋 小金
    新媒体:王贝贝 严洁 张文一
    技术:丁德昌
    最终解释权归金腾奖主办方所有