Huaxia Four Seasons
作品详情
  • Details of the work 标题横线
    头像或者logo
    图片 王顺涛 华耐设计基金特约推荐
    城市:南京市
    公司: 昆明紫苹果装饰有限公司
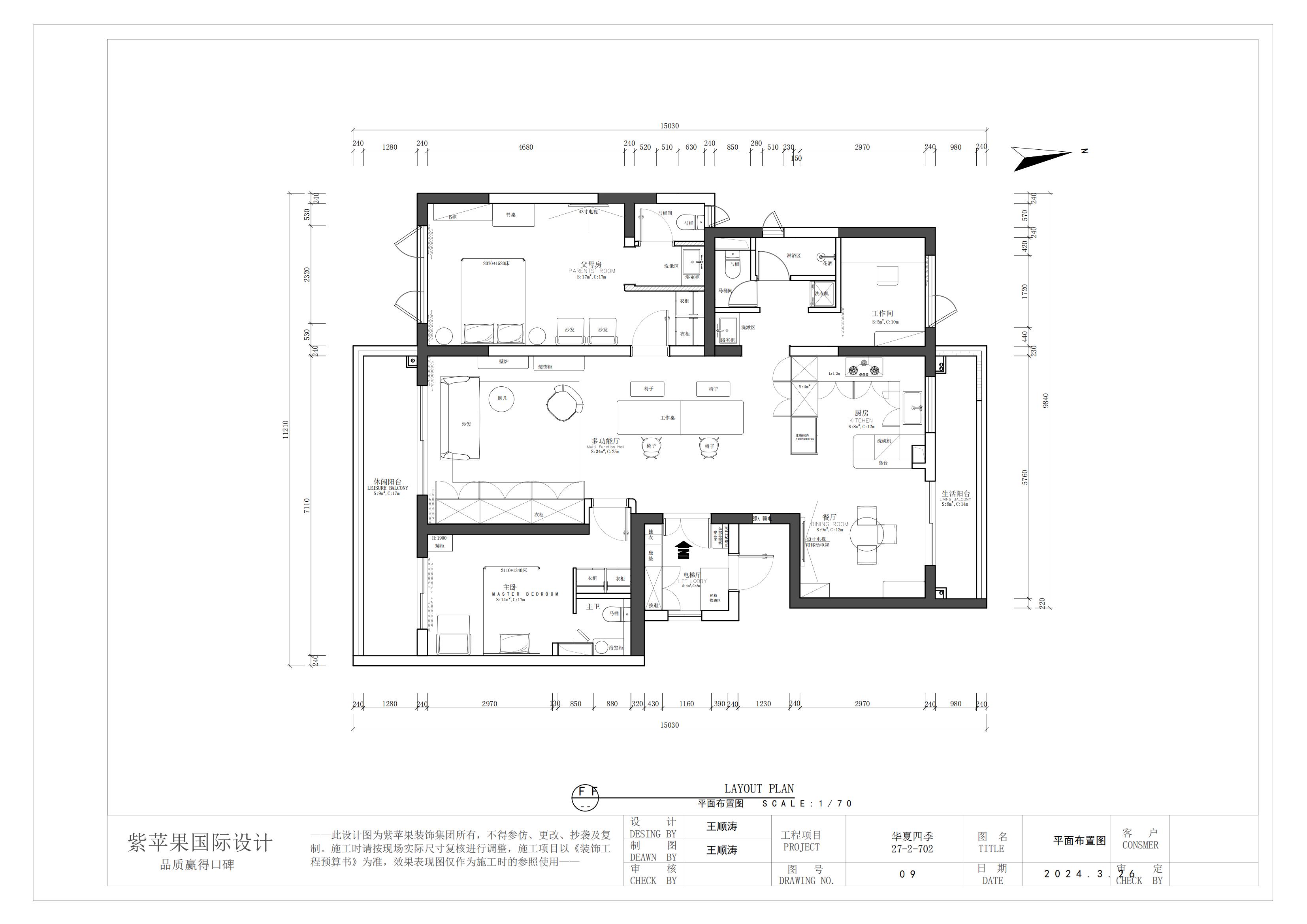
    参赛作品: 华夏四季
    空间类型:平层(150㎡以上)
    个人/公司简介:
    设计理念:设计不是一个职业,而是一种生活! 个人荣誉:注册室内高级设计师。云南省室内设计行业协会2018-2024年度十佳设计师。 代表作品:华夏四季,诺德山海春风,宝能玖玺,公园1903,熙龙湾,九夏云水等。 擅长风格:现代,轻奢,简欧,法式,中式,中古,极简……不局限于任何风格,可按需定制。
    设计说明 | Design Instruction
  • 华夏四季属于昆明高端住宅区,500里滇池区域最近的小区,环境优美,开发商打造的户型四叶草户型,双阳台,卧室分布在四个角落,四个卧室,三卫,双厅一厨的户型结构,小区阳台不能封闭,两个阳台成为了家里欣赏滇池美景的观景台,呼吸新鲜空气的最佳露台。 本案设计改动比较大,业主是一位中年女主,带着八十多岁的父母居住,母亲轮椅,行动不方便,所以在本案设计中卫生间区域考虑了比较独立的方便的使用空间,保留了两卧,厨房与隔壁卧室合并做了开放式厨房加独立餐厅。客厅是去客厅化设计,打破传统的布局,家具根据女主人一家的生活习惯来摆放组合,做了壁炉衬托整个空间的设计感,次卫做了三分离,独立马桶间,独立淋浴间,独立洗漱区。充分考虑了适老化设计,书房做了个女主人的工作间。平时工作有独立空间可以去利用。 整体空间打造是以人为本,居住使用为本的原则,符合业主生活方式的状态下,不失美感,不失空间的实用性。
  • 图片
  • 图片
  • 图片
  • 图片
  • 图片
  • 图片
  • 图片
  • 图片
  • 图片
  • 图片
  • 图片
  • 图片
  • 图片
  • 图片
  • 图片
  • 图片
  • 图片
  • 图片
  • 图片
  • 图片
  • 图片
  • 图片
  • 图片
  • 图片
  • 图片
  • 图片
  • 图片
  • 图片
  • 图片
  • 图片
  • 图片
  • 图片
  • 图片
  • 图片
  • 图片
  • 图片
  • 图片
  • 图片
  • 图片
  • 图片
  • 图片
  • 上一个 下一个
    2025第九届金腾奖 私宅空间 | 旅居空间 | 城市功能空间 | 人气设计师 | NEW100 jintengAWARD(小金_金腾奖组委会) 广州市海珠区琶洲大道68号华新中心21楼
    金腾奖视频号 金腾奖小红书号 监制:余佳灵
    统筹:张俊媚
    运营:赖钰炼 曹凯月 刘芳棋 小金
    新媒体:王贝贝 严洁 张文一
    技术:丁德昌
    最终解释权归金腾奖主办方所有