​One Heart Tea Lounge
作品详情
  • Details of the work 标题横线
    头像或者logo
    图片 陈宪超
    城市:四川省
    公司: 宅南空间设计事务所
    参赛作品: 同心茶室
    空间类型:餐饮
    个人/公司简介:
    毕业院校及专业 四川传媒学院环艺专业 工作单位及职务 四川宅南建筑装饰设计有限公司设计总监负责人 思茴餐饮集团联合创始人 主要社会职务 内江CIID室内装饰协会副秘书长 获奖情况、科研情况 获得荣誉: 宅南入选印际“进化” YIN2023甄选了全球众多设计事务所的作品,共入围来自36个国家的266个设计事务所,入围“进化”主题的共有80个,来自19个国家,其中中国的有23个。 JAPAN IDPA DESIGN AWARD 2023 日本国隙最具影响力设计100TOP AWARDS CEREMONY宅南 宅南荣膺-2023日本IDPA AWARD 国际先锋设计大奖  JAPAN INTERNATIONAL DESIGNPIONEER AWARD INMAN SPACE DESIGN STUDIO 2023 FDC AWARD 法国设计汇杂志 #宅南空间设计事务所 年度国际影响力封面人物大奖 宅南荣获可持续发展设计奖SUSTAINABLE DESIGN AWARD 2023年度优胜奖2023 WINNING AWARD 宅南-荣获23年GRP中意(中国意大利)金指奖瑰金奖 宅南荣获23年十间房全国总决赛十强 金堂奖全国十佳 宅南荣获2023IDD中国设计100 陈宪超全球青年华人设计师TOP100
    设计说明 | Design Instruction
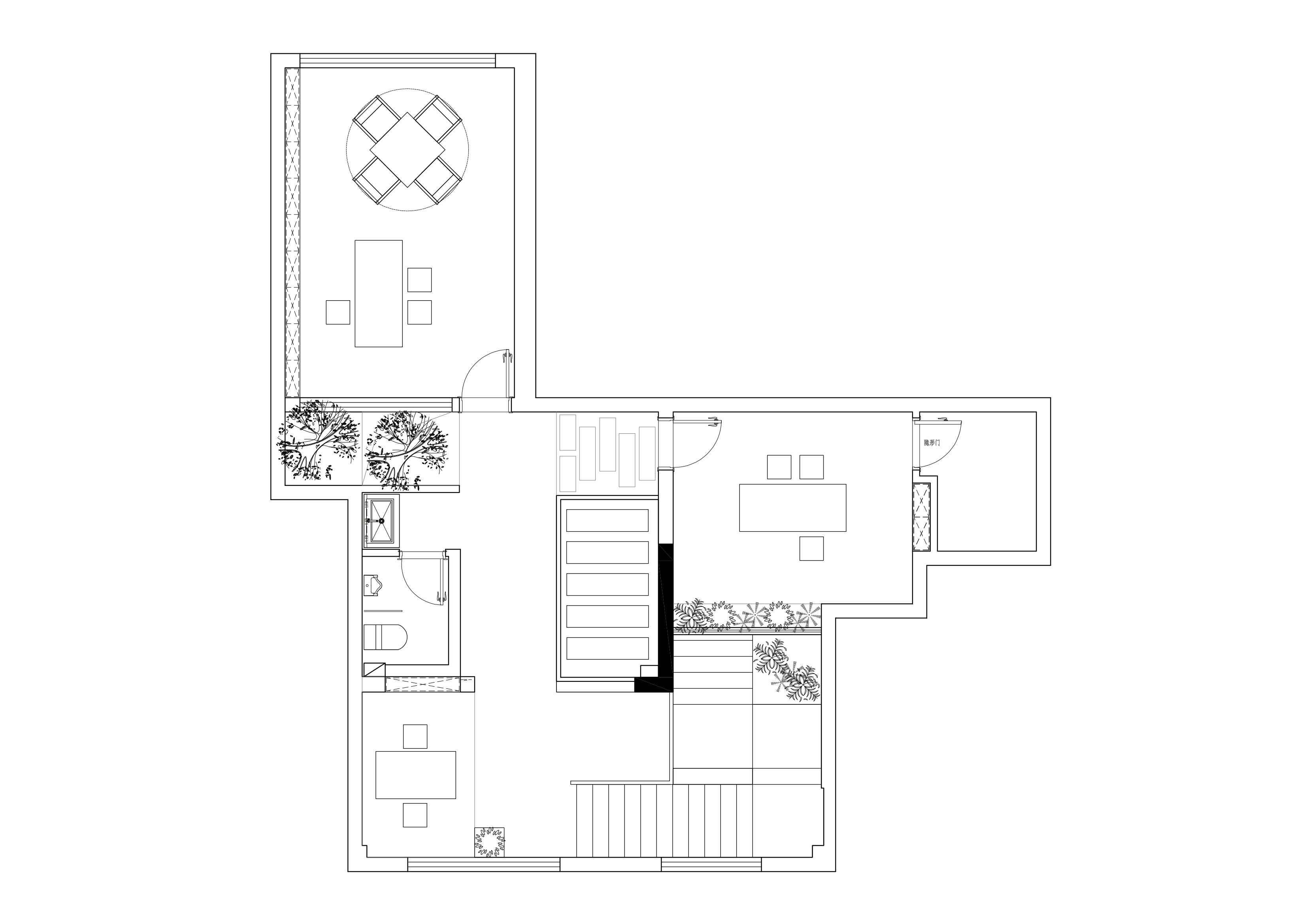
  • 在入门后的第一个空间便是柜台,每一处细节都彰显着中式美学。靠近室外的墙上凿开了一扇圆洞窗,似露似隐,有种“犹抱琵琶半遮面”朦胧美感都让人感受到浓厚的文化底蕴。廊是链接不同空间的枢纽,如同时间中的虫洞。大面积的黑色碳化木的使用,为空间提炼出沉稳大气的氛围。而一旁的屏风则为封闭的空间透出一丝光影为一进入空间的人,便能被环境的静谧力量所治愈。在繁忙的尘世与悠闲的时光之间,寻求一种完美的平衡。因此围炉煮茶的茶室,不仅仅是一个喝茶的地方,更是一个商务洽谈与心灵放松的绝佳场所。融合了中式古典与现代简约的元素。茶室墙面采用木质置物架,营造出一种温馨自然的氛围;同时,天井式吊顶与雪见窗则采用中式传统设计,尽显东方韵味。结合中式含蓄之美在空间结构中展望,通过秩序性的写意线条有序规划分区,回庭游廊的动线使每个空间隔而不断,自然连接,即保证一定的私密性、审美性和功能性在东方文化之间自由流淌。石材质朴的肌理与植物的优雅姿态,在小尺度围合空间相得益彰,即使是粗犷的墙面在空间中也不会显得突兀,呈现了一个极具时代气质的山林空间体验。以黑色碳化木为主要材料打造的方形多宝阁立柜,通过家具陈设拉开距离,形成深沉高级的空间效果。可移动隔断帘在这个空间具有更多的变化性。
  • 图片
  • 图片
  • 图片
  • 图片
  • 图片
  • 图片
  • 图片
  • 图片
  • 图片
  • 图片
  • 图片
  • 图片
  • 图片
  • 图片
  • 图片
  • 图片
  • 图片
  • 图片
  • 图片
  • 图片
  • 图片
  • 图片
  • 图片
  • 图片
  • 图片
  • 图片
  • 图片
  • 图片
  • 图片
  • 图片
  • 图片
  • 图片
  • 图片
  • 图片
  • 图片
  • 上一个 下一个
    2025第九届金腾奖 私宅空间 | 旅居空间 | 城市功能空间 | 人气设计师 | NEW100 jintengAWARD(小金_金腾奖组委会) 广州市海珠区琶洲大道68号华新中心21楼
    金腾奖视频号 金腾奖小红书号 监制:余佳灵
    统筹:张俊媚
    运营:赖钰炼 曹凯月 刘芳棋 小金
    新媒体:王贝贝 严洁 张文一
    技术:丁德昌
    最终解释权归金腾奖主办方所有