A vintage blend of Wong Kar-wai's classic Hong Kong style
作品详情
  • Details of the work 标题横线
    头像或者logo
    图片 王兵
    城市:上海市
    公司: 上海臻溪空间设计事务所
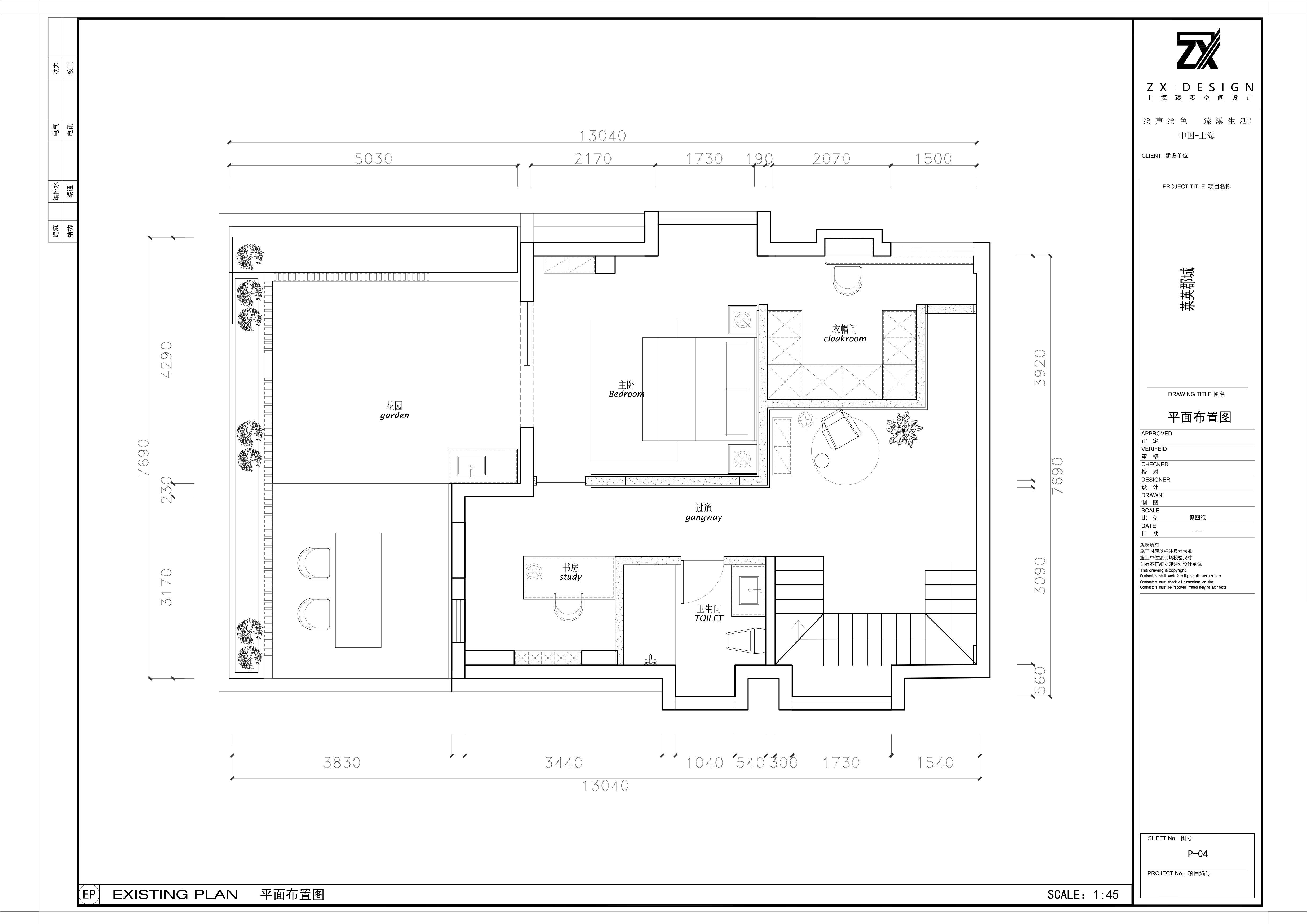
    参赛作品: 嘉定艺术上叠|中古混搭王家卫经典港风
    空间类型:别墅
    个人/公司简介:
    上海臻溪空间设计事务所主理人~王兵先生专注于室内设计领域学习和研究十余年,擅长打造极简、包豪斯、中古以及法式空间美学。2019年,创立了上海臻溪空间设计事务所,本所致力于-私宅空间、别墅大宅、精装软装、商业办公空间、民宿建筑设计等。主力打造全案服务模式,从设计创意、工程技术管理到软装落地,满足客户对设计的全部需求。公司理念—“打破千篇一律的无趣设计,呈现出最美好的生活环境。
    设计说明 | Design Instruction
  • 嘉定艺术上叠|中古混搭王家卫经典港风 在当代家居设计语境中,风格的单一化已难以满足多元生活方式的表达需求。本设计以“时空叠合”为核心理念,通过新复古主义的设计手法,打破时间与风格的边界,在空间中构建起跨越经典与现代的叙事场域,实现功能与艺术的共生、传统与先锋的对话。 客厅区域采用深棕皮革沙发与木质模块收纳的组合,将中世纪现代主义的功能性设计与日式收纳美学相融合,裸露的水泥梁体作为工业风的符号,与柔化空间的布艺软装形成张力,在材质的碰撞中完成对20世纪中期设计思潮的当代转译。卧室则通过简约木质家具与黑白几何纹样软装的搭配,在克制的色调中植入复古几何美学,亚克力支撑的书桌既满足现代工作需求,又以透明材质消解厚重感,实现空间的轻盈叙事。 餐厨与楼梯区域是时空叠合的高潮。悬浮式木质楼梯以极简结构语言致敬现代主义建筑的理性精神,而复古留声机、古典柱式与梵高《杏花》复刻画的植入,将欧洲古典艺术、工业时代文化与后现代艺术符号并置,构建起“风格拼贴”的视觉诗学,让空间成为承载多元文化记忆的容器。 大面积的橡木实木地板与胡桃木饰面,以自然纹理构建空间的温暖底色,呼应新复古主义对自然材质的偏爱;黑色金属柱式、透明亚克力家具则作为先锋元素,以强烈的视觉冲击打破复古风格的沉闷感。色彩上,米白、深棕的中性色调为空间奠定沉稳基调,湖蓝色地台与红色扶手椅则作为点睛之笔,借鉴孟菲斯设计的色彩实验精神,在复古语境中注入现代活力。 模块式书架既是收纳载体,也是空间的展示性装置,书籍与摆件的陈列形成微型艺术策展;圆形镂空木质隔断在划分空间的同时,通过孔洞的视觉穿透性保持场域的连通,让隔断成为兼具实用与美学价值的“空间艺术品”。每一件家具的选择都经过精心考量,如透明幽灵椅的轻盈感消解了复古圆桌的厚重,复古落地灯的曲线造型柔化了工业风天花的冷峻,在功能满足中完成艺术表达。 本设计通过新复古主义的创造性融合,不仅打造了一个宜居的物理空间,更构建了一个充满叙事性的精神场域。它以开放的姿态接纳不同时代的设计语言,在时空叠合的张力中,为当代家居设计提供了一种“回溯而先锋”的可能性,让居住者在日常起居中,便能完成一场跨越时空的设计美学之旅。
  • 图片
  • 图片
  • 图片
  • 图片
  • 图片
  • 图片
  • 图片
  • 图片
  • 图片
  • 图片
  • 图片
  • 图片
  • 图片
  • 图片
  • 图片
  • 图片
  • 图片
  • 图片
  • 图片
  • 图片
  • 图片
  • 图片
  • 图片
  • 图片
  • 图片
  • 图片
  • 图片
  • 图片
  • 图片
  • 图片
  • 图片
  • 图片
  • 图片
  • 上一个 下一个
    2025第九届金腾奖 私宅空间 | 旅居空间 | 城市功能空间 | 人气设计师 | NEW100 jintengAWARD(小金_金腾奖组委会) 广州市海珠区琶洲大道68号华新中心21楼
    金腾奖视频号 金腾奖小红书号 监制:余佳灵
    统筹:张俊媚
    运营:赖钰炼 曹凯月 刘芳棋 小金
    新媒体:王贝贝 严洁 张文一
    技术:丁德昌
    最终解释权归金腾奖主办方所有