ongkong Land · Qiyuan Elevated Pan-Club
作品详情
  • Details of the work 标题横线
    头像或者logo
    图片 海力设计
    城市:重庆市
    公司:海力设计
    参赛作品: 香港置地·启元 架空泛会所
    空间类型:商业
    个人/公司简介:
    海力空间设计成立于 2001 年,是专注国际前沿设计的品牌。其致力于提供地产空间、商业空间、酒店会所空间、公共空间及高端住宅空间的整体解决方案,已在重庆、深圳、广州设分公司,团队超 170 人。品牌以 “纳自然之形,塑空间之意” 为设计理念,坚持 “设计生活家” 身份,用独特设计语言为客户提供优质空间设计。
    设计说明 | Design Instruction
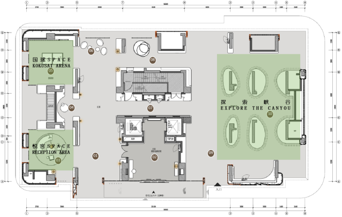
  • 香港置地・启元架空泛会所坐落于重庆观音桥核心商圈,是海力空间设计以 “长期商业运营价值” 为核心,融合色彩氛围营造与沉浸式情感体验理念,精心打造的都市商业休闲新地标。项目不仅聚焦目标客群当下的休闲消费需求,更注重空间的长效商业价值与可持续体验感,为商业运营注入持久活力。 在长期商业价值导向下,设计团队精研每一处细节规划与落地,确保空间兼具商业美学表现力与实用功能性,既能适配客群需求迭代,又能长期维持商业吸引力;同时通过定制化主题场景与特色功能区设计,为客群带来持续的体验新鲜感与消费归属感,强化商业空间的复访率。 色彩氛围营造是本商业空间的核心设计亮点之一。设计团队以色彩为情感媒介,通过精准的色调搭配强化场景氛围,让客群在商业公共空间中获得沉浸式感官体验 —— 无论是 2# 楼 “绿野童话” 主题的清新自然色调,还是 3# 楼 “繁星探索” 主题的神秘星空色彩,均以差异化色彩表达构建独特商业记忆点,助力提升空间的市场辨识度与竞争优势。 此外,系统化的商业服务与运营逻辑是空间设计的重要支撑。设计团队秉持 “向上生长型” 商业运营理念,通过开放化空间布局与互动式场景设计,鼓励目标客群参与共建共享,最终将架空泛会所打造为观音桥商圈内兼具休闲功能与社交属性的活力商业互动空间,实现商业价值与用户体验的双重提升。
  • 图片
  • 图片
  • 图片
  • 图片
  • 图片
  • 图片
  • 图片
  • 图片
  • 图片
  • 图片
  • 图片
  • 图片
  • 图片
  • 图片
  • 图片
  • 图片
  • 图片
  • 图片
  • 图片
  • 图片
  • 图片
  • 图片
  • 图片
  • 图片
  • 图片
  • 图片
  • 图片
  • 图片
  • 图片
  • 图片
  • 图片
  • 图片
  • 图片
  • 图片
  • 图片
  • 图片
  • 图片
  • 图片
  • 图片
  • 图片
  • 上一个 下一个
    2025第九届金腾奖 私宅空间 | 旅居空间 | 城市功能空间 | 人气设计师 | NEW100 jintengAWARD(小金_金腾奖组委会) 广州市海珠区琶洲大道68号华新中心21楼
    金腾奖视频号 金腾奖小红书号 监制:余佳灵
    统筹:张俊媚
    运营:赖钰炼 曹凯月 刘芳棋 小金
    新媒体:王贝贝 严洁 张文一
    技术:丁德昌
    最终解释权归金腾奖主办方所有