Guanxiaoyuan Designer Brand Concept Store
作品详情
  • Details of the work 标题横线
    头像或者logo
    图片 尹航
    城市:北京市
    公司: 北京一条大河品牌策划有限公司
    参赛作品: 关小圆设计师品牌买手店
    空间类型:商业
    个人/公司简介:
    我曾在中央美术学院学习建筑学,具备系统的建筑与空间设计训练背景。我的研究兴趣集中于室内设计与建筑叙事的结合,关注如何通过空间转译自然意象与文化哲思。在创作过程中,我注重将人本体验与社会价值纳入设计考量,探索结构、材质与氛围的综合表达。希望通过持续实践与思考,为当代室内与零售空间提供兼具创新与文化深度的解决方案。
    设计说明 | Design Instruction
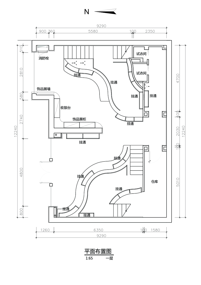
  • 关小圆设计师品牌买手店的改造,源自我在香格里拉旅途中远望哈巴雪山的体验。雪山在中国文化中象征着静止的神性,与水的流动之灵相对,成为古人哲思与绘画中的母题。从五代荆浩、董源到《溪山行旅图》,山的形象不断被提炼,成为“君子”的精神寄托。我希望将这一意象转译为当下城市街区中的空间体验,让自然、文化与零售产生新的对话。 外立面以体块推演生成的“倒雪山”雕塑为核心,将雪峰局部形态倒立呈现,并柔化为帷幔般的曲面。它既回应了山体的厚重与力量,又传递女性气质下的温柔。雕塑覆盖入口,使建筑本身成为街区中极具识别度的视觉符号,也成为访客进入空间的精神起点。这一形象不仅延续了品牌20余年的文化积淀,更以公共艺术般的姿态介入城市语境,激活街区氛围。 室内动线模拟登山路径。楼梯与台阶层层递进,串联起不同功能区,形成节奏感的空间秩序。登山的象征性叙事被植入零售体验,使顾客在行进中获得心理上的沉浸感。改造前仅有单层103.8㎡,通过叠加的空间处理,使用面积提升至171.5㎡,不仅缓解了功能不足,也提高了空间的运营效率。楼梯扶手等节点细部采用不锈钢处理,在确保安全的同时传达出材质的真实感。 仓储部分借鉴资料馆的密集柜,转化为滑动推拉式的储物系统。该设计大幅压缩了仓储面积,释放更多前场空间用于展示。功能与效率的平衡,使零售空间在有限体量内兼顾展示、储物与动线组织,为类似店铺提供了可复制的方案。 色彩与材质体系直接取自哈巴雪山。雪峰的白、岩层的灰、林木的绿与岩石的褐被提取并对应转化为空间基调,材质上采用清水泥、不锈钢、天然石材与立邦漆。通过“雪山意象情绪板”,自然色彩被具象为材质构造,使空间呈现宁静、坚韧而不失温度的氛围。这一转译不仅是形式的,还延续了雪山文化中的精神价值。 本案不仅是一个零售空间的改造,更是街区更新的探索。它以雕塑介入公共界面,强化街区的识别度与文化氛围;在室内,动线与材质的叙事性营造了独特体验;在功能上,密集柜仓储与面积效率的提升,回应了当下零售空间对高效运营的需求。作为一个落地完成的项目,它展示了零售空间改造的可能路径,同时也为未来街区提供了启示。 我相信室内设计不仅是功能与形式的处理,更是文化与社会议题的回应。关小圆买手店通过雪山意象的转译、人本体验的融入与运营效率的探索,力图在坚强与温柔之间找到平衡,在商业与文化之间搭建桥梁。这一改造不仅服务于品牌发展,更回应了“中国发生”的社会语境,体现了“中国思考”的设计探索,并展现了“中国发展”的空间潜能。
  • 图片
  • 图片
  • 图片
  • 图片
  • 图片
  • 图片
  • 图片
  • 图片
  • 图片
  • 图片
  • 图片
  • 图片
  • 图片
  • 图片
  • 图片
  • 图片
  • 图片
  • 图片
  • 图片
  • 图片
  • 图片
  • 图片
  • 图片
  • 图片
  • 图片
  • 图片
  • 上一个 下一个
    2025第九届金腾奖 私宅空间 | 旅居空间 | 城市功能空间 | 人气设计师 | NEW100 jintengAWARD(小金_金腾奖组委会) 广州市海珠区琶洲大道68号华新中心21楼
    金腾奖视频号 金腾奖小红书号 监制:余佳灵
    统筹:张俊媚
    运营:赖钰炼 曹凯月 刘芳棋 小金
    新媒体:王贝贝 严洁 张文一
    技术:丁德昌
    最终解释权归金腾奖主办方所有