Qingxin elegant residence
作品详情
  • Details of the work 标题横线
    头像或者logo
    图片 张洪法 华耐设计基金特约推荐
    城市:北京市
    公司: 红杉树
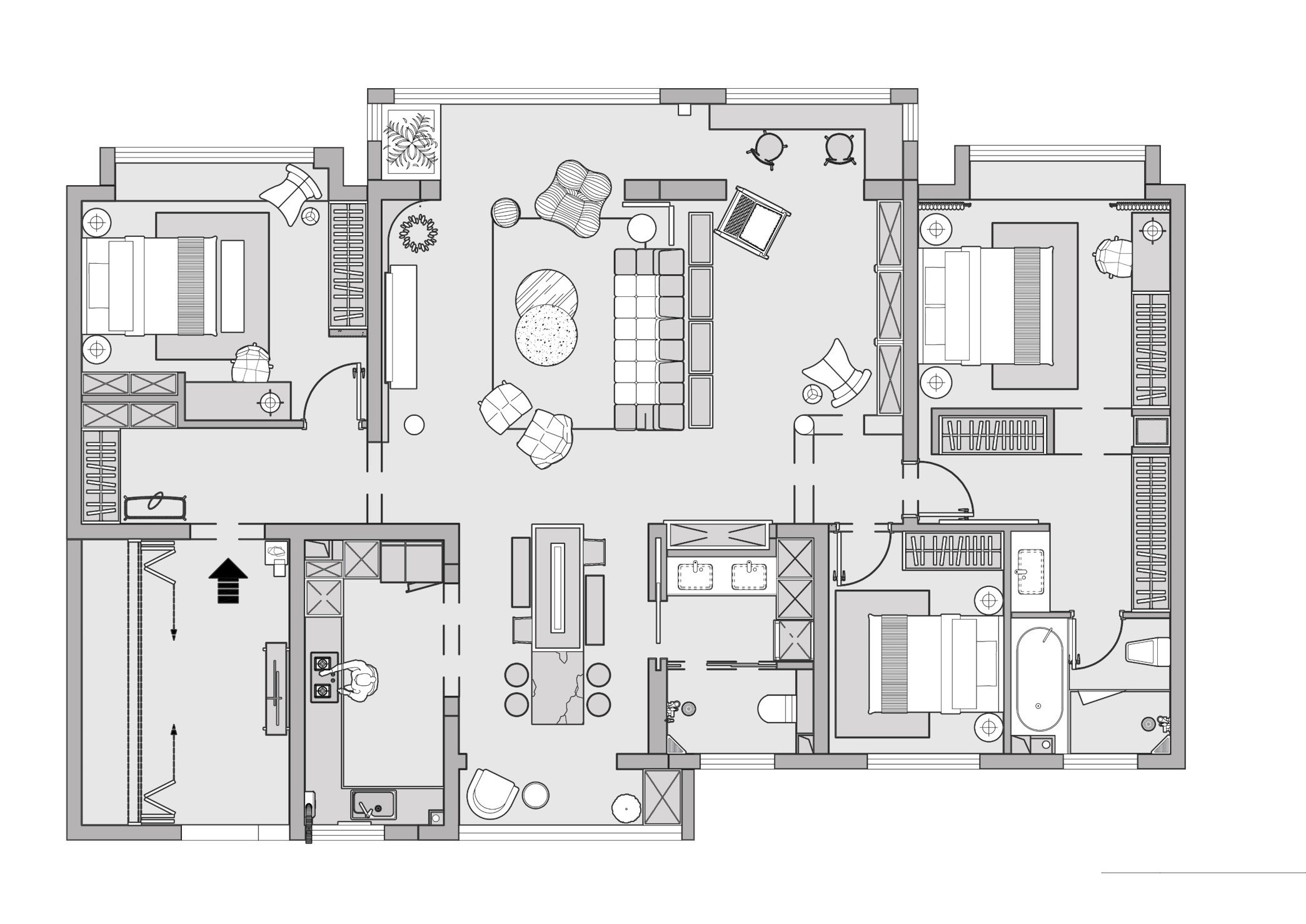
    参赛作品: 清馨雅居
    空间类型:平层(150㎡以上)
    个人/公司简介:
    关于我:细节控,审美好,是客户对我的最初印象,注重客户需求,重视落地,则是我与每一个业主建立信任的桥梁。非常擅长当下流行的风格,中古风,法式奶油风,现代风等设计。专注打造品质家居生活,还原客户的梦中情家。 擅长风格:现代风格,奶油风风格,新中式,原木风格。
    设计说明 | Design Instruction
  • 一、设计理念:美学与功能的浪漫共生​ 本设计以高审美为核心,平衡现代简约气质与法式浪漫底蕴,打造颜值与温度兼具的居所。色彩上,以乳白色搭配原木色奠定温馨基调,传递居家松弛感;空间规划上,通过科学划分构建 “连续且独立” 的动线,兼顾互动与私密;同时以拱形元素为贯穿设计语言,柔化空间棱角,实现区域视觉呼应,彰显法式细腻。​ 二、设计描述:为 “舒适质感” 量身定制​ 结合 80 后业主 “舒适质感、温馨清新” 的需求,设计锁定原木风,以奶油色为基底搭配原木色地板家具,隔绝喧嚣,营造松弛优雅的氛围。​ (1)客厅:优雅通透的互动空间​ 延续奶油色主调,大量运用弧线元素弱化棱角;客餐厅贯通设计,视野开阔且便于互动;地面铺木纹砖,兼顾自然质感与耐磨性。​ (2)卧室:简洁治愈的休憩空间​ 以白色为基础,融入浅杏、原木等暖色调,“减法设计” 减少繁杂装饰;借助弧形吊顶赋予空间韵律,与客厅呼应,柔和灯光增添治愈感。​ (3)过道:法式浪漫的过渡空间​ 弧形顶设计柔化狭长感,搭配奶油色墙面与原木线条,延续整体风格,让过道成为浪漫氛围的延伸,提升行走体验。 从理念到落地,整个居所设计始终围绕业主 “舒适与浪漫并存” 的核心需求,以统一的色彩、连贯的元素和清晰的功能划分,将现代的利落与法式的柔美融为一体。无论是公共区域的互动感、私密空间的治愈感,还是过渡区域的氛围感,都旨在为 80 后业主打造一处既能承载日常烟火,又能隔绝外界纷扰的 “理想之家”,让每一次归家都成为一场身心放松的享受。
  • 图片
  • 图片
  • 图片
  • 图片
  • 图片
  • 图片
  • 图片
  • 图片
  • 图片
  • 图片
  • 图片
  • 图片
  • 图片
  • 上一个 下一个
    2025第九届金腾奖 私宅空间 | 旅居空间 | 城市功能空间 | 人气设计师 | NEW100 jintengAWARD(小金_金腾奖组委会) 广州市海珠区琶洲大道68号华新中心21楼
    金腾奖视频号 金腾奖小红书号 监制:余佳灵
    统筹:张俊媚
    运营:赖钰炼 曹凯月 刘芳棋 小金
    新媒体:王贝贝 严洁 张文一
    技术:丁德昌
    最终解释权归金腾奖主办方所有