The scale of freedom
作品详情
  • Details of the work 标题横线
    头像或者logo
    图片 大墨空间设计 橙设传媒特约推荐
    城市:温州市
    公司:大墨空间设计
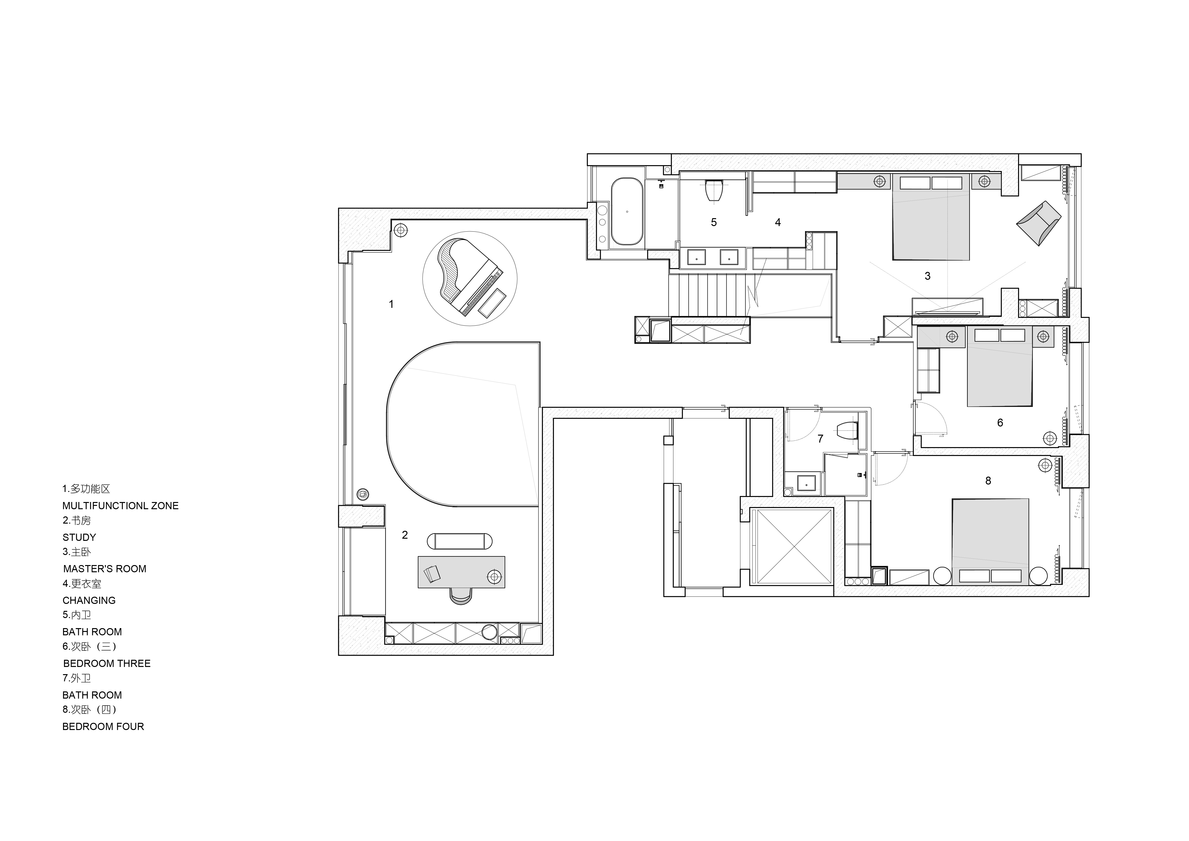
    参赛作品: 自由的尺度
    空间类型:平层(150㎡以上)
    个人/公司简介:
    从创始之初,大墨空间设计就确立对内核心价值观:“正直、诚实、责任、上进”。 我们开诚布公,设身处地为客户着想,确保客户的诉求是我们所有设计展开的基石。 为了实现最贴近客户需求的设计成果,大墨构建日趋完善的设计团队共同协作体系。随着客户的要求日益提高,也要求我们在团队及有创造力的设计思维与实践之上更加严格要求自己。 大墨设计采用团队协作的工作方式,让每个人从事自己最擅长的领域,通过草图、原型、模型、渲染草图和广泛且详细的设计探索,协助客户作出取舍,保证工程的高执行和完成度。 我们的员工对工作满怀热情,不断追求进步,潜心于项目的实践。是一支经验丰富,有高级审美的设计团队,通过梳理客户实际需求,为客户提供完整且直接有效的专业室内设计服务和软装解决方案。 大墨设计的作品多次获得过国内顶级奖项、被国际知名杂志、书籍和网络媒体报道,于行业内外受到广泛关注。
    设计说明 | Design Instruction
  • 我们切不可为了时代而放弃永恒。 ——胡塞尔 现代都市生活,督促着人们快速前行,我们不断地被定义,被标记,正确与错误,非黑即白……我们仿佛没有自我,也不必思考自我,只需跟紧流行的脚步穿梭在无边际的人潮里。 设计希望家空间是打破常规的定向思维,是得以喘息的自由之地,不为流行折腰,仅代表个人的审美与见地,在温州江畔的一袭之地,顺着天空与江面的一线痕迹,掌握自由的尺度。 边界与自由 弧形元素被大胆地使用在空间的不同场景,代表自由的线索,串联起不同平面场景间的呼应关系。沿窗挑空,双层天空被容纳进同一视角,自然光贯穿而来,蔚蓝的天空与江面包裹着城市的建筑,自然与人文景观交接,成为瓯江沿岸,这都市边际的独特图景。 一层空间的动静关系通过楼梯被一分为二,北侧公区承载家庭大部分的生活场景,南侧则作为两个孩子的卧房区域存在,两间卧室通过一个共用的起居空间串联,孩子们在拥有自己独立场景的同时,可以自由地穿梭至公区玩耍,形成完美的动线结构。 光进入空间的路径经层层拆解,形成明暗自然的过渡,楼梯置于明度最低的中间区域,以暗应暗,隐藏在场景相交的转角,不做刻意的调亮,隐匿起私密场景与公区的链接,仅以上层空间倾下的一线天光为指引,引起向上探寻的好奇。 自然的觉知 光本身并无形状,因场景的切割化形。设计雕刻块面的形态,克制地使用人造光源,减少场景中的人为装饰,放大不同时间下阴影的动态效果,引导居者对自然光影的觉知。 回廊中观境 一二层间的挑空关系,为二楼带来回廊式的观景通道,如同置身博物馆般的行走路径,同时切割起居空间与茶空间的关系,达到”相望“、“相连”却互不打扰的状态。父母在醉心品茶的同时,可以看到子女玩乐的场景,并在需要时能通过透明的通道快速到达,为成长型的家庭状态定制更安全宜居的环境。 主卧呈现为开阔通透的结构,同时在功能与装饰上极尽简约,仅维持基本的睡眠需求,引导居住者将生活重心向公区偏移,促进家庭成员间的沟通对话。 平常人的本能特性远比刻意创造的个性重要。 设计是给予空间一个底色,剩余的则交予居住者去慢慢填满。
  • 图片
  • 图片
  • 图片
  • 图片
  • 图片
  • 图片
  • 图片
  • 图片
  • 图片
  • 图片
  • 图片
  • 图片
  • 图片
  • 图片
  • 图片
  • 图片
  • 图片
  • 图片
  • 图片
  • 图片
  • 图片
  • 图片
  • 图片
  • 图片
  • 图片
  • 图片
  • 图片
  • 图片
  • 图片
  • 图片
  • 图片
  • 图片
  • 图片
  • 图片
  • 图片
  • 上一个 下一个
    2025第九届金腾奖 私宅空间 | 旅居空间 | 城市功能空间 | 人气设计师 | NEW100 jintengAWARD(小金_金腾奖组委会) 广州市海珠区琶洲大道68号华新中心21楼
    金腾奖视频号 金腾奖小红书号 监制:余佳灵
    统筹:张俊媚
    运营:赖钰炼 曹凯月 刘芳棋 小金
    新媒体:王贝贝 严洁 张文一
    技术:丁德昌
    最终解释权归金腾奖主办方所有