There is a way without boundaries
作品详情
  • Details of the work 标题横线
    头像或者logo
    图片 倪成建 橙设传媒特约推荐
    城市:温州市
    公司: 简印空间设计
    参赛作品: 无域有方
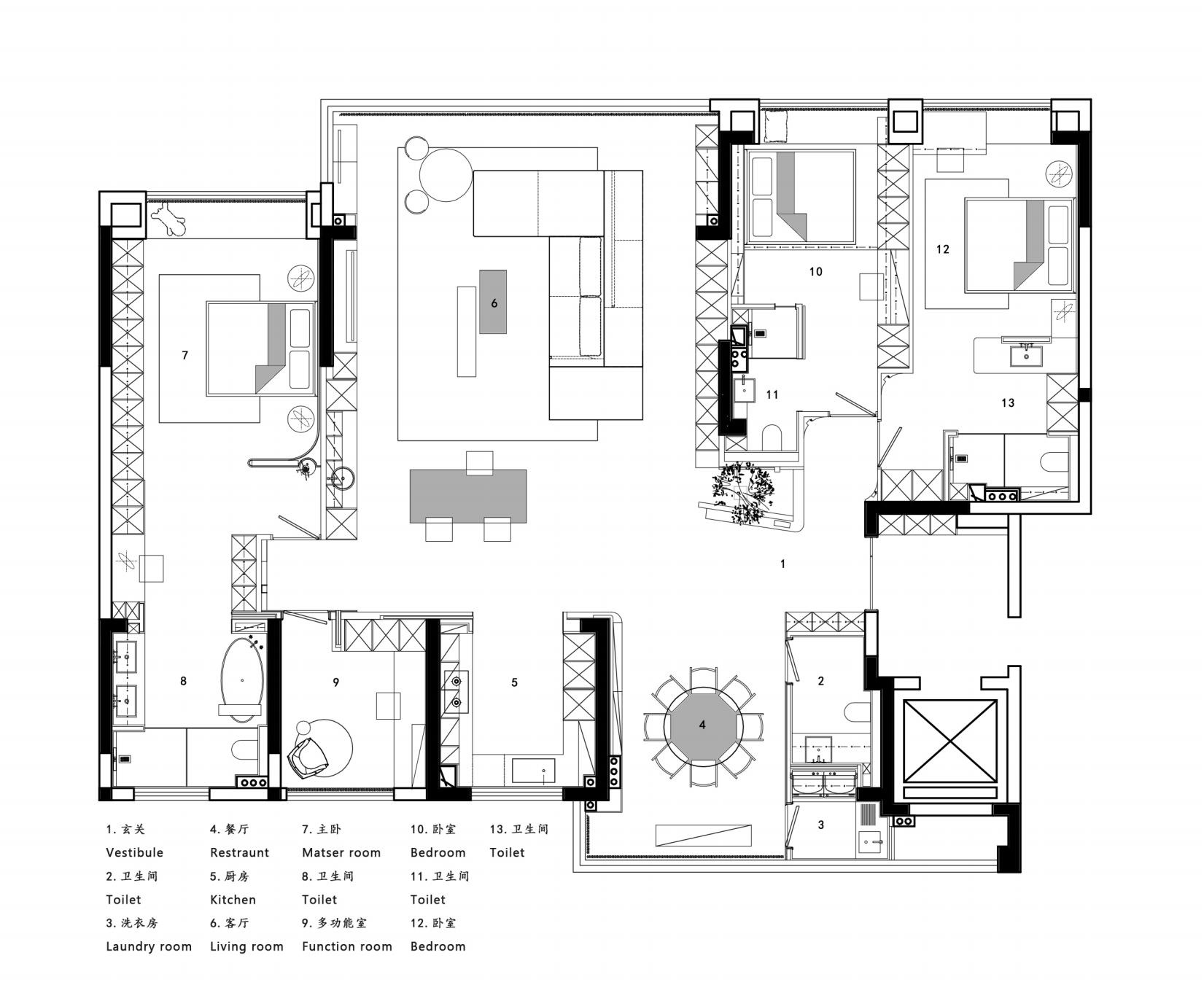
    空间类型:平层(150㎡以上)
    个人/公司简介:
    倪成建 简印空间设计 创始人
    设计说明 | Design Instruction
  • 真正的空间,是材料与光线的一场对话。 ——隈研吾 01 内在探索 设计对于现代极简的探索,正逐步脱离单一的表层构建,转而去匹配一场关乎生活美学的思考,伴随光的流动与沉寂,填补更丰满的内在叙事。 本案基于对场景化结构的理性描摹,逐步深入空间内质,重新梳理不同区域之间的依存关系,为生活构建新的秩序美学。拆除原始逼仄的玄关,以斜切面扩大入户视野,绿植和灯光组合艺术景观向内穿梭流动,赋予自然的呼吸感。 重新设定共享边界,展开对生活场景的预演,引导更舒适的行为动线与区域关系。 原始就餐区屈居于客厅,于是将北面的房间挪为独立餐厅,毗邻次卫和厨房,餐、厨、卫秩序排布形成黄金三角区,同步释放了客厅的完整性,重构“全景式”的会客社交场。 巧妙借炉火、落地灯等间接光源作为氛围渲染,加深明暗层次与诗意氛围,引导线条体块参与其中,造型、结构、材质互相构成,完成整体化呼应。 黑色饰面吸纳着幽深的光,停留于哑光或亮面的表皮中,低调渲染层次,抒发质感与静默。格栅与窗为整体暗调氛围调节一份通透,把握着动与静的平衡,关照细节中的情绪尺度。 设计引导空间自述专属的生活方式,加强节奏的连贯性。就餐区通过场景位移得到了一个完整的空间,向外敞开与过道互通,几何结构作为再生媒介,打破空间的次元维度,造就了这个充满张力的有机场域。铺展少量纹理和石材肌理,在理性的空间中添加情绪因子,契合居住者个人气质与审美。 多功能吧台作为客餐厅之间的过渡,与家人一起体验西式料理、品酒小酌,将生活化的日常延伸至精致主义的品质表达,给予不设限的自由形式。 02 空间的专属性 基于对生活美学的独到见解,回归阅尽繁华后的一份淡然,向往一份与内心共鸣的栖息之所。设计为每个家庭成员调度更具专属性的空间形态,三间卧室皆为套房结构,配备独立卫浴系统,融入人性化的收纳美学,将重点落于舒适感的居住体验。 书房和主卧共享过道,通过移门将两者构成一体,与公共区形成游离感。移门开合间切换书房的内外关系,根据场景需求随时变换空间形态。 营造亲密感的同时,依旧调度着形式与功能的序然。主卧入门将不同材质、造型互嵌,灯光由外向内引导结构的存在感,顺着弧度曲直婉转,在统一的柜面延续中内藏生活痕迹,逐层运筹着生活秩序。 柜体搭建出敞开式的衣帽区与化妆台,向内过渡至卫浴区,加入双台盆和浴缸,根据业主的生活需求组合四分离布局。玻璃移门将卫浴和外界形成游离互通的关系,整洁流畅的同时保障了各功能区的舒适与独享。 次卧入门毗邻玄关,于是向内延展纵深,保障一定的私密感。设计采用圆弧饰面修饰柱体的明角,内嵌灯带指引,以此流畅过渡,柔化空间氛围的同时映射品质。 结构与功能之间的组合变化,给予更加丰富的视角,展现一份包容与多变。而设计的本意,在于将空间让渡给生活本身,同时体察着一份感性与理性的方式,拥有更自在的生命力。
  • 图片
  • 图片
  • 图片
  • 图片
  • 图片
  • 图片
  • 图片
  • 图片
  • 图片
  • 图片
  • 图片
  • 图片
  • 图片
  • 图片
  • 图片
  • 图片
  • 图片
  • 图片
  • 图片
  • 图片
  • 图片
  • 图片
  • 图片
  • 图片
  • 图片
  • 图片
  • 图片
  • 图片
  • 图片
  • 图片
  • 上一个 下一个
    2025第九届金腾奖 私宅空间 | 旅居空间 | 城市功能空间 | 人气设计师 | NEW100 jintengAWARD(小金_金腾奖组委会) 广州市海珠区琶洲大道68号华新中心21楼
    金腾奖视频号 金腾奖小红书号 监制:余佳灵
    统筹:张俊媚
    运营:赖钰炼 曹凯月 刘芳棋 小金
    新媒体:王贝贝 严洁 张文一
    技术:丁德昌
    最终解释权归金腾奖主办方所有