Time slice
作品详情
  • Details of the work 标题横线
    头像或者logo
    图片 徐聪聪 丽水几支传媒特约推荐
    城市:浙江省丽水市
    公司: 丽水市原点设计
    参赛作品: 时光切片
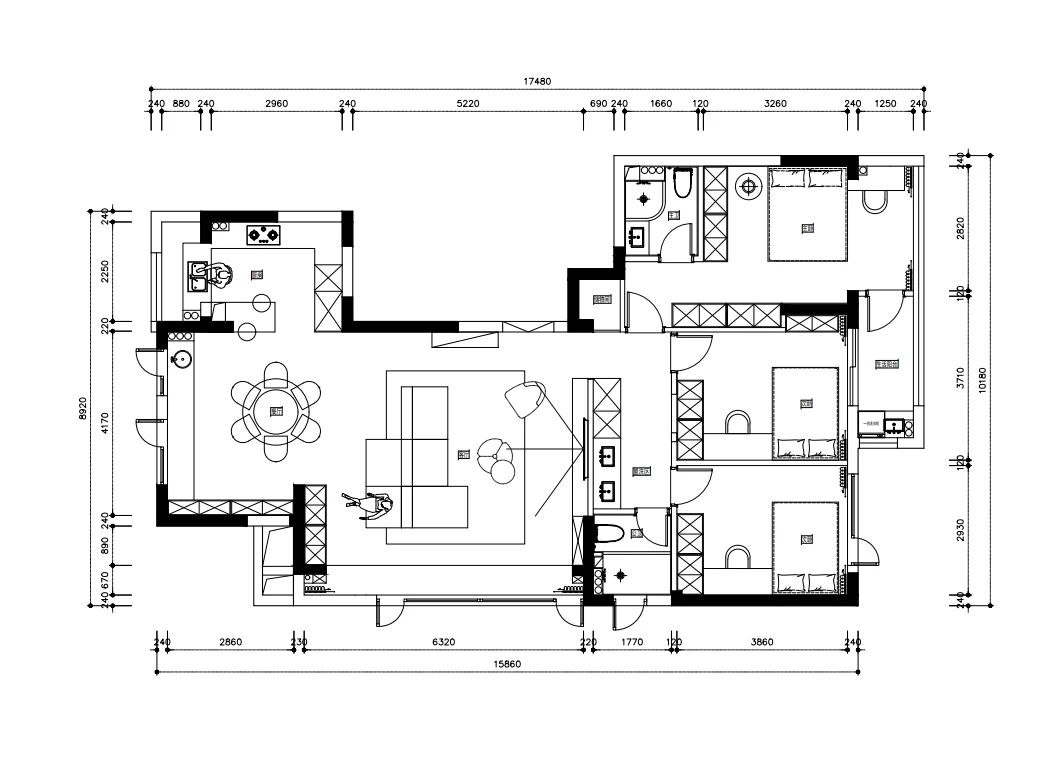
    空间类型:公寓(150㎡以下)
    个人/公司简介:
    以结构性留白和精准的细节控制,让空间回归本质的丰盈。
    设计说明 | Design Instruction
  • 将“家“比喻为一个时空的切片,黑白灰代表现代、未来甚至永恒感;而木纹,是自然生长的年轮,是时光流逝的痕迹。两者共存于一个空间,仿佛将不同的时间维度凝固于此,进行一场静默的对话。
  • 图片
  • 图片
  • 图片
  • 图片
  • 图片
  • 图片
  • 图片
  • 图片
  • 图片
  • 图片
  • 图片
  • 图片
  • 图片
  • 图片
  • 图片
  • 图片
  • 上一个 下一个
    2025第九届金腾奖 私宅空间 | 旅居空间 | 城市功能空间 | 人气设计师 | NEW100 jintengAWARD(小金_金腾奖组委会) 广州市海珠区琶洲大道68号华新中心21楼
    金腾奖视频号 金腾奖小红书号 监制:余佳灵
    统筹:张俊媚
    运营:赖钰炼 曹凯月 刘芳棋 小金
    新媒体:王贝贝 严洁 张文一
    技术:丁德昌
    最终解释权归金腾奖主办方所有