sunny
作品详情
  • Details of the work 标题横线
    头像或者logo
    图片 王威 几支传媒特约推荐
    城市:丽水市
    公司: 颠锋视界
    参赛作品: 结构重塑
    空间类型:别墅
    个人/公司简介:
    尊重生活,尊重设计。
    设计说明 | Design Instruction
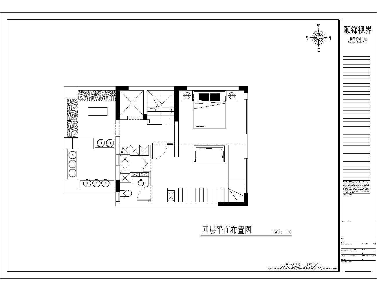
  • 本案业主是一对90后夫妻,对于理想居所,他们期待的是不被传统束缚的自由感,也是一个能承载未来十年成长的家。面对每层面积有限、传统7层排屋容易压抑割裂的痛点,我以「立体大平层」为理念,通过多处半隔断挑空、材质串联和Loft重构,真正实现了分层不分隔、通透且互联的现代居住体验。以停车场入口为主入户门,玄关及客厅保留6米挑高,客厅内连茶室外接庭院空间。12米的护墙板连接负二楼至二楼这4层空间,原本楼梯衔接到顶楼,我将顶楼楼梯通道封闭,在主卧设计了悬浮楼梯连接顶楼,成为主卧的卫浴空间及衣帽间,提高了顶楼空间的利用率,设置了主卧的休息区以及起夜的卫生间,提升主卧的舒适度。总体将七层排屋,转变为一个连续、通透、充满探索乐趣的现代家居作品。它解决了原始户型的结构性缺陷,超越了物理空间的限制,重塑了家庭成员间的互动关系,实现了光、空气、人在垂直维度上的共生与对话。
  • 图片
  • 图片
  • 图片
  • 图片
  • 图片
  • 图片
  • 图片
  • 图片
  • 图片
  • 图片
  • 图片
  • 图片
  • 图片
  • 图片
  • 图片
  • 图片
  • 图片
  • 图片
  • 图片
  • 图片
  • 图片
  • 图片
  • 图片
  • 图片
  • 图片
  • 图片
  • 图片
  • 图片
  • 图片
  • 图片
  • 图片
  • 图片
  • 图片
  • 图片
  • 图片
  • 图片
  • 图片
  • 上一个 下一个
    2025第九届金腾奖 私宅空间 | 旅居空间 | 城市功能空间 | 人气设计师 | NEW100 jintengAWARD(小金_金腾奖组委会) 广州市海珠区琶洲大道68号华新中心21楼
    金腾奖视频号 金腾奖小红书号 监制:余佳灵
    统筹:张俊媚
    运营:赖钰炼 曹凯月 刘芳棋 小金
    新媒体:王贝贝 严洁 张文一
    技术:丁德昌
    最终解释权归金腾奖主办方所有