Escapism - Earthly Luxury in Seclusion
作品详情
  • Details of the work 标题横线
    头像或者logo
    图片 苏州山禾悦境建筑空间设计
    城市:苏州市
    公司:苏州山禾悦境建筑空间设计
    参赛作品: 逸境—大地隐奢
    空间类型:别墅
    个人/公司简介:
    这是一家独立设计工作室, 于2019年成立于中国苏州张家港市。 在室内空间设计,软装陈设艺术设计等领域, 均有成熟的项目经验和案例作品。 我们只做原创设计,专注于私宅及小型商业空间设计。 面向全国开展高质量,有创意的空间设计服务。 用我们的专业知识和对设计的执着、 热情完成我们和委托人共同的理想空间。 我们相信好的空间富有情绪,通过空间的传递与人产生链接。
    设计说明 | Design Instruction
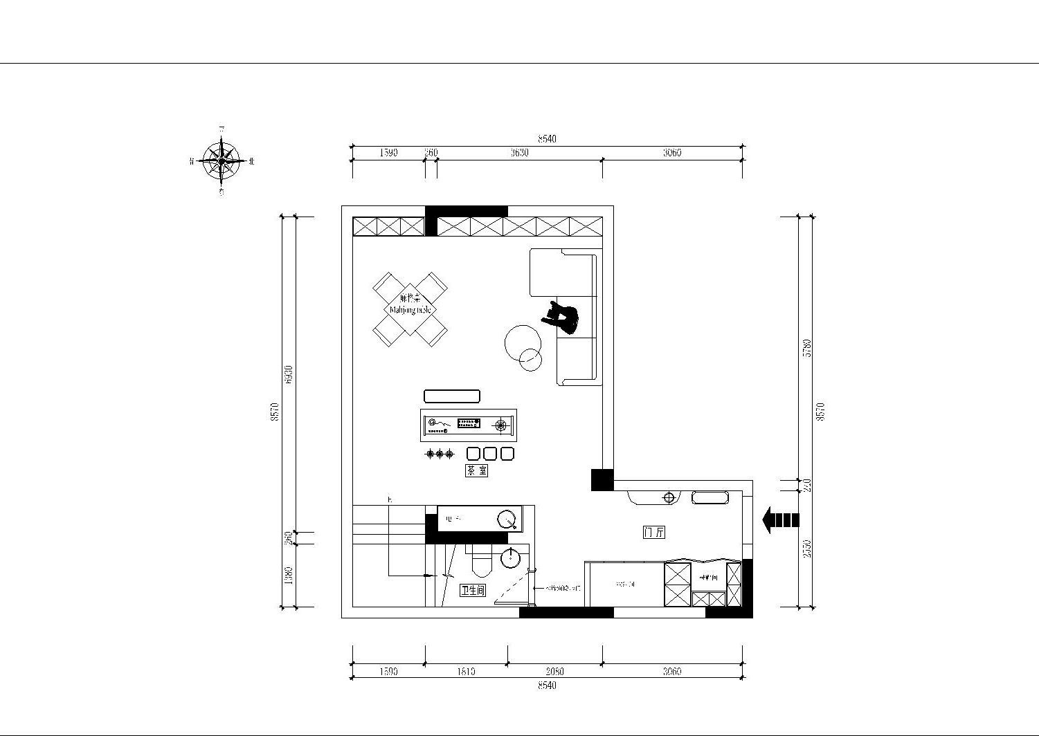
  • 本项目位于苏州张家港中心地段,是一套供七口之家居住的叠加别墅。设计以“色彩层次、光影运用、材质质感”为核心,旨在于明暗之间建立平衡,在纷繁元素中营造出和谐且富有层次感的居住空间,探索空间美学与生活体验的融合之道。 在色彩规划上,设计以黑、白、咖为基调,深咖和灰色通过吸收光线降低空间亮度,营造沉稳氛围;白色则反射光线,增加亮度,形成明暗对比,为层次叠加奠定基础。在此之上引入木质的温润棕色、织物的柔和米色等自然色彩,如同微风拂过空间,为冷静基底注入一抹温暖与生机,使空间与自然紧密相连。不同区域之间色彩过渡自然,从客厅深色沙发到餐厅吧台餐桌,再到厨房白色台面,形成渐变层次;黑色元素在沙发、茶几、楼梯扶手等的重复使用,强化空间整体性与节奏感。 光影的运用是本案的灵魂所在。大面积窗户引入充足自然光,白色窗帘柔化光线,使空间随日夜与四季变换呈现丰富氛围;自然光的流动为空间注入时间感与动态层次。夜间及光线不足时,吊灯、壁灯、射灯等多层级灯光补充照明,暖色光线与冷色基调形成对比,既平衡明暗,又营造温馨氛围,让空间在动静之间切换自如。 材质的搭配进一步强化空间层次与质感。金属与玻璃的光泽增强反射,增加通透感;木质与织物的柔软质地降低反射,带来温润触感。光滑与粗糙、冷硬与温暖的对比组合,使空间在触觉与视觉上都更为丰富立体,呈现多元而统一的美感。 在地下室挑空区域,因层高仅余2米,设计团队采用镜面不锈钢板铺设顶面,引导视线向上延伸,利用反射与光影错觉有效增加视觉高度,缓解压迫感,使原本低矮的空间更显宽敞通透。 整体而言,本案通过精妙的色彩搭配、光影塑造与材质组织,在明暗之间找到了平衡,使空间既和谐安定,又层次丰富,兼具美学品位与居住温度,为多口之家营造出充满秩序感与情感归属的理想居所。
  • 图片
  • 图片
  • 图片
  • 图片
  • 图片
  • 图片
  • 图片
  • 图片
  • 图片
  • 图片
  • 图片
  • 图片
  • 图片
  • 图片
  • 图片
  • 图片
  • 图片
  • 图片
  • 图片
  • 图片
  • 图片
  • 图片
  • 图片
  • 上一个 下一个
    2025第九届金腾奖 私宅空间 | 旅居空间 | 城市功能空间 | 人气设计师 | NEW100 jintengAWARD(小金_金腾奖组委会) 广州市海珠区琶洲大道68号华新中心21楼
    金腾奖视频号 金腾奖小红书号 监制:余佳灵
    统筹:张俊媚
    运营:赖钰炼 曹凯月 刘芳棋 小金
    新媒体:王贝贝 严洁 张文一
    技术:丁德昌
    最终解释权归金腾奖主办方所有