Nanjing Arts University Library
作品详情
  • Details of the work 标题横线
    头像或者logo
    图片 韩远洋 云上设计师俱乐部特约推荐
    城市:南京市
    公司: 南京艾特斯艺术设计
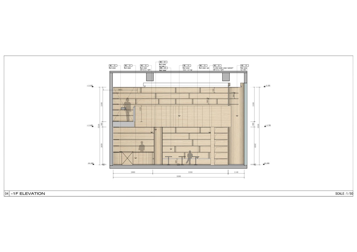
    参赛作品: 南艺图书馆
    空间类型:商业
    个人/公司简介:
    毕业于南京艺术学院 ARTSEA DESIGN艾特斯设计(南京艾特斯艺术设计有限公司) 创意总监 创始人 中室学CIID(南京)建筑室内设计师交流中心 副秘书长 《DLIFE设计与生活》杂志特邀编委 中国新锐设计师 注册室内建筑设计师 中级工程师 2018年艾鼎奖 餐饮空间 优秀奖 2019年“弄色印象”刊登于《DLIFE设计与生活》杂志 2019年接受《DLIFE设计与生活》杂志个人专题采访 2019年上海国际设计周新锐中国设计奖(城际榜) 2019年上海国际设计周新锐中国设计奖(省际榜) 2020年《台湾金邸奖提名奖》 2020年《璟宸华府售楼处》刊登于《DLIFE设计与生活》杂志 2020年《璟宸华府售楼处》发表于“南京家居平台” 2020年《璟宸华府售楼处》作品入选《中国国际室内设计年鉴》 2020年“WAD世界青年设计师大会2020年度杰出设计师”荣誉称号 2020年WAD世界青年设计师大会十大杰出设计师 2020年40UNDER40中国设计杰出青年 2020年APDC DESIGN AWARDS亚太设计佳作奖 2020年第七届法国双面神GPDP AWARD国际设计创新设计大奖 2023年中国室内设计年度封面人物
    设计说明 | Design Instruction
  • 随信息化和社会化发展,高校图书馆不再仅是信息的传播平台,而是高校文化的中心,未来学习的中心,一个兼具文化交流、学术交流和创新学习的场所。本次南艺院校图书馆升级改造,迎接新的空间探索,为广大师生们带更优质、便捷和充满哲思的现代艺术的阅读与学习环境。 南艺图书馆总高6层,居于校园总体规划的核心部位,连接教学区和生活区,与周边环境协调,安静幽雅,为读书学习的优美环境。在新的时代背景下,这里焕然一新,成为院校师生、广大学子们的文化交流生活中心,畅享青春活力与智慧的火花。 南艺图书馆室内空间的全面升级改造,艾特斯设计团队于融合发展的宏观视角,以前瞻性的思维刷新内部设计,改造后的空间展现了南艺院校独特的文化内涵,创造一个互动交融,激发创意,探索艺术的多元化未来学习社区体验。 负一楼东门厅,垂直纵深感极强的接待大堂,设计师希望呈现一个“山海意境,知识畅游”的自然社交场所。在入口左侧角落,青白相间的桌椅搭建舒适的等待区,自然元素重塑人们的空间感知,悄然消弭人与人之间的距离感。 南艺拥有独特的DNA文化,是艺术传统与现代创新的共生结果。图书馆作为院校的文化中心和学生的知识港湾,设计师将空间融合南艺创新精神的设计表达,展现了学院独有的风采和魅力。 设计理念上,将人的需求和体验作为核心重点,已实现从传统的“书本中心”到“以人为本”的华丽转变。整体改造紧随建筑原有的空间脉络,利用西北侧楼梯、连廊以及中庭阶梯,形成连续向上的知识路径。书山有路勤为径,形而上的意识形态,激励学生们勇于攀登知识的高峰。 室内设计深刻贯彻“以人为本”的理念,将学子的舒适体验放在首位。精心搭配的木质桌椅,依次有序排列,展现了空间的秩序美,奏响宁静与和谐的旋律。与此同时空间布局考虑服务台的实用性,尽可能拉近图书馆员与读者之间的距离,使交流与沟通自由流畅进行。 窗外,自然风光无限延展,室内外环境和谐相融,学子们依窗而坐,每次翻阅书籍,仿佛都开启了一次心灵的旅行,让人在知识的海洋中畅游。
  • 图片
  • 图片
  • 图片
  • 图片
  • 图片
  • 图片
  • 图片
  • 图片
  • 图片
  • 图片
  • 图片
  • 图片
  • 图片
  • 图片
  • 图片
  • 图片
  • 图片
  • 图片
  • 图片
  • 图片
  • 图片
  • 图片
  • 图片
  • 图片
  • 图片
  • 图片
  • 图片
  • 图片
  • 图片
  • 图片
  • 上一个 下一个
    2025第九届金腾奖 私宅空间 | 旅居空间 | 城市功能空间 | 人气设计师 | NEW100 jintengAWARD(小金_金腾奖组委会) 广州市海珠区琶洲大道68号华新中心21楼
    金腾奖视频号 金腾奖小红书号 监制:余佳灵
    统筹:张俊媚
    运营:赖钰炼 曹凯月 刘芳棋 小金
    新媒体:王贝贝 严洁 张文一
    技术:丁德昌
    最终解释权归金腾奖主办方所有