Wilderness
作品详情
  • Details of the work 标题横线
    头像或者logo
    图片 云行空间建筑设计
    城市:南京市
    公司:云行空间建筑设计
    参赛作品: 况野
    空间类型:别墅
    个人/公司简介:
    团队通过建筑的思维方式去思考空间关系,在空间设计中探索和实践,赋予场所新的物质与精神的感受,是理想与感性的重叠发生,致力于定制独有空间共同创造出独特的理想环境,为空间品质作出定义。
    设计说明 | Design Instruction
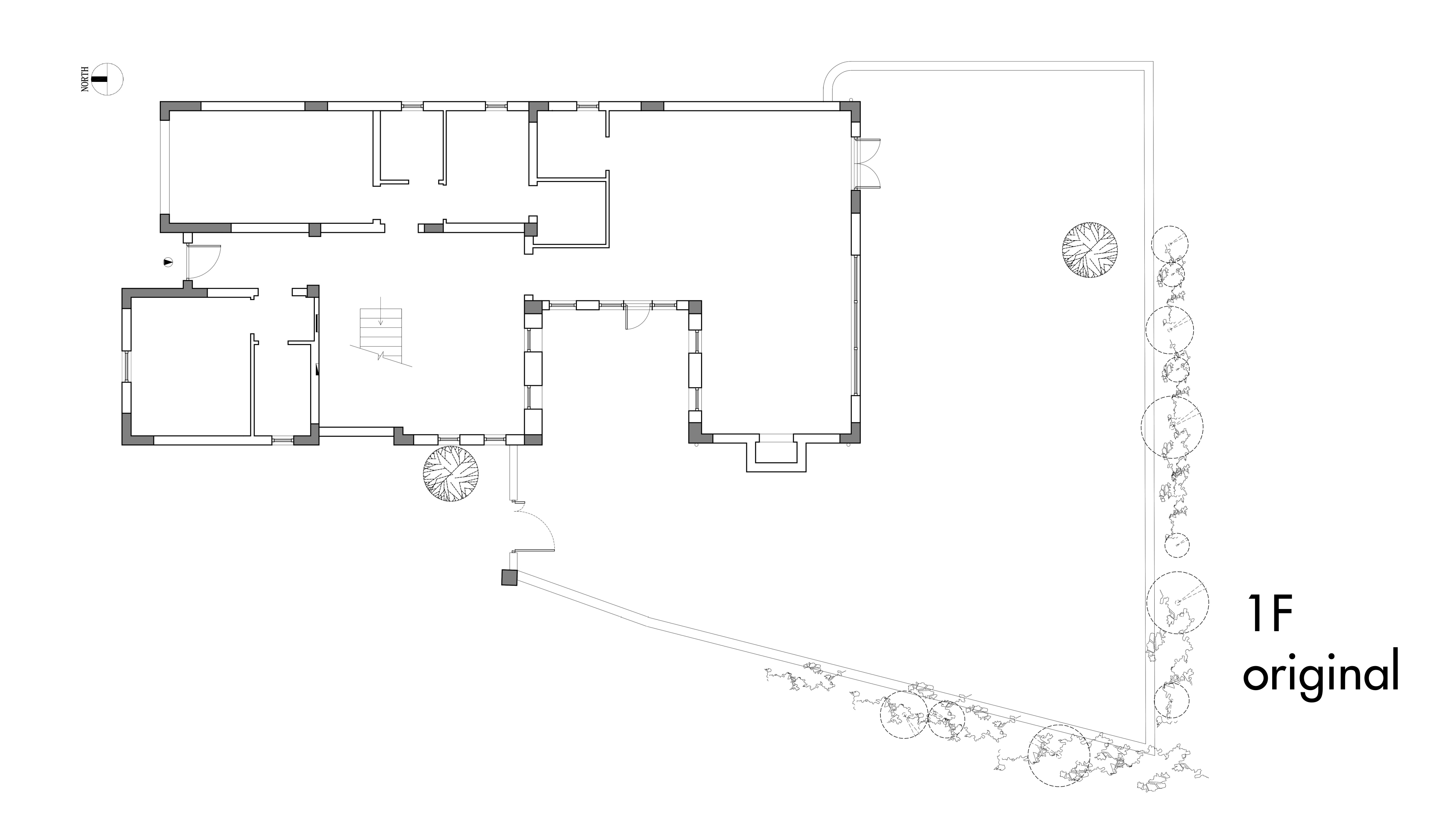
  • 这是位于南京郊区的一套别墅项目。别墅分为上下两层 ,一层主要功能有客餐厅、副厅、中西厨,以及客房,二层主要为私密区域,主要是起居室和卧室。 别墅拥有得天独厚的自然景观和静谧的地理位置,设计师希望能够摒弃传统别墅的精致、奢华、典雅,还居者一个慵懒、自然、治愈的空间。 入户长廊,与二楼挑空区域相望,沿着墙壁附上的天然莱姆石,从平面和立面两个维度向着室内展开,延续至餐厅和二楼挑高区域。空间的神秘面纱由此揭秘。 客厅利用横向比例的延申,将墨色天然石材从厨房延展至客厅尽头,其天然纹理与深邃质感浑然天成。舍弃繁冗的电视柜底座,还原背景墙的纯粹之美。通过不同比例的切割与拼接,石材的线条在视觉上延展开来,令空间愈显开阔。 夜幕降临,窗外夜色渐深,室内炉火熊熊,窗外四季流转。副厅休闲区以天然洞石为屏,将壁炉镶嵌其中,粗犷与精致相融,火光映照石纹,自然之趣跃然而生。 相较于古典城堡的设计,设计师更期望于简单和纯粹,西厨与客厅连接,西厨需要开放式的布局和随意的空间形式,洋溢着自由不羁,又承载着家人互动的温情。 挑空式的中餐厅空间以其纵向延展的气势,打破了传统居所的平面局限。挑高的垂直维度为悬垂灯具提供了恰如其分的舞台,层叠交错的光影在餐桌上方编织出浮动的光晕,既是视觉的焦点,也为用餐注入了优雅的仪式感。 运用骨骼线移门作厨房隔断,不对称的分割打破了既定的空间秩序,却在看似随意的错落中蕴藏着巧思的匠意。 楼梯利用构建的方式打造悬浮式的感觉,变得更加的轻盈,金属材质集合木饰面,钢木结合的方式,楼梯墙面延续着莱姆石的材质。挑高餐厅连接上层走廊,在上层也能俯瞰餐厅,形成有趣的空间互动。 二层走廊,窗的存在超越了其基础属性,成为了捕捉光影变迁的时空容器。主卧空间在柔和的光线中舒展开来,落地窗外的绿意随风轻摆,从室内看望室外借景入室,风景如画,将自然的静谧引入室内。 主卧室结合卫生间是一个套房的功能,卫生间与卧室之间利用墙面以及玻璃虚实结合的方式让空间之间更加的互通,主卫每个功能都是独立存在的,空间的舒适度大大提升。
  • 图片
  • 图片
  • 图片
  • 图片
  • 图片
  • 图片
  • 图片
  • 图片
  • 图片
  • 图片
  • 图片
  • 图片
  • 图片
  • 图片
  • 图片
  • 图片
  • 图片
  • 图片
  • 图片
  • 图片
  • 图片
  • 图片
  • 上一个 下一个
    2025第九届金腾奖 私宅空间 | 旅居空间 | 城市功能空间 | 人气设计师 | NEW100 jintengAWARD(小金_金腾奖组委会) 广州市海珠区琶洲大道68号华新中心21楼
    金腾奖视频号 金腾奖小红书号 监制:余佳灵
    统筹:张俊媚
    运营:赖钰炼 曹凯月 刘芳棋 小金
    新媒体:王贝贝 严洁 张文一
    技术:丁德昌
    最终解释权归金腾奖主办方所有