natural poem
作品详情
  • Details of the work 标题横线
    头像或者logo
    图片 成都拾光悠然设计 设计引力特约推荐
    城市:成都市
    公司:成都拾光悠然设计
    参赛作品: 自然长诗
    空间类型:别墅
    个人/公司简介:
    拾光悠然创立于2015年,是集设计、施工、产品一体化的专业全案设计公司。 我们一直坚持真正意义上的“全案项目落地”,围绕「设计落地」这个关键词,从2016年开始陆续成立自有的基装施工品牌【造梦家】,及全屋定制品牌【U然木作】。 多年来,我们坚持“少即是多”的原则,在不追求单量的情况下,用真诚服务于每位屋主的托付。同时站在专业的设计角度,帮助屋主找到完全属于他们的生活方式。通过空间的设计,去创造属于他们独一无二的居所。
    设计说明 | Design Instruction
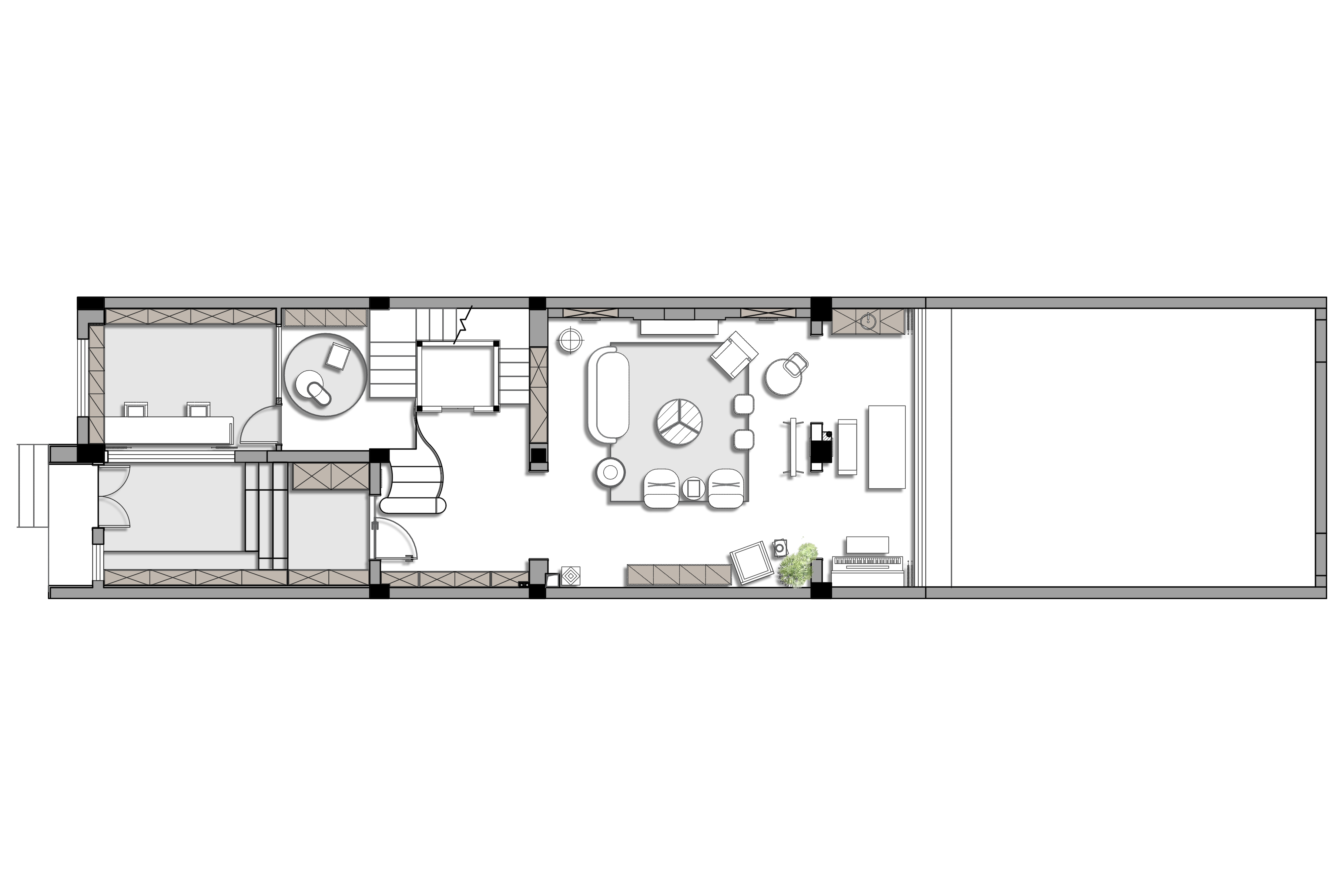
  • 门厅,作为家的第一印象,承载着欢迎与期待的情感。此次设计,我们特别注重光与空间的互动,采用了独特的玻璃顶设计,将自然的馈赠——光,巧妙地引入室内。每当阳光洒落,门厅便沐浴在温暖而明亮的光辉之中,仿佛被赋予了生命与活力。 针对低楼层可能带来的压迫感问题,我们也进行了精心考量。通过玻璃顶的透明质感与光线的巧妙运用,不仅成功弱化了这种压迫感,更让整个门厅空间显得通透明亮。 开放式布局打破边界,客厅与走廊、楼梯间自然衔接,光线顺着门厅流淌,风也能在这里拐个弯。这种低饱和的温柔,让深色的壁炉石材、墨绿单人沙发,都成了画龙点睛的情绪锚点,冲突里藏着细腻平衡。没有刻意划分功能区,沙发、单人椅、地毯自然围合出交流场所。 我们把窗变成画框、把空间化作容器,让微风、光影、鸟鸣,都成了家的点缀。视线顺着门洞延伸,能看见远处的窗、窗外的树。 餐厅与厨房以开放格局相连,大面的格子窗,像把户外的花园「裱」成了动态画。 浅米色墙面接住窗外的绿意,让下厨、用餐,都成了和自然对话的过程,没有生硬的边界,只有生活的流畅呼吸。 推开三楼主卧的门,像把度假天堂整个搬回了家。窗是画框,装着树梢的绿、天空的蓝。 空间是容器,盛着晨起的光、睡前的暖,每一寸都在说把日子过成度假。 把主卧做成酒店套房的模样,却比酒店多了「家的温度」。寝居区的宽敞、步入式衣帽间的实用、梳妆区的精致、卫浴区的舒适,还有能晒太阳的休闲阳台,把度假的松弛,融进每天的日常。 洗手台的青玉石材,纹理像被封存的溪流与山峦,每一道波纹里,都藏着自然的呼吸。晨起接水时,光影落在石面上,会把山水的「静」,轻轻晃进生活。夜晚刷牙时,石纹在暖光里流淌,又把自然的「柔」,悄悄敷在脸上。
  • 图片
  • 图片
  • 图片
  • 图片
  • 图片
  • 图片
  • 图片
  • 图片
  • 图片
  • 图片
  • 图片
  • 图片
  • 图片
  • 图片
  • 图片
  • 图片
  • 图片
  • 图片
  • 图片
  • 图片
  • 图片
  • 图片
  • 图片
  • 图片
  • 图片
  • 图片
  • 图片
  • 图片
  • 图片
  • 图片
  • 图片
  • 图片
  • 图片
  • 图片
  • 图片
  • 上一个 下一个
    2025第九届金腾奖 私宅空间 | 旅居空间 | 城市功能空间 | 人气设计师 | NEW100 jintengAWARD(小金_金腾奖组委会) 广州市海珠区琶洲大道68号华新中心21楼
    金腾奖视频号 金腾奖小红书号 监制:余佳灵
    统筹:张俊媚
    运营:赖钰炼 曹凯月 刘芳棋 小金
    新媒体:王贝贝 严洁 张文一
    技术:丁德昌
    最终解释权归金腾奖主办方所有