Jiulong Terrace
作品详情
  • Details of the work 标题横线
    头像或者logo
    图片 余晓艳 设计引力特约推荐
    城市:福州
    公司: 福州大鱼一舍装饰设计有限公司
    参赛作品: 玖珑台
    空间类型:公寓(150㎡以下)
    个人/公司简介:
    关于做设计的理念,每个人都有自己审美的局限性,但是当你把灵感取材放在不同的居住者身上,创新力自然能够一直保持下去。
    设计说明 | Design Instruction
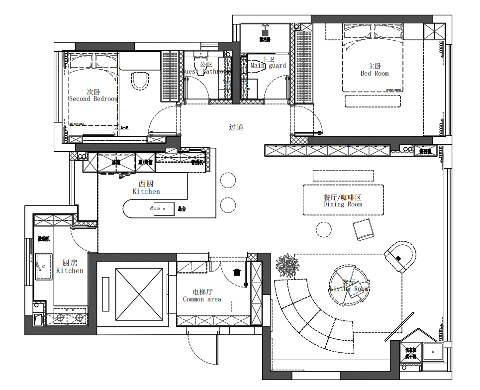
  • 这是一位喜欢常常邀请三五好友来家中喝茶闲谈的屋主,围绕品茶的生活状态,我们将原本不需要的次卧打通作为泡茶区,原始户型中极小的餐厅改为西厨水吧,日常只有三口人在家的时候在西厨用餐,人多时则在茶区用餐。
  • 图片
  • 图片
  • 图片
  • 图片
  • 图片
  • 图片
  • 图片
  • 图片
  • 图片
  • 图片
  • 图片
  • 图片
  • 图片
  • 图片
  • 图片
  • 上一个 下一个
    2025第九届金腾奖 私宅空间 | 旅居空间 | 城市功能空间 | 人气设计师 | NEW100 jintengAWARD(小金_金腾奖组委会) 广州市海珠区琶洲大道68号华新中心21楼
    金腾奖视频号 金腾奖小红书号 监制:余佳灵
    统筹:张俊媚
    运营:赖钰炼 曹凯月 刘芳棋 小金
    新媒体:王贝贝 严洁 张文一
    技术:丁德昌
    最终解释权归金腾奖主办方所有