Returning home
作品详情
  • Details of the work 标题横线
    头像或者logo
    图片 西安境与宅设计
    城市:西安市
    公司:西安境与宅设计
    参赛作品: 家,是专属于两个人的游戏场。
    空间类型:公寓(150㎡以下)
    个人/公司简介:
    我们是西安境与宅设计,2020年成立于西安的设计公司,与家较劲的这两年里我们见证了不少新家的落地,也曾在一些比赛中斩获荣誉,如果用三个词来做一个自我介绍,那「实力! 活力! 凝聚力!」就是对我们此刻最好的描述!注重“设计”是选择我们的客户都看重的前提,把一个家画在图纸上很简单,但是落实到生活中每处细节的体验和实用性却不简单,在这个过程中,我们除了设计还想要有更好的服务和装修体验感给到客户,让装修不再变得繁琐,把时间归还给生活本身,打造专属于每个客户的定制理想家。
    设计说明 | Design Instruction
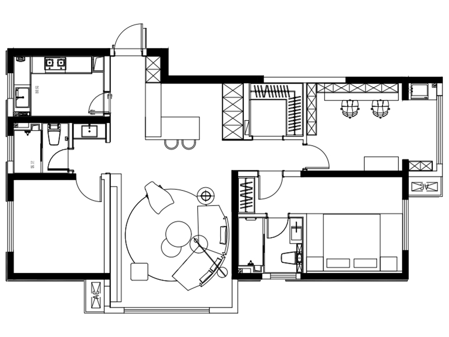
  • 这套改造方案,没有大刀阔斧的颠覆,却在每处细节里藏着对生活的理解:拆垛子是为了更实用的空间,换灯光是为了更舒服的氛围。 精装房改造方案:从 “将就” 到 “专属”,藏着旅途故事的家以“流畅、便捷、舒适”为核心,将空间功能与居住体验深度融合,让归家、起居、休憩的每一步都充满秩序与惬意。
  • 图片
  • 图片
  • 图片
  • 图片
  • 图片
  • 图片
  • 图片
  • 图片
  • 图片
  • 图片
  • 图片
  • 图片
  • 图片
  • 图片
  • 图片
  • 图片
  • 图片
  • 图片
  • 图片
  • 图片
  • 图片
  • 图片
  • 上一个 下一个
    2025第九届金腾奖 私宅空间 | 旅居空间 | 城市功能空间 | 人气设计师 | NEW100 jintengAWARD(小金_金腾奖组委会) 广州市海珠区琶洲大道68号华新中心21楼
    金腾奖视频号 金腾奖小红书号 监制:余佳灵
    统筹:张俊媚
    运营:赖钰炼 曹凯月 刘芳棋 小金
    新媒体:王贝贝 严洁 张文一
    技术:丁德昌
    最终解释权归金腾奖主办方所有