Jiangnan Courtyard
作品详情
  • Details of the work 标题横线
    头像或者logo
    图片 杨钧
    城市:杭州
    公司: 杨钧设计事务所
    参赛作品: 江南院
    空间类型:别墅
    个人/公司简介:
    杨钧设计事务所成立于2014年,拥有整体硬装和软装设计一体的服务机制,秉持国际化视野和原创精神,用强大的设计实力为高端私宅业主和商业整体设计客户提供配置服务。 我们所倡导的设计,不是指设计这一概念本身,而是引领一种意识流。通过对生活的感悟,观察美,发现美,去“重新定义设计,无限延展生活。” 我们希望Line Park、Gallery 11的平台就像一根线,通过这条线传递全新的生活理念,推崇一种更有个人气质且无限活力的生活状态。
    设计说明 | Design Instruction
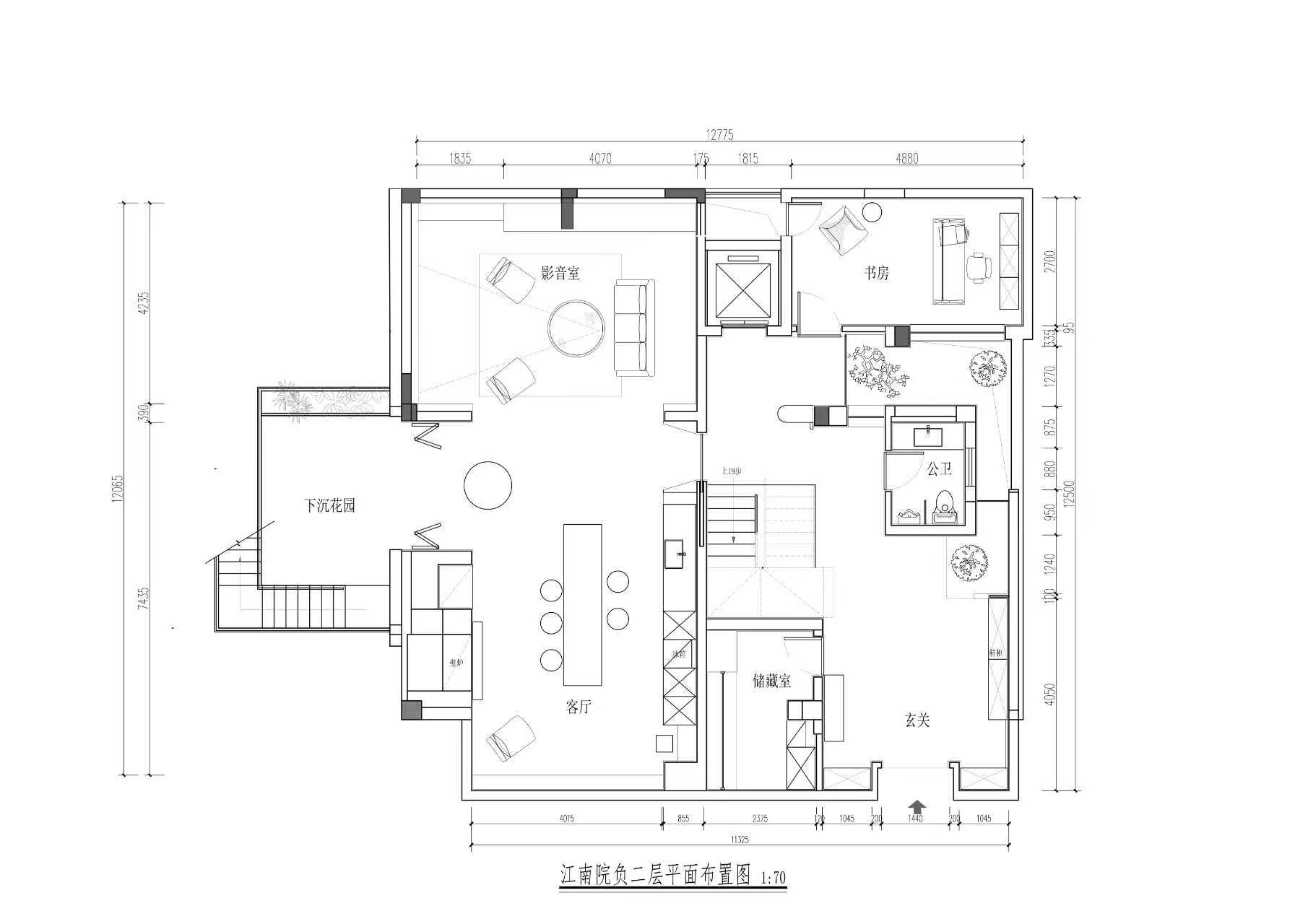
  • 江南院设计说明 一、 项目概况与设计理念 本项目位于杭州市萧山区。房子是偏江南中式的合院,业主是一位具有文化修养的企业CEO,一家三口,追求一种既能满足现代舒适生活需求,又能安顿身心的精神居所。 对于此项目的核心设计理念是:“隐逸于市,回归本心。”摒弃繁复的装饰,通过空间、光影与材质的对话,营造出一种宁静、质朴,充满诗意的栖居体验。让室内与自然共鸣,与内心对话。 二、 室内空间设计与景观融合 整个房子改造完大概在650方,地下利用层高优势做了二层,最大限度的充分利用空间。原室内地下层没有采光,是原空间最大的问题。我们通过花园下挖,做了叠层的下沉式花园,让负二层有了良好的景观和采光,同时让负一层的客房拥有一个室外露台,能够走出室外感受四季的变化。在室内我们也通过不同功能的需求做一些错层的处理,让居家体验在长久待的地方有足够的层高。 一楼和二楼采用了空间叙事的方式,“起承转合”的情感序列。 玄关作为“起”的一个过渡空间。一侧的采光天井让光影和绿色形成一幅活的框景,让人一入门便卸下尘世喧嚣。玄关的转折后便进入了豁然开朗的公共区域,客厅、餐厅、厨房一体化的设计。这里承载了家庭生活的核心,朝南近10米宽的大落地玻璃窗,让整个花园的景色映入眼帘。一楼还设计了一个独立的中餐厅。通过中餐厅,可以走进花园的一个L型风雨连廊,让视觉有一个延伸,形成一个光影画廊,同时也让就餐有一个非常愉悦的心情。连接公共区与私密区的走廊和楼梯,贯穿了客厅和餐厅,使整个空间更加灵动和自由。二楼则以“合”的设计手法,主卧拥有最佳的观景视角,空间氛围静谧、舒缓。小孩房则位于东南面,有自己独立的书房,同时也是一家人学习交流的情感场所。 整体室内采用了大地色系为基调,如米白、浅灰、橡木色。局部点缀深色木色,营造沉稳、温暖的氛围。材质也是橡木地板,艺术涂料,天然石材台面相互搭配。强调材质的天然肌理与触感,传递出温润、质朴的美学感受。 三、 光影设计和庭院是这个房子的灵魂 我们通过精心计算的开窗,采光井,下沉式的花园,将自然光引入室内。光线在不同时间,不同季节,于墙面、地面投射出丰富多变的光影效果,成为空间中动态的有生命的装饰。庭院作为建筑的呼吸中心,尽量让室内外界限物理性消隐,从而使室内空间与庭院融为一体,实现真正的“生活在自然中”。另外,在智能家居与可持性设计的结合中,也是考虑以人为本。采用五恒系统、智能系统来提升居住的便捷性与舒适度。 《江南院》合院,通过现代设计语言,重新诠释了东方居住美学,让建筑、空间、人与自然和谐共生。
  • 图片
  • 图片
  • 图片
  • 图片
  • 图片
  • 图片
  • 图片
  • 图片
  • 图片
  • 图片
  • 图片
  • 图片
  • 图片
  • 图片
  • 图片
  • 图片
  • 图片
  • 图片
  • 图片
  • 图片
  • 图片
  • 图片
  • 图片
  • 图片
  • 图片
  • 图片
  • 图片
  • 图片
  • 图片
  • 图片
  • 图片
  • 图片
  • 图片
  • 图片
  • 图片
  • 图片
  • 图片
  • 图片
  • 图片
  • 图片
  • 图片
  • 图片
  • 图片
  • 图片
  • 图片
  • 图片
  • 图片
  • 图片
  • 图片
  • 图片
  • 图片
  • 图片
  • 图片
  • 图片
  • 图片
  • 图片
  • 图片
  • 图片
  • 图片
  • 图片
  • 图片
  • 上一个 下一个
    2025第九届金腾奖 私宅空间 | 旅居空间 | 城市功能空间 | 人气设计师 | NEW100 jintengAWARD(小金_金腾奖组委会) 广州市海珠区琶洲大道68号华新中心21楼
    金腾奖视频号 金腾奖小红书号 监制:余佳灵
    统筹:张俊媚
    运营:赖钰炼 曹凯月 刘芳棋 小金
    新媒体:王贝贝 严洁 张文一
    技术:丁德昌
    最终解释权归金腾奖主办方所有