Sweet House
作品详情
  • Details of the work 标题横线
    头像或者logo
    图片 高海彦 设计台州特约推荐
    城市:台州
    公司: 台州海合设计
    参赛作品: 甜蜜屋
    空间类型:平层(150㎡以上)
    个人/公司简介:
    浙江优秀设计师、2017年创立台州黄岩金臣设计工作室、2025年创立台州海合设计工作室、从业设计工作10余年,善于将艺术性和趣味性融入设计当中,从而打造出独特且实用的美学空间。
    设计说明 | Design Instruction
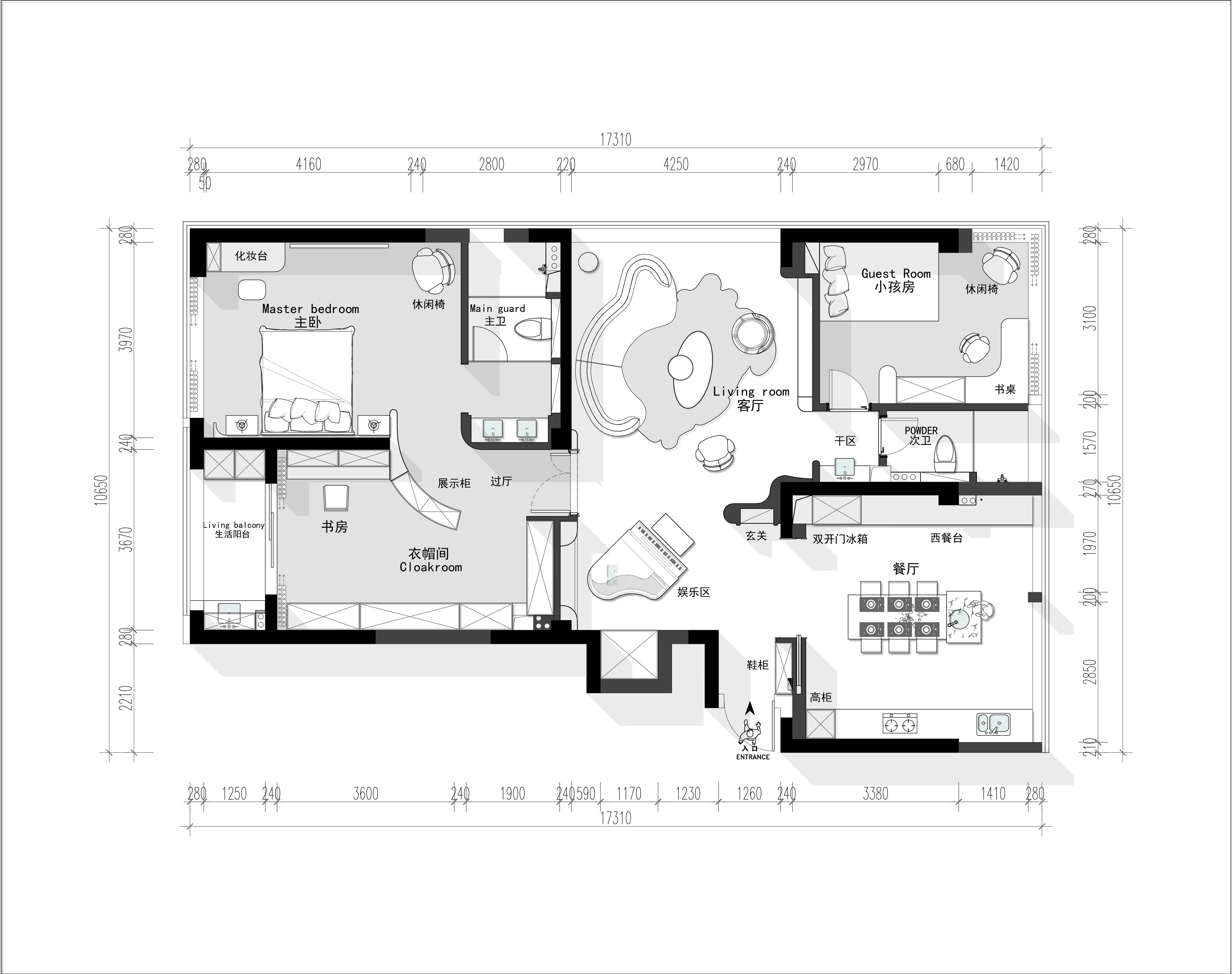
  • 《甜蜜屋》设计说明 “奶油风”,是一种以奶油色调为主,强调自然材质和简洁优雅家具的设计风格。奶油风的设计理念源于对复古和自然元素的热爱,将淡雅的奶油色调与复古元素相结合,为家居空间带来一种温馨、舒适且略带复古的气息。 业主是一对即将成婚的年轻小夫妻,对婚房以及以后的三口之家他们对卧室和厨房有自己的想法:卧室只保留两个房间,开放式厨房与餐厅融合。客厅可以聚会也可以独处,最好有女主人弹钢琴的独立空间。设计师详细了解了业主诉求,打通朝南两个房间作为主卧,为女主人增添了独立宽敞的衣帽间和弧形玻璃奢品展示柜。将厨房餐厅打通,连接到客厅,在客餐厅出设计了钢琴演奏的展示空间。整个案子《甜蜜屋》设计说明 “奶油风”,是一种以奶油色调为主,强调自然材质和简洁优雅家具的设计风格。奶油风的设计理念源于对复古和自然元素的热爱,将淡雅的奶油色调与复古元素相结合,为家居空间带来一种温馨、舒适且略带复古的气息。 业主是一对即将成婚的年轻小夫妻,对婚房以及以后的三口之家他们对卧室和厨房有自己的想法:卧室只保留两个房间,开放式厨房与餐厅融合。客厅可以聚会也可以独处,最好有女主人弹钢琴的独立空间。设计师详细了解了业主诉求,打通朝南两个房间作为主卧,为女主人增添了独立宽敞的衣帽间和弧形玻璃奢品展示柜。将厨房餐厅打通,连接到客厅,在客餐厅出设计了钢琴演奏的展示空间。整个案子通过柔和的色彩、温馨的材质和精致的家具,为业主创造了一个充满诗意的空间。
  • 图片
  • 图片
  • 图片
  • 图片
  • 图片
  • 图片
  • 图片
  • 图片
  • 图片
  • 图片
  • 图片
  • 图片
  • 图片
  • 上一个 下一个
    2025第九届金腾奖 私宅空间 | 旅居空间 | 城市功能空间 | 人气设计师 | NEW100 jintengAWARD(小金_金腾奖组委会) 广州市海珠区琶洲大道68号华新中心21楼
    金腾奖视频号 金腾奖小红书号 监制:余佳灵
    统筹:张俊媚
    运营:赖钰炼 曹凯月 刘芳棋 小金
    新媒体:王贝贝 严洁 张文一
    技术:丁德昌
    最终解释权归金腾奖主办方所有