Gary
作品详情
  • Details of the work 标题横线
    头像或者logo
    图片 罗伟
    城市:成都
    公司: 成都市京东朗润装饰
    参赛作品: 罗伟
    空间类型:别墅
    个人/公司简介:
    [罗伟] [Gary] 头衔 成都市建筑装饰协会会员 高级住宅室内设计师、资深住宅室内设计师 第二十四届银杏金鸟奖 首届广汉石材设计艺术节 联合策展人 2024 H+城市设计影响力榜·成都—先锋榜 学历 上海大学 建筑外观设计学 现任 成都市朗润装饰责任有限公司 首席设计师 经历 2024年 首届广汉国际石材设计艺术节 联合策展人 2023年荣获 23届银杏金鸟奖先锋设计师 2024 第二十四届银杏金鸟奖 平层空间 铜奖 2024 荣登H+城市设计影响力榜 成都先锋榜 个人介绍 罗伟,成都市朗润装饰责任有限公司 首席设计师。 设计理念是:设计是改变行为的意识形态,赋予人与空间关联的能力。成都市建筑装饰协会高级住宅室内设计师、资深住宅室内设计师;第二十四届银杏金鸟奖 首届广汉石材设计艺术节 联合策展人;2024 H+城市设计影响力榜·成都—先锋榜。 2024年 首届广汉国际石材设计艺术节 联合策展人 2023年荣获 23届银杏金鸟奖先锋设计师 2024 第二十四届银杏金鸟奖 平层空间 铜奖 2024 荣登H+城市设计影响力榜 成都先锋榜
    设计说明 | Design Instruction
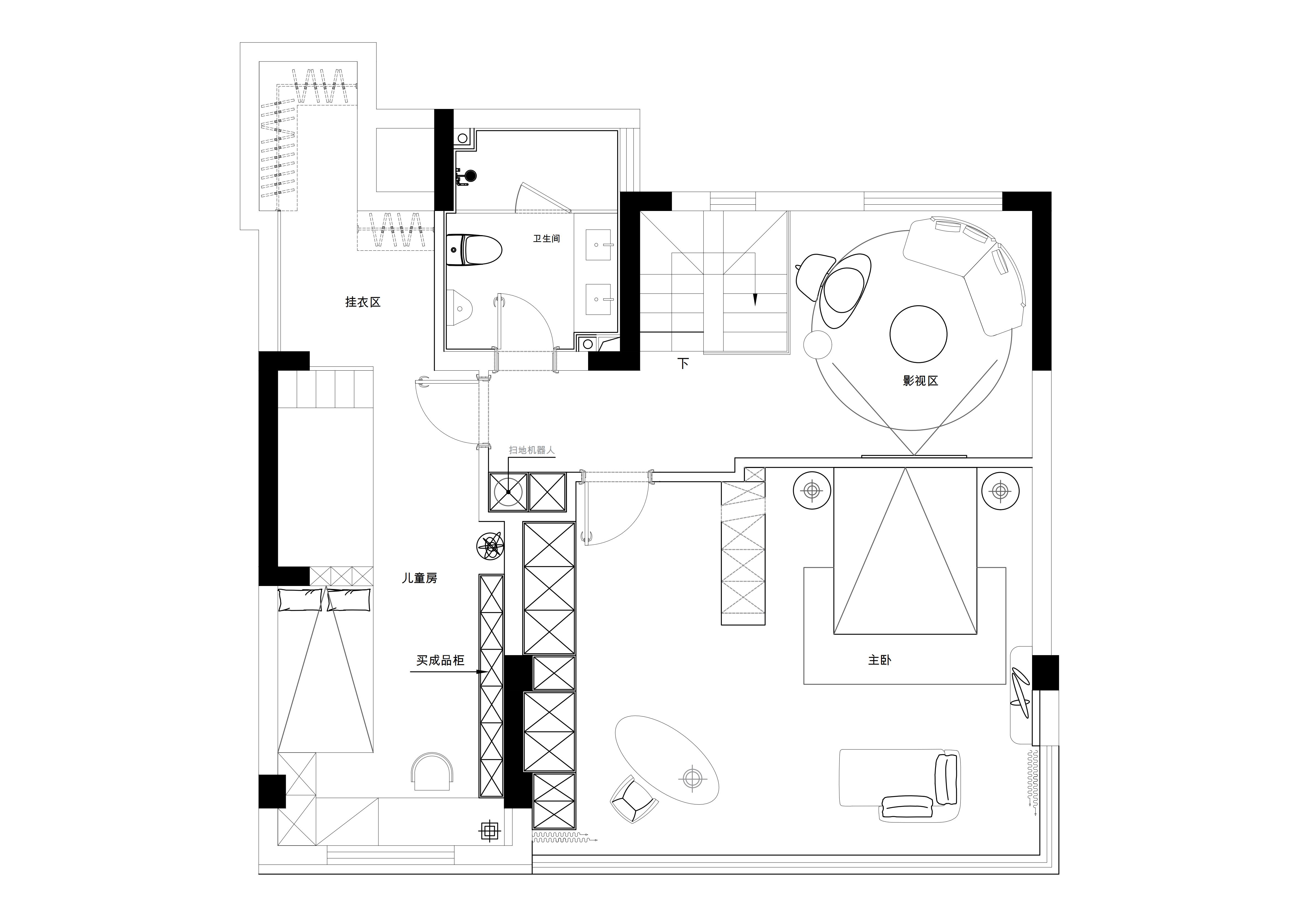
  • 户型位于成都市双流牧马山别墅区,房子属于两层叠拼端头户型,横厅结构并且拥有120平米私享花园,满足了现在绝大部分年轻人对于房子的有天有地有院子的生活方式。男女主人希望家是充满温馨的感觉,浪漫的氛围,有序的空间,齐全的功能,并且能够在忙碌工作后,能够在家与家人共同享受着午后阳光洒落在院落内,折射入室内空间内那种成都人觉得“安逸”。 对于烹饪能开放与整个客餐厅空间里使烹饪不再孤独,对于影视不希望有一个固定的墙体让它成为人与环境的束缚,那么对于娃娃希望他们有自己的独立空间及休闲区域,并且能够满足他们对于立体空间的探索,所以接受与书屋的布局方式,让两个小男孩共同的居住在同一个大空间内。
  • 图片
  • 图片
  • 图片
  • 图片
  • 图片
  • 图片
  • 图片
  • 图片
  • 图片
  • 图片
  • 图片
  • 图片
  • 图片
  • 上一个 下一个
    2025第九届金腾奖 私宅空间 | 旅居空间 | 城市功能空间 | 人气设计师 | NEW100 jintengAWARD(小金_金腾奖组委会) 广州市海珠区琶洲大道68号华新中心21楼
    金腾奖视频号 金腾奖小红书号 监制:余佳灵
    统筹:张俊媚
    运营:赖钰炼 曹凯月 刘芳棋 小金
    新媒体:王贝贝 严洁 张文一
    技术:丁德昌
    最终解释权归金腾奖主办方所有