ZONG-HENG SPACE DESIGN
作品详情
  • Details of the work 标题横线
    头像或者logo
    图片 赵懋 FOCUS DESIGN设计平台特约推荐
    城市:四川绵阳
    公司: 纵横之间装饰设计有限公司
    参赛作品: 纵横之间设计事务所
    空间类型:办公
    个人/公司简介:
    一个热爱设计的80后设计师 设计师*工作狂*高效率*不加班 从小学习艺术的理科生 兼具感性认知和理性思考 顾全大局但不拘小节 注重团队协作和配合 贯彻成人达己的思想 心地善良懂得吃亏 体制家族的叛逆者 不吸烟不喝酒不打牌 业余生活是儿子 是丈夫 是父亲 ........
    设计说明 | Design Instruction
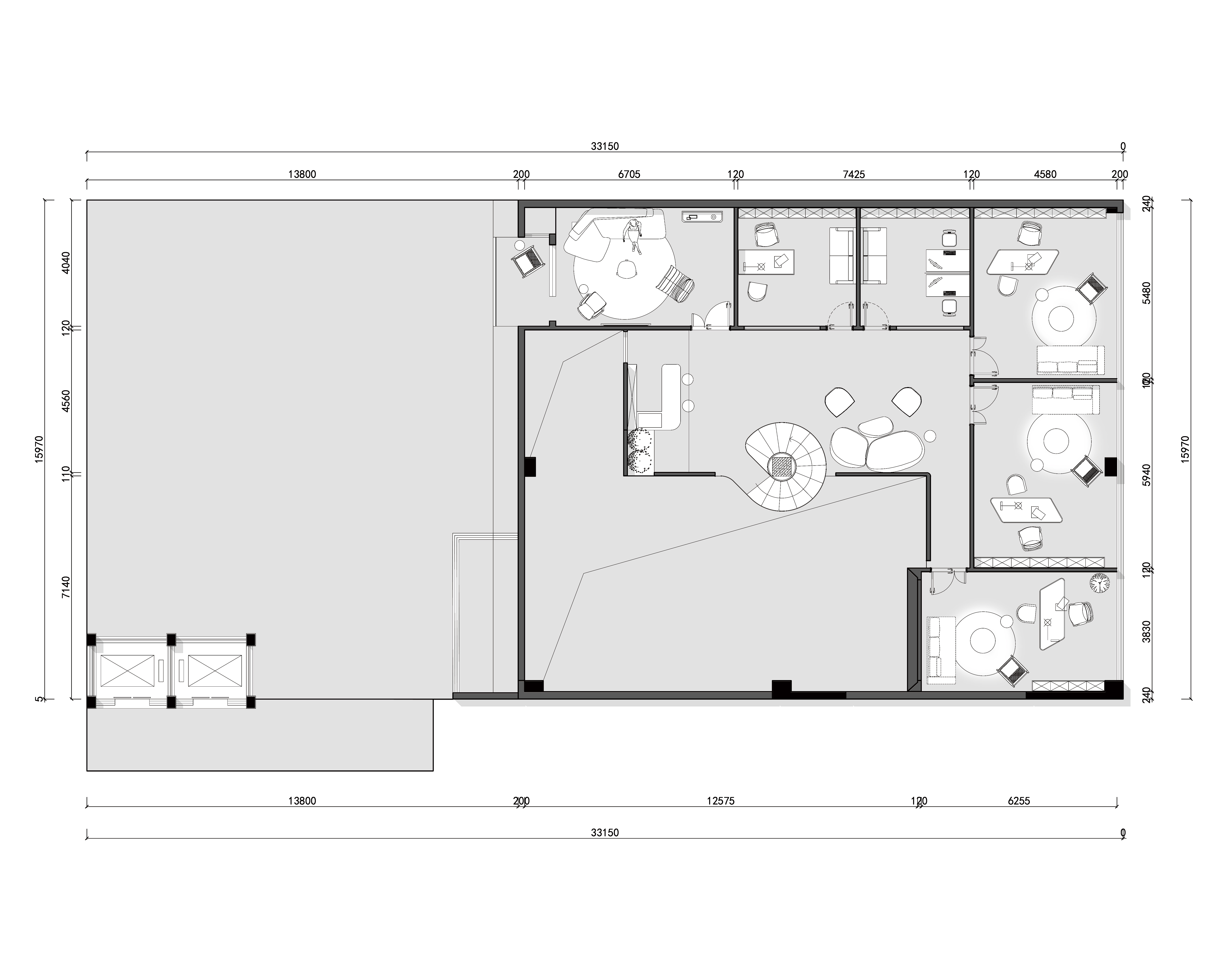
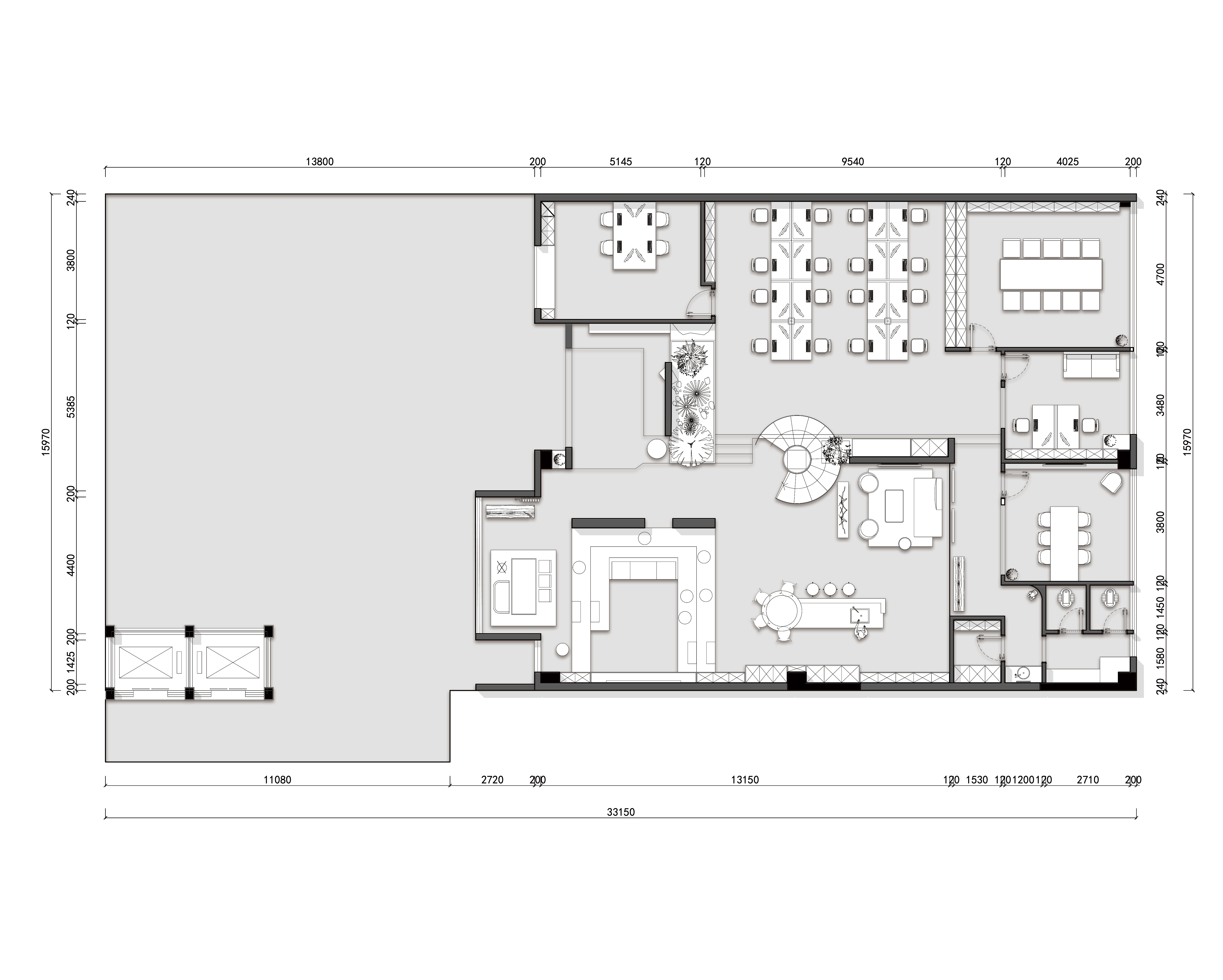
  • 设计理念 在快节奏的都市生活中,轻奢不仅是物质的精致追求,更是精神归属的寄托。以“意识觉醒,奢于本质”为核心,打造兼具美学高度与人文温度的设计事务所,通过设计传递克制而深邃的奢华,唤醒空间与人的深度对话。 门厅处采用透景设计的穿插纵横,过视觉穿透性与空间层次性的营造,利用材质透明性、视线引导、虚实对比等手法,打破物理空间边界,创造“有限空间,无限延伸”的视觉效果。 会客区做下沉式设计,增加了空间的层次感,以半开放隔断、艺术装置划分动静区域,平衡私密性与开放性,创建一个交互式体验区。 空间交接处通过中心柱设计旋转楼梯,以螺旋曲线为核心形态,通过连续的踏步与扶手形成动态的视觉流线。其几何形态本身具有数学美感(如斐波那契螺旋或黄金比例),能赋予空间流动性与节奏感,打破方直空间的呆板,同时连接各个空间。
  • 图片
  • 图片
  • 图片
  • 图片
  • 图片
  • 图片
  • 图片
  • 图片
  • 图片
  • 图片
  • 图片
  • 图片
  • 图片
  • 图片
  • 图片
  • 图片
  • 图片
  • 图片
  • 图片
  • 图片
  • 上一个 下一个
    2025第九届金腾奖 私宅空间 | 旅居空间 | 城市功能空间 | 人气设计师 | NEW100 jintengAWARD(小金_金腾奖组委会) 广州市海珠区琶洲大道68号华新中心21楼
    金腾奖视频号 金腾奖小红书号 监制:余佳灵
    统筹:张俊媚
    运营:赖钰炼 曹凯月 刘芳棋 小金
    新媒体:王贝贝 严洁 张文一
    技术:丁德昌
    最终解释权归金腾奖主办方所有